Bildegalleri

Velkommen til Ellen Gleditsch` vei 110! Fotograf: Andreas Nielsen.
Oppussingsobjekt! Skap drømmehjemmet for familien. Rekkehus o/tre plan. Bad og 2 wc. Solrike uteplasser. Parkering. Peis
Prisantydning4 000 000 kr
Nøkkelinfo
- Boligtype
- Rekkehus
- Eieform
- Selveier
- Soverom
- 3
- Internt bruksareal
- 135 m² (BRA-i)
- Bruksareal
- 140 m²
- Eksternt bruksareal
- 5 m² (BRA-e)
- Balkong/Terrasse
- 39 m² (TBA)
- Byggeår
- 1970
- Rom
- 5
- Tomteareal
- 154 m²
Fasiliteter
Balkong/Terrasse
Barnevennlig
Garasje/P-plass
Kjæledyr tillatt
Offentlig vann/kloakk
Peis/Ildsted
Rolig
Sentralt
Turterreng
Lademulighet
Om boligen
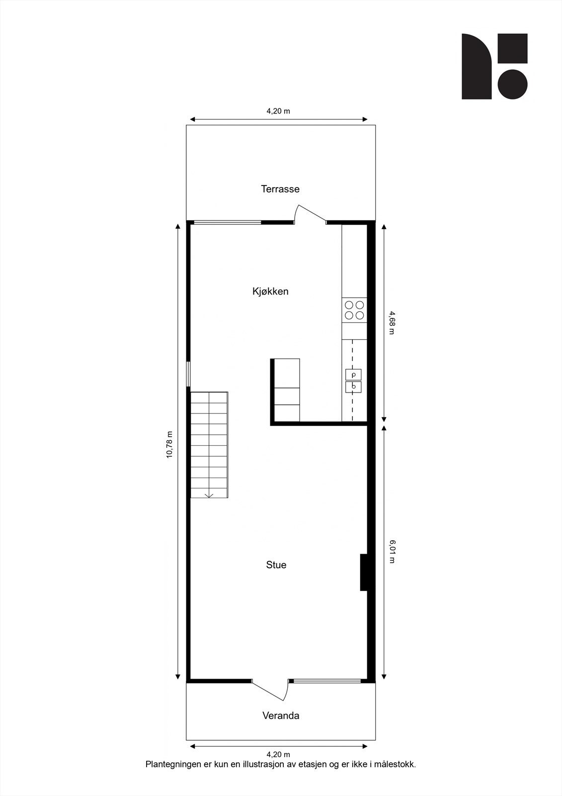
Velkommen til Ellen Gleditsch` vei 110 - En innholdsrik familiebolig over tre plan med moderniseringsbehov, her kan du skape ditt eget drømmehjem. Boligen har en god planløsning med blant annet tre gode soverom, bad og wc, to stuer og rikelig med lagringsplass. Her får du også tre solrike uteplasser, i tillegg til felles hage.
Attraktiv og tilbaketrukket område perfekt for barnefamilier, området bærer preg av frodige, grønne omgivelser med kort vei til marka med flere tur- og rekreasjonsmuligheter.
Kvaliteter:
-To stuer
-Bad og 2 separate toalettrom
-Tre gode soverom
-Peis i stue
-Garasjeplass i felles anlegg
-Lave felleskostnader
-Rikelig med lagringsplass i flere boder
-Tre store og solrike uteplasser
-Veletablert boligområde
-Trygg og god skolevei
Attraktiv og tilbaketrukket område perfekt for barnefamilier, området bærer preg av frodige, grønne omgivelser med kort vei til marka med flere tur- og rekreasjonsmuligheter.
Kvaliteter:
-To stuer
-Bad og 2 separate toalettrom
-Tre gode soverom
-Peis i stue
-Garasjeplass i felles anlegg
-Lave felleskostnader
-Rikelig med lagringsplass i flere boder
-Tre store og solrike uteplasser
-Veletablert boligområde
-Trygg og god skolevei
NB: Knappen for å vise hele beskrivelsen har kun en visuell effekt.
NB: Knappen for å vise hele beskrivelsen har kun en visuell effekt.
Salgsoppgaven beskriver vesentlig og lovpålagt informasjon om eiendommen
Se komplett salgsoppgaveNærområdet
Aktiv Gamle Oslo/Bjørvika
Annonseinformasjon
| FINN-kode | 457560460 |
|---|---|
| Sist endret | 31. mars 2026 08:22 |
| Referanse | 1002250327 |
Annonsene kan være mangelfulle i forhold til lovpålagt opplysningsplikt. Før bindende avtale inngås oppfordres interessenter til å innhente komplett informasjon fra meglerforetaket, selger eller utleier.



















































