Bildegalleri

Aksel Solberg har gleden av å presentere Økern torgvei 5A! Foto Pontus Gustav Holmenäs.
Økern
Moderne toppleilighet med vestvendt balkong på 11 kvm. - Åpen og fantastisk utsikt - Garasjeplass - IN-ordning - Heis
Prisantydning3 758 351 kr
Nøkkelinfo
- Boligtype
- Leilighet
- Eieform
- Andel
- Soverom
- 1
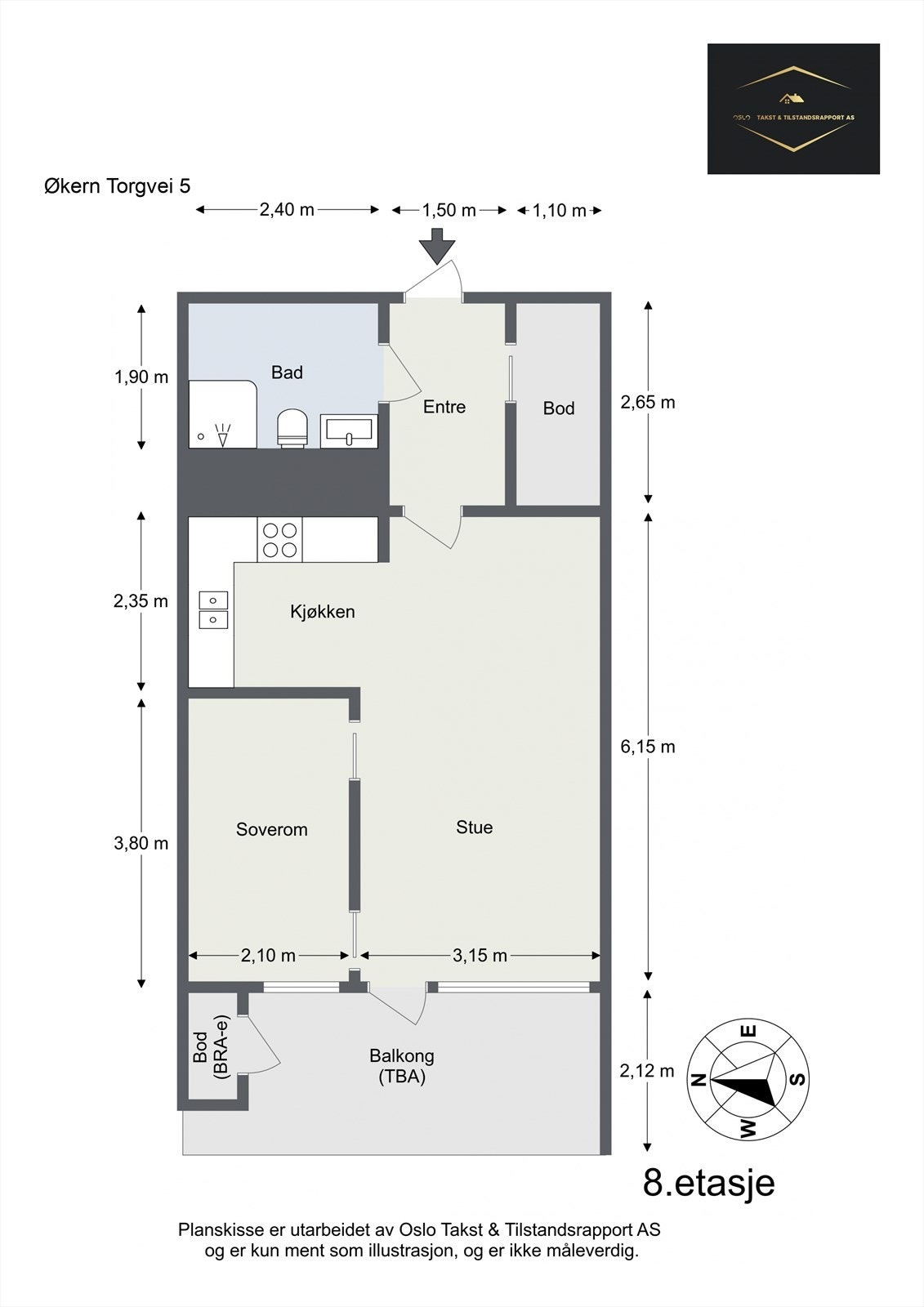
- Internt bruksareal
- 48 m² (BRA-i)
- Bruksareal
- 54 m²
- Eksternt bruksareal
- 6 m² (BRA-e)
- Balkong/Terrasse
- 11 m² (TBA)
- Etasje
- 8
- Byggeår
- 2011
- Energimerking
- Rom
- 2
- Tomteareal
- 7 253 m² (eiet)
Fasiliteter
Balkong/Terrasse
Barnevennlig
Bredbåndstilknytning
Garasje/P-plass
Heis
Ingen gjenboere
Kabel-TV
Offentlig vann/kloakk
Parkett
Rolig
Sentralt
Utsikt
Turterreng
Om boligen
Lys, moderne og innbydende 2-roms med solrik balkong, utsikt og god standard.
Leiligheten ligger i et nyere bygg fra 2011, med en skjermet og attraktiv beliggenhet på Økern. Her har du kort vei til servicetilbud, barnehager, skoler og svært gode kollektivforbindelser med både T-bane og buss.
Leiligheten ligger i et nyere bygg fra 2011, med en skjermet og attraktiv beliggenhet på Økern. Her har du kort vei til servicetilbud, barnehager, skoler og svært gode kollektivforbindelser med både T-bane og buss.
- Stor, vestvendt balkong på 11 kvm med utsikt
- Beliggende i 8. etasje-høyt, fritt og usjenert
- Nytt, moderne kjøkken (2025)
- Overflateoppusset 2024 i lune farger og eikeparkett fra 2022
- Innvendig bod
- Plassbygd garderobe på soverommet
- Vannbåren gulvvarme i oppholdsrom
- Balansert ventilasjon
- Garasjeplass og heis
- IN-ordning
- God rente på fellesgjelden (4,04%)
- Fellesgjeld blir felleskostnadene 5 557 ved innfrielse
- Nærhet til Løren Torg og Vinslottet
NB: Knappen for å vise hele beskrivelsen har kun en visuell effekt.
NB: Knappen for å vise hele beskrivelsen har kun en visuell effekt.
Salgsoppgaven beskriver vesentlig og lovpålagt informasjon om eiendommen
Se komplett salgsoppgaveNyttige lenker
Nærområdet
Nordvik St.Hanshaugen
Annonseinformasjon
| FINN-kode | 457549155 |
|---|---|
| Sist endret | 29. mars 2026 16:44 |
| Referanse | 5-0104/26 |
Annonsene kan være mangelfulle i forhold til lovpålagt opplysningsplikt. Før bindende avtale inngås oppfordres interessenter til å innhente komplett informasjon fra meglerforetaket, selger eller utleier.










































