Bildegalleri

Velkommen til Snødevegen 32B, presentert av EiendomsMegler1 V/ Jarl Tjelta. Foto Trond-Eirik Husvæg. God parkeringsplass. både i carport og på tomt
Nyere og moderne enebolig i barnevennlige omgivelser på toppen av Snøde - Grenser til friområde
Prisantydning8 500 000 kr
Nøkkelinfo
- Boligtype
- Enebolig
- Eieform
- Selveier
- Soverom
- 3
- Internt bruksareal
- 156 m² (BRA-i)
- Bruksareal
- 156 m²
- Balkong/Terrasse
- 8 m² (TBA)
- Byggeår
- 2024
- Energimerking
- Rom
- 5
- Tomteareal
- 531 m² (eiet)
Fasiliteter
Balkong/Terrasse
Barnevennlig
Garasje/P-plass
Hage
Offentlig vann/kloakk
Parkett
Peis/Ildsted
Rolig
Utsikt
Balansert ventilasjon
Om boligen
Moderne enebolig fra 2024 i et rolig og svært barnevennlig område på toppen av Snøde i Tananger.
Boligen holder en høy standard med parkett i oppholdsrom, fliser på bad samt LED spotter i flere rom.
Vedfyring i stue og varmekabel på baderom.
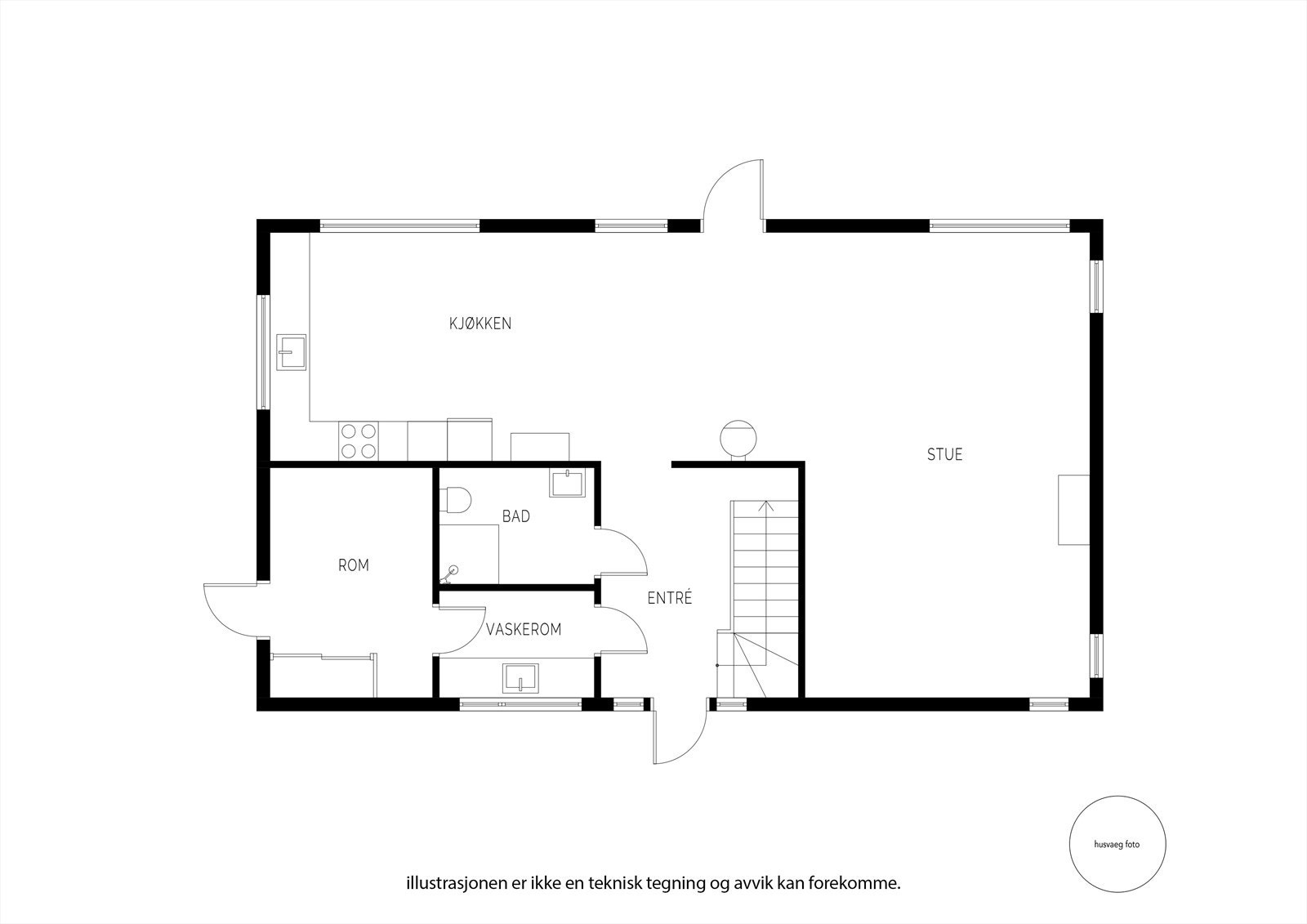
Boligen har 156m² fordelt på to etasjer.
I 1. etasje finner du entré, vaskerom med bi-inngang, sportsbod, bad, åpen stue- og kjøkkenløsning med store vindusflater som gir mye naturlig lys.
Kjøkkenet er fra Aubo, med inkluderte hvitevarer fra AEG.
2. etasje består av tre soverom, hvor hovedsoverommet har egen garderobeseksjon, samt bad, bod, loftstue og balkong med utsikt.
Tomten på 531 m² grenser til friareal. Parkering i carport samt på tomt
Beliggende nær skoler, barnehager, butikker og flotte turområder. Klar for innflytting!
Boligen holder en høy standard med parkett i oppholdsrom, fliser på bad samt LED spotter i flere rom.
Vedfyring i stue og varmekabel på baderom.
Boligen har 156m² fordelt på to etasjer.
I 1. etasje finner du entré, vaskerom med bi-inngang, sportsbod, bad, åpen stue- og kjøkkenløsning med store vindusflater som gir mye naturlig lys.
Kjøkkenet er fra Aubo, med inkluderte hvitevarer fra AEG.
2. etasje består av tre soverom, hvor hovedsoverommet har egen garderobeseksjon, samt bad, bod, loftstue og balkong med utsikt.
Tomten på 531 m² grenser til friareal. Parkering i carport samt på tomt
Beliggende nær skoler, barnehager, butikker og flotte turområder. Klar for innflytting!
NB: Knappen for å vise hele beskrivelsen har kun en visuell effekt.
NB: Knappen for å vise hele beskrivelsen har kun en visuell effekt.
Salgsoppgaven beskriver vesentlig og lovpålagt informasjon om eiendommen
Se komplett salgsoppgaveNyttige lenker
Nærområdet
EiendomsMegler 1 Sola
En del av Sparebank 1 Sør-Norge
Annonseinformasjon
| FINN-kode | 457486561 |
|---|---|
| Sist endret | 27. mars 2026 10:32 |
| Referanse | 2210260017 |
Annonsene kan være mangelfulle i forhold til lovpålagt opplysningsplikt. Før bindende avtale inngås oppfordres interessenter til å innhente komplett informasjon fra meglerforetaket, selger eller utleier.






































