Bildegalleri

Velkommen til Solhellinga 32!
Mariås/Ebbestad
Enebolig m/alt på 1. etg - Oppgradert 2014-2024 - 3 soverom - Garasje - Solrik veranda - Grillstue m/peis - Fjordnært
Prisantydning4 350 000 kr
Nøkkelinfo
- Boligtype
- Enebolig
- Eieform
- Selveier
- Soverom
- 3
- Internt bruksareal
- 126 m² (BRA-i)
- Bruksareal
- 148 m²
- Eksternt bruksareal
- 22 m² (BRA-e)
- Balkong/Terrasse
- 42 m² (TBA)
- Byggeår
- 1974
- Energimerking
- Rom
- 4
- Tomteareal
- 924 m² (eiet)
Fasiliteter
Aircondition
Balkong/Terrasse
Barnevennlig
Bredbåndstilknytning
Garasje/P-plass
Hage
Kjæledyr tillatt
Offentlig vann/kloakk
Parkett
Peis/Ildsted
Rolig
Sentralt
Turterreng
Visning
mandag, 06. april
16:00 – 17:00
Ønsker du å delta på visningen ber vi deg melde deg på slik at vi vet at du kommer. Da kan vi bistå alle best mulig og gi deg tiden du trenger på visningen. Visningen avholdes bare dersom det er påmeldte senest 8 timer før visning. Ta gjerne kontakt med megler før visning hvis du har noen spørsmål. Velkommen!
VisningspåmeldingOm boligen
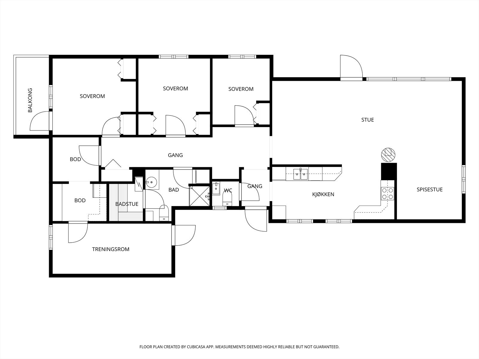
Velkommen til Solhellinga 32!
Dette er en velholdt enebolig i et stille og rolig nabolag, med nærhet til skog og mark. Her bor du med åpen stue- og kjøkkenløsning, tre soverom og en praktisk planløsning over ett plan. Fra stuen er det utgang til en delvis overbygd veranda på 19 m². Boligen har også en egen badstue, garasje i kjelleren og en sjarmerende utestue med åpen peis for lange kvelder.
Høydepunkter:
- Pusset opp overflater i stue og kjøkken (2024)
- Ny parkett stue, kjøkken og gang (2024)
- Malt soverom (2026)
- Etterisolert og ny kledning i 2018
- Varmepumpe i stue (2024)
- Vinduer og verandadører (2014)
- Gulvvarme i stue, kjøkken og entré/gang
- Boder i 1. etg og bod i kjeller gir rikelig med lagringsplass
- Kort gange til busstopp og flotte tur- og badeområder langs fjorden
Dette er en velholdt enebolig i et stille og rolig nabolag, med nærhet til skog og mark. Her bor du med åpen stue- og kjøkkenløsning, tre soverom og en praktisk planløsning over ett plan. Fra stuen er det utgang til en delvis overbygd veranda på 19 m². Boligen har også en egen badstue, garasje i kjelleren og en sjarmerende utestue med åpen peis for lange kvelder.
Høydepunkter:
- Pusset opp overflater i stue og kjøkken (2024)
- Ny parkett stue, kjøkken og gang (2024)
- Malt soverom (2026)
- Etterisolert og ny kledning i 2018
- Varmepumpe i stue (2024)
- Vinduer og verandadører (2014)
- Gulvvarme i stue, kjøkken og entré/gang
- Boder i 1. etg og bod i kjeller gir rikelig med lagringsplass
- Kort gange til busstopp og flotte tur- og badeområder langs fjorden
NB: Knappen for å vise hele beskrivelsen har kun en visuell effekt.
NB: Knappen for å vise hele beskrivelsen har kun en visuell effekt.
Salgsoppgaven beskriver vesentlig og lovpålagt informasjon om eiendommen
Se komplett salgsoppgaveNyttige lenker
Nærområdet
EiendomsMegler 1 Østlandet avd. Drammen
Vi loser deg trygt gjennom hele boligsalget
Annonseinformasjon
| FINN-kode | 457477597 |
|---|---|
| Sist endret | 27. mars 2026 09:39 |
| Referanse | 6013260003 |
Annonsene kan være mangelfulle i forhold til lovpålagt opplysningsplikt. Før bindende avtale inngås oppfordres interessenter til å innhente komplett informasjon fra meglerforetaket, selger eller utleier.









































