Bildegalleri

Velkommen til Vetlandsveien 76! Presentert av Privatmeglere Fridtjof Sparbo og Marius Semmerud Berg.
Oppsal
Lys 3-roms på 74m² med stor, solrik balkong. Pent oppusset i 2011. Bad tatt i regi av brl. Fyring og v.v. inkl.
Prisantydning4 850 000 kr
Nøkkelinfo
- Boligtype
- Leilighet
- Eieform
- Andel
- Soverom
- 2
- Internt bruksareal
- 74 m² (BRA-i)
- Bruksareal
- 80 m²
- Eksternt bruksareal
- 6 m² (BRA-e)
- Balkong/Terrasse
- 10 m² (TBA)
- Etasje
- 1
- Byggeår
- 1956
- Energimerking
- Rom
- 3
- Tomteareal
- 23 965 m² (eiet)
Fasiliteter
Balkong/Terrasse
Barnevennlig
Bredbåndstilknytning
Fellesvaskeri
Kabel-TV
Lademulighet
Offentlig vann/kloakk
Parkett
Rolig
Sentralt
Vaktmester-/vektertjeneste
Turterreng
Visning
tirsdag, 07. april
16:45 – 17:45
Velkommen til visning!Alle våre visninger har påmelding. På denne måten sikrer vi at megler har god oversikt og tid til å imøtekomme alle interessenter på beste måte. Dette er veldig verdifullt for boligkjøpere og for oss. Det er enkelt å melde seg på, og du kan like enkelt melde deg av. Kontakt også gjerne megler i forkant av visning dersom du har spørsmål.
Om boligen
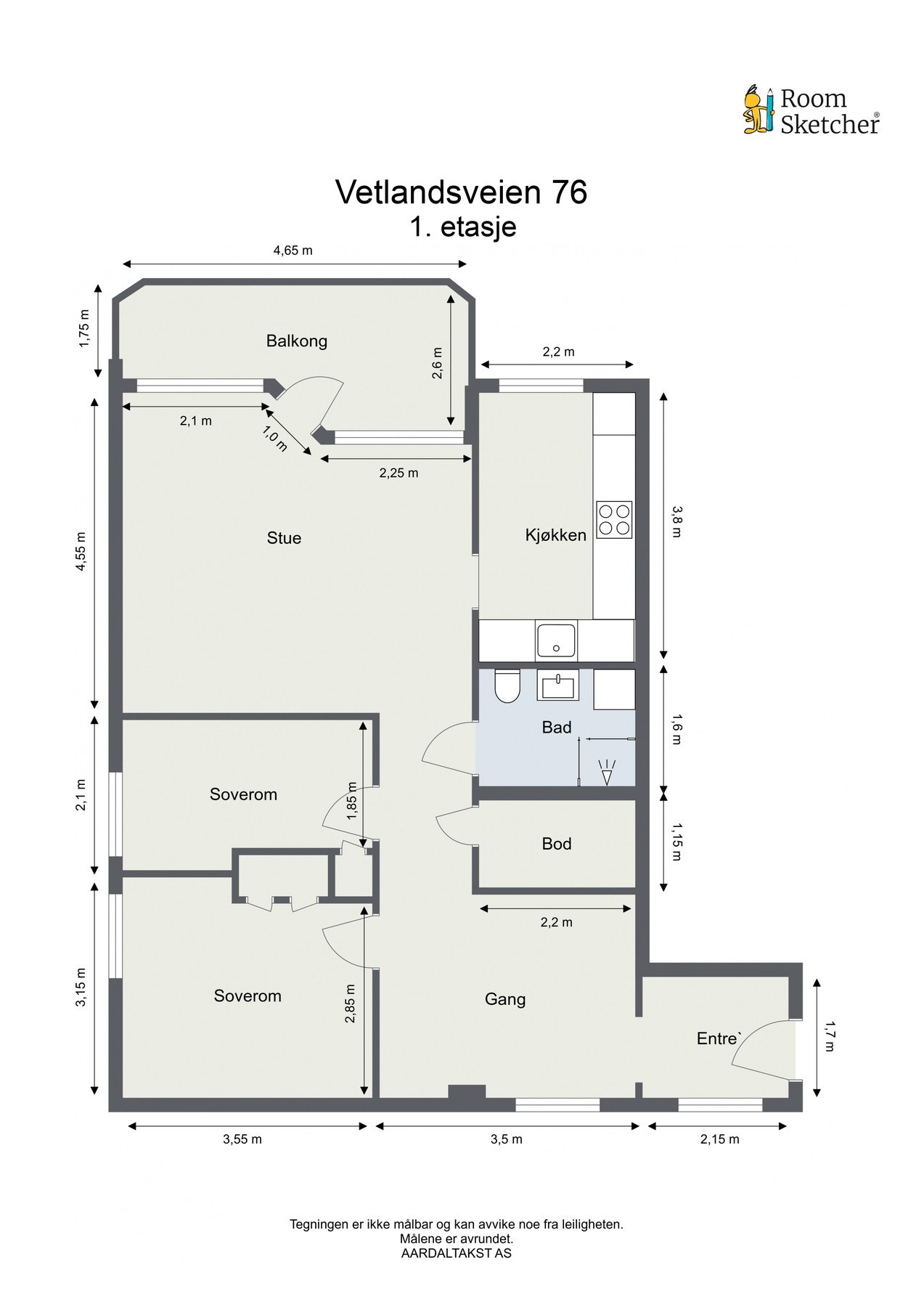
Vetlandsveien 76 er en lys 3-roms på 74m² med stor, solrik balkong og god planløsning i første etasje. Stuen får rikelig med dagslys fra store nyere vinduer, og har utgang til en sydvestvendt balkong på ca. 10 kvm med overbygg og gode solforhold. Svært sentral og populær beliggenhet med ca. 10 min. gange til Oppsal T-banestasjon og kjøpesenter. Kort gangavstand også til Østmarka.
Leiligheten har en meget god planløsning og inneholder gang, bod, bad, kjøkken, stue og 2 stk. soverom. Stuen er romslig og har utgang til balkongen. Leiligheten fikk rehabilitert badet i regi av borettslaget i 2008/2009 og ble videre pusset opp i 2011 med bla. nytt kjøkken, nye parkettgulv, varme i alle gulv og nytt elektrisk anlegg. Varmtvann og fyring er inkludert i felleskostnadene. Godt med lagringsplass i innvendig bod, samt i boder i to kjellerboder på totalt 6 kvm. Mulighet for leie av parkering etter venteliste.
Leiligheten har en meget god planløsning og inneholder gang, bod, bad, kjøkken, stue og 2 stk. soverom. Stuen er romslig og har utgang til balkongen. Leiligheten fikk rehabilitert badet i regi av borettslaget i 2008/2009 og ble videre pusset opp i 2011 med bla. nytt kjøkken, nye parkettgulv, varme i alle gulv og nytt elektrisk anlegg. Varmtvann og fyring er inkludert i felleskostnadene. Godt med lagringsplass i innvendig bod, samt i boder i to kjellerboder på totalt 6 kvm. Mulighet for leie av parkering etter venteliste.
NB: Knappen for å vise hele beskrivelsen har kun en visuell effekt.
NB: Knappen for å vise hele beskrivelsen har kun en visuell effekt.
Salgsoppgaven beskriver vesentlig og lovpålagt informasjon om eiendommen
Se komplett salgsoppgaveNyttige lenker
Nærområdet
PrivatMegleren Première
Kun det beste på dine vegne
Annonseinformasjon
| FINN-kode | 457455504 |
|---|---|
| Sist endret | 30. mars 2026 09:04 |
| Referanse | 183260064 |
Annonsene kan være mangelfulle i forhold til lovpålagt opplysningsplikt. Før bindende avtale inngås oppfordres interessenter til å innhente komplett informasjon fra meglerforetaket, selger eller utleier.






































