Bildegalleri

EiendomsMegler1 v/Sjur Svihus presenterer Anne Grimdalens vei. Første rekke mot Stokkavannet
En meget attraktiv bolig i fremste rekke mot Stokkavannet. Enden av rekken. Betydelig oppgradert. Nydelig utsikt!
Prisantydning9 500 000 kr
Nøkkelinfo
- Boligtype
- Rekkehus
- Eieform
- Andel
- Soverom
- 2
- Internt bruksareal
- 141 m² (BRA-i)
- Bruksareal
- 141 m²
- Balkong/Terrasse
- 61 m² (TBA)
- Byggeår
- 1968
- Energimerking
- Rom
- 5
- Tomteareal
- 3 132 m² (eiet)
Fasiliteter
Balkong/Terrasse
Barnevennlig
Bredbåndstilknytning
Garasje/P-plass
Hage
Kjæledyr tillatt
Ingen gjenboere
Parkett
Peis/Ildsted
Rolig
Sentralt
Utsikt
Turterreng
Lademulighet
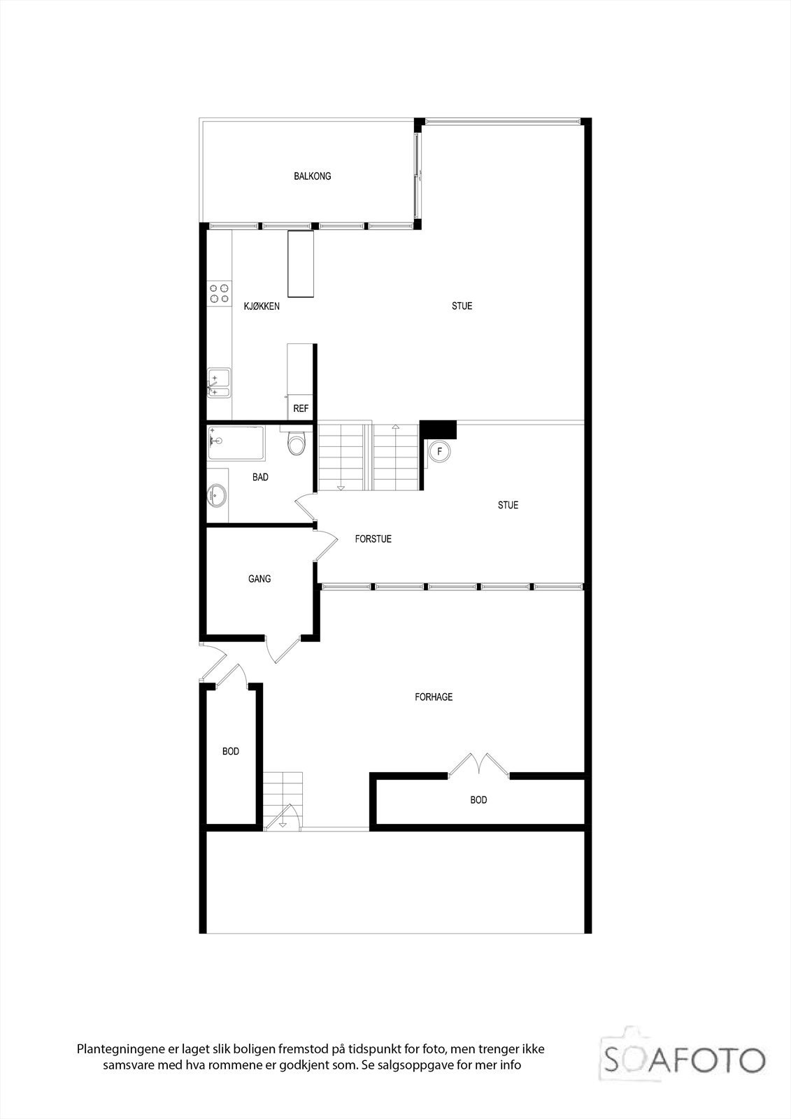
Om boligen
Endelig har vi fått en bolig for salg i fremste rekken mot Stokkavannet.
Nydelig beliggende i barnevennlig, rolig blindvei og med flotte friområder foran.
Hele huset pusset opp renovert med bl.a. uno form kjøkken og HTH bad i 2002.
Nytt utvendig isolert tak i 2024. Sikringsskap oppgradert i 2025. Effektiv peisovn.
Varmepumpe fra 2024.
I 2003 ble stuen i 2. etasje bygget ut og det ble ny vestvendt altan.
Bad, Bad/vaskerom og garderobe i kjelleretasje. Møblene ble levert av Midbøe/HTH. Både dusj og badekar.
Terrasse mot vest med Oppdal bruddheller. Lun og herlig forhage med morgensol. Her er det også lagt Oppdal bruddheller.
Nyere utvendige boder med sedumtak i 2019.
Carport ble oppført i 2017. Elbil-lader.
Nydelig beliggende i barnevennlig, rolig blindvei og med flotte friområder foran.
Hele huset pusset opp renovert med bl.a. uno form kjøkken og HTH bad i 2002.
Nytt utvendig isolert tak i 2024. Sikringsskap oppgradert i 2025. Effektiv peisovn.
Varmepumpe fra 2024.
I 2003 ble stuen i 2. etasje bygget ut og det ble ny vestvendt altan.
Bad, Bad/vaskerom og garderobe i kjelleretasje. Møblene ble levert av Midbøe/HTH. Både dusj og badekar.
Terrasse mot vest med Oppdal bruddheller. Lun og herlig forhage med morgensol. Her er det også lagt Oppdal bruddheller.
Nyere utvendige boder med sedumtak i 2019.
Carport ble oppført i 2017. Elbil-lader.
NB: Knappen for å vise hele beskrivelsen har kun en visuell effekt.
NB: Knappen for å vise hele beskrivelsen har kun en visuell effekt.
Salgsoppgaven beskriver vesentlig og lovpålagt informasjon om eiendommen
Se komplett salgsoppgaveNyttige lenker
Nærområdet
EiendomsMegler 1 Stavanger
En del av Sparebank 1 Sør-Norge
Annonseinformasjon
| FINN-kode | 457439684 |
|---|---|
| Sist endret | 26. mars 2026 12:29 |
| Referanse | 2211260090 |
Annonsene kan være mangelfulle i forhold til lovpålagt opplysningsplikt. Før bindende avtale inngås oppfordres interessenter til å innhente komplett informasjon fra meglerforetaket, selger eller utleier.











































































