Bildegalleri

Velkommen til Grefsenveien 17, presentert av &Partners ved Henrik Jensen, tlf. 996 92 427.
SANDAKER/STORO
Lys & moderne 2-R loftsleilighet fra 2014 I Solrik vestvendt takterrasse på 10m² I Gulvareal på 61m² I Fibernett inkl.!
Prisantydning5 000 000 kr
Nøkkelinfo
- Boligtype
- Leilighet
- Eieform
- Selveier
- Soverom
- 1
- Internt bruksareal
- 42 m² (BRA-i)
- Bruksareal
- 43 m²
- Eksternt bruksareal
- 1 m² (BRA-e)
- Balkong/Terrasse
- 10 m² (TBA)
- Etasje
- 6
- Byggeår
- 1953
- Energimerking
- Rom
- 2
- Tomteareal
- 437 m² (eiet)
Fasiliteter
Balkong/Terrasse
Offentlig vann/kloakk
Ingen gjenboere
Parkett
Utsikt
Sentralt
Bredbåndstilknytning
Moderne
Visning
mandag, 06. april
15:00 – 16:00
Meld deg på visning eller kontakt eiendomsmegler for privatvisning.
Visning blir ikke gjennomført uten påmeldte.
Meld deg gjerne på visning eller kontakt eiendomsmegler for privatvisning.
tirsdag, 07. april
17:00 – 18:00
Meld deg på visning eller kontakt eiendomsmegler for privatvisning.
Visning blir ikke gjennomført uten påmeldte.
Meld deg gjerne på visning eller kontakt eiendomsmegler for privatvisning.
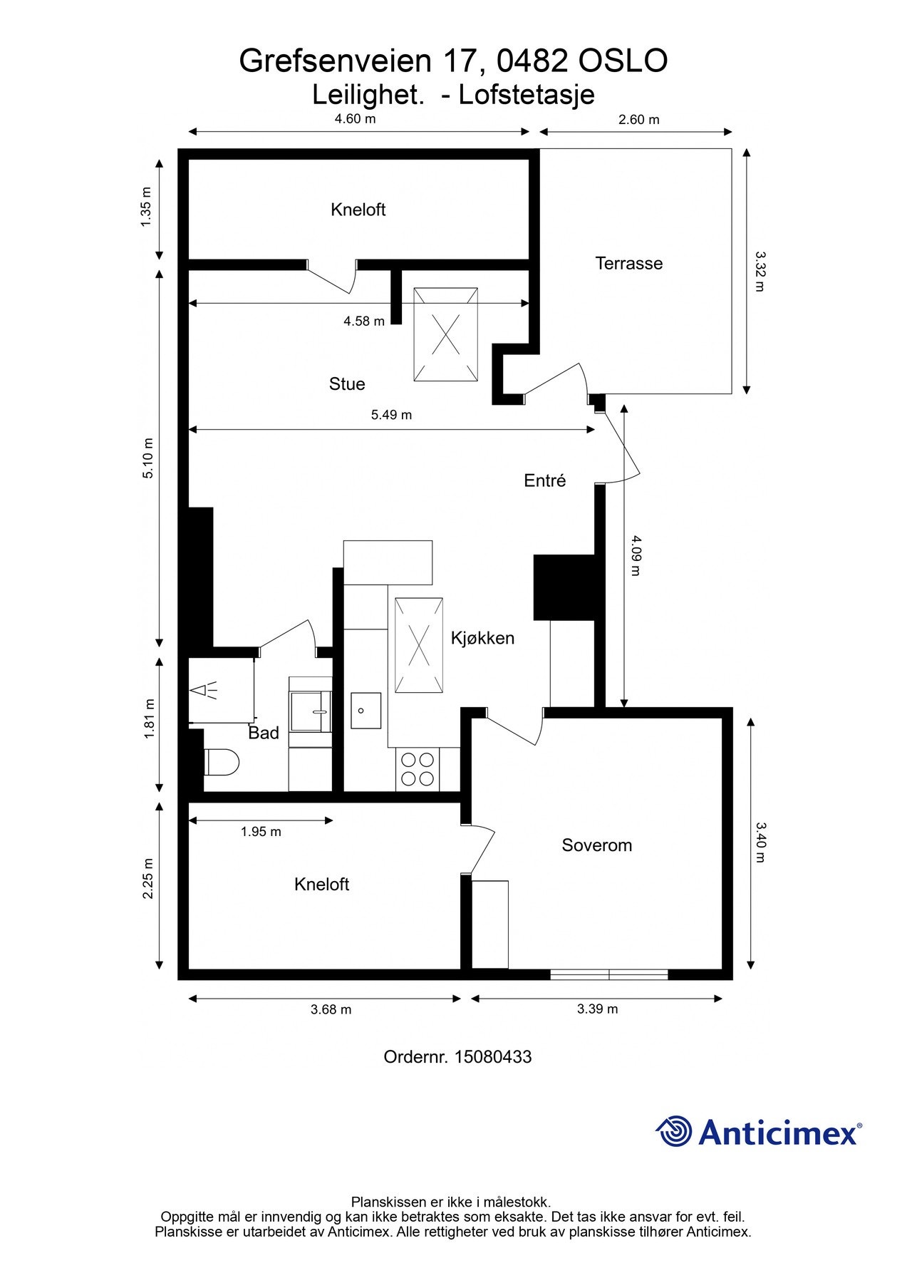
Om boligen
Velkommen til Grefsenveien 17!
En lys og moderne 2-roms loftsleilighet med solrik vestvendt takterrasse på 10m². Leiligheten ligger i byggets loftsetasje som ble utbygget i 2014, og har en gjennomgående planløsning med soverom mot rolig bakgård. Store vinduer slipper inn rikelig med naturlig lys som sammen med takhøyden på opptil ca. 3 meter gir en luftig romfølelse. Gjennomgående god standard med enstavs parkett på gulv, glatte malte overflater og skjult elektrisk anlegg. Moderne kjøkken og baderom fra 2014 gjør at du kan flytte rett inn!
Plasseringen ligger også fint til. Det er veldig lett å komme seg til sentrum, og alt du trenger ligger i umiddelbar nærhet.
HØYDEPUNKTER
* Loftsleilighet med gulvareal på ca. 61m²
* Vestvendt takterrasse på 10m² med deilig ettermiddag- og kveldssol
* Store vinduer fra 2014
* God takhøyde på opptil ca. 3 meter
* Moderne kjøkken og bad fra 2014
* Pen enstavs parkett på gulv
* Fibernett inkludert
* God lagringsplass i leiligheten
En lys og moderne 2-roms loftsleilighet med solrik vestvendt takterrasse på 10m². Leiligheten ligger i byggets loftsetasje som ble utbygget i 2014, og har en gjennomgående planløsning med soverom mot rolig bakgård. Store vinduer slipper inn rikelig med naturlig lys som sammen med takhøyden på opptil ca. 3 meter gir en luftig romfølelse. Gjennomgående god standard med enstavs parkett på gulv, glatte malte overflater og skjult elektrisk anlegg. Moderne kjøkken og baderom fra 2014 gjør at du kan flytte rett inn!
Plasseringen ligger også fint til. Det er veldig lett å komme seg til sentrum, og alt du trenger ligger i umiddelbar nærhet.
HØYDEPUNKTER
* Loftsleilighet med gulvareal på ca. 61m²
* Vestvendt takterrasse på 10m² med deilig ettermiddag- og kveldssol
* Store vinduer fra 2014
* God takhøyde på opptil ca. 3 meter
* Moderne kjøkken og bad fra 2014
* Pen enstavs parkett på gulv
* Fibernett inkludert
* God lagringsplass i leiligheten
NB: Knappen for å vise hele beskrivelsen har kun en visuell effekt.
NB: Knappen for å vise hele beskrivelsen har kun en visuell effekt.
Salgsoppgaven beskriver vesentlig og lovpålagt informasjon om eiendommen
Se komplett salgsoppgaveNærområdet
&Partners Sagene
Verdien av lokalkunnskap
Annonseinformasjon
| FINN-kode | 457436425 |
|---|---|
| Sist endret | 30. mars 2026 17:57 |
| Referanse | 19260072 |
Annonsene kan være mangelfulle i forhold til lovpålagt opplysningsplikt. Før bindende avtale inngås oppfordres interessenter til å innhente komplett informasjon fra meglerforetaket, selger eller utleier.




































