Bildegalleri

EiendomsMegler 1 v/Frank Robert Bae har gleden av å presentere en pen 3-roms leilighet beliggende på populære Charlottenlund.
Charlottenlund
Delikat 3-roms endeleilighet - Totaloppusset i 2024 - Vestvendt balkong med glimrende sol- og utsiktsforhold - P-plass
Prisantydning3 690 000 kr
Nøkkelinfo
- Boligtype
- Leilighet
- Eieform
- Andel
- Soverom
- 2
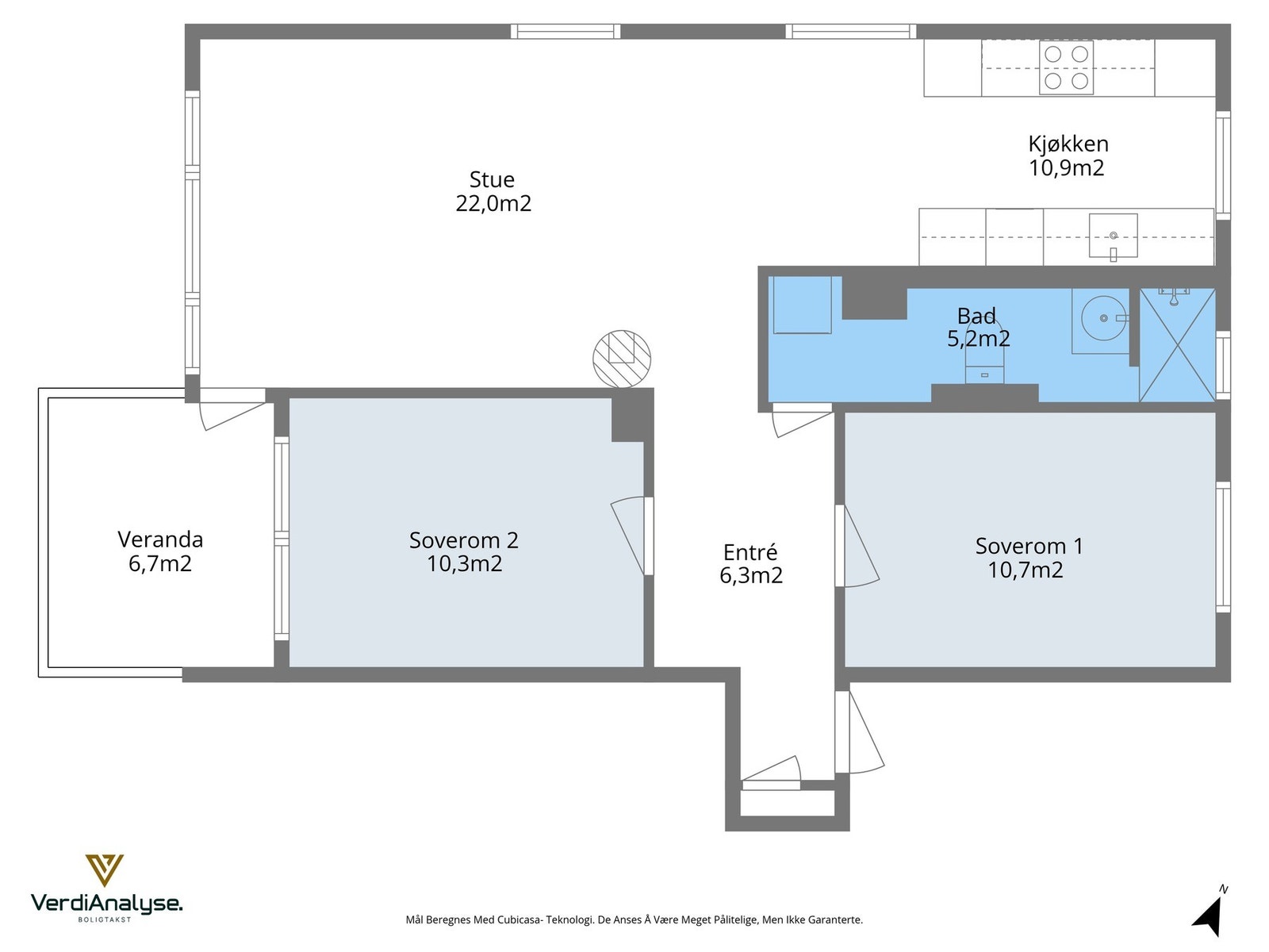
- Internt bruksareal
- 70 m² (BRA-i)
- Bruksareal
- 70 m²
- Balkong/Terrasse
- 7 m² (TBA)
- Etasje
- 2
- Byggeår
- 1962
- Energimerking
- Rom
- 3
- Tomt
- Eiet
Fasiliteter
Barnevennlig
Balkong/Terrasse
Garasje/P-plass
Kabel-TV
Offentlig vann/kloakk
Peis/Ildsted
Turterreng
Vaktmester-/vektertjeneste
Fellesvaskeri
Sentralt
Bredbåndstilknytning
Moderne
Rolig
Lademulighet
Visning
tirsdag, 07. april
15:45 – 16:30
Våre visninger har påmelding. Dette gjør vi for å kunne yte bedre service for våre kunder. Verdifullt for boligkjøper og for oss. Vi anbefaler at salgsoppgaven lastes ned digitalt før visning, og ring oss gjerne på forhånd for spørsmål om boligen. Passer ikke angitt tidspunkt, ta kontakt så finner vi en løsning. Skulle det mot formodning ikke være påmeldte til angitt visningstidspunkt vil ikke visning bli gjennomført.
Om boligen
EiendomsMegler 1 v/Frank Robert Bae har gleden av å presentere en svært flott 3-roms leilighet beliggende på populære Charlottenlund.
Leiligheten må sies å ha en av de aller beste beliggenhetene i området, da den ligger i 2. etasje med endebeliggenhet. Dette gjør at du får to ekstra vinduer med fjordutsikt, i tillegg til et herlig lysinnslipp som bidrar til en lett og luftig atmosfære. På den vestvendte balkongen nyter du glimrende solforhold fra ca. kl. 13:00 til solnedgang på sommerstid.
Leiligheten ble totaloppusset i 2024 og byr på en gjennomgående moderne standard. Leilighetens kvaliteter blir bekreftet i takstmannens rapport, så her gjør du deg et trygt kjøp. Alle leiligheter som har behov har rett på fast parkeringsplass, og det er mulighet for lading av elbil. Rikelig med lagringsplass i tre kjellerboder.
Borettslaget ble utvendig renovert i 2007 og 2016 med bl.a. vinduer og etterisolering. Pipeløp fornyet i 2023 og rørfornying gjennomført i 2025
Velkommen på visning!
Leiligheten må sies å ha en av de aller beste beliggenhetene i området, da den ligger i 2. etasje med endebeliggenhet. Dette gjør at du får to ekstra vinduer med fjordutsikt, i tillegg til et herlig lysinnslipp som bidrar til en lett og luftig atmosfære. På den vestvendte balkongen nyter du glimrende solforhold fra ca. kl. 13:00 til solnedgang på sommerstid.
Leiligheten ble totaloppusset i 2024 og byr på en gjennomgående moderne standard. Leilighetens kvaliteter blir bekreftet i takstmannens rapport, så her gjør du deg et trygt kjøp. Alle leiligheter som har behov har rett på fast parkeringsplass, og det er mulighet for lading av elbil. Rikelig med lagringsplass i tre kjellerboder.
Borettslaget ble utvendig renovert i 2007 og 2016 med bl.a. vinduer og etterisolering. Pipeløp fornyet i 2023 og rørfornying gjennomført i 2025
Velkommen på visning!
NB: Knappen for å vise hele beskrivelsen har kun en visuell effekt.
NB: Knappen for å vise hele beskrivelsen har kun en visuell effekt.
Salgsoppgaven beskriver vesentlig og lovpålagt informasjon om eiendommen
Se komplett salgsoppgaveNyttige lenker
Nærområdet
EiendomsMegler 1 Grilstadporten
Vi loser deg trygt gjennom hele boligsalget
Annonseinformasjon
| FINN-kode | 457422488 |
|---|---|
| Sist endret | 26. mars 2026 11:08 |
| Referanse | 33260048 |
Annonsene kan være mangelfulle i forhold til lovpålagt opplysningsplikt. Før bindende avtale inngås oppfordres interessenter til å innhente komplett informasjon fra meglerforetaket, selger eller utleier.


































