Bildegalleri

PrivatMegleren v/Eiendomsmegler MNEF Bjørn Tore Vigdel presenterer Kjelsbergkroken 15 for salg
Familievennlig bolig i rolig blindgate - solrik hage, flott utsikt og gode oppvekstvilkår
Prisantydning5 950 000 kr
Nøkkelinfo
- Boligtype
- Tomannsbolig
- Eieform
- Selveier
- Soverom
- 4
- Internt bruksareal
- 195 m² (BRA-i)
- Bruksareal
- 228 m²
- Eksternt bruksareal
- 33 m² (BRA-e)
- Balkong/Terrasse
- 24 m² (TBA)
- Byggeår
- 1952
- Energimerking
- Rom
- 5
- Tomteareal
- 524 m² (eiet)
Fasiliteter
Barnevennlig
Balkong/Terrasse
Garasje/P-plass
Offentlig vann/kloakk
Parkett
Peis/Ildsted
Sentralt
Rolig
Visning
tirsdag, 07. april
16:30 – 17:30
Velkommen til visning!
Alle våre visninger har påmelding. På denne måten sikrer vi at megler har god oversikt og tid til å imøtekomme alle interessenter på beste måte. Dette er veldig verdifullt for boligkjøpere og for oss. Det er enkelt å melde seg på, og du kan like enkelt melde deg av. Kontakt også gjerne megler i forkant av visning dersom du har spørsmål.
Om boligen
Velkommen til en innholdsrik og familievennlig bolig i en rolig, trafikkstille blindgate - et trygt og ideelt sted for barnefamilier. Boligen har en gjennomtenkt planløsning med flere stuer som gir god plass til både hverdag og sosiale sammenkomster. Fra stuen er det direkte utgang til en solrik og skjermet hage med gode solforhold hele dagen og utover kvelden.
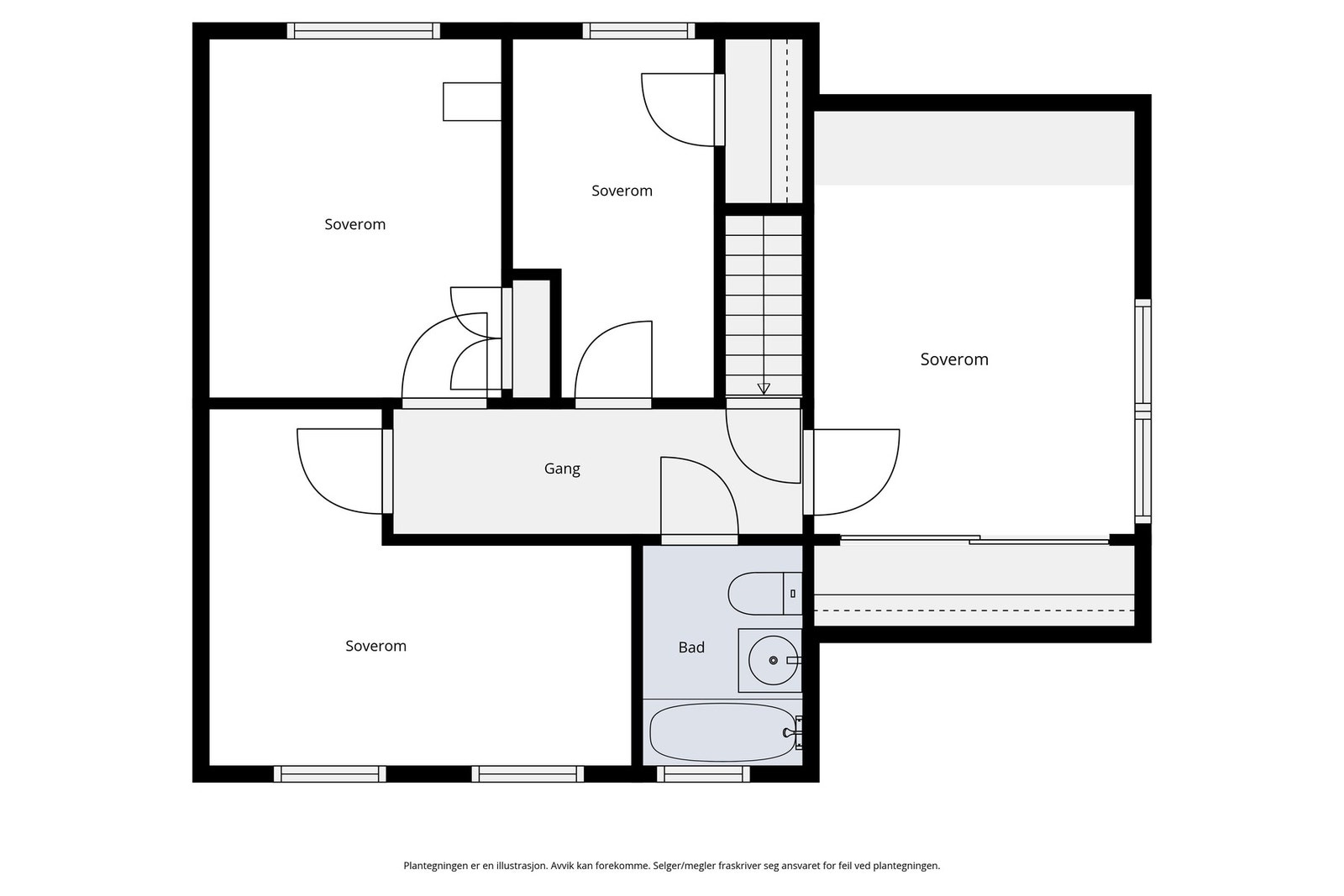
Hagen er pent opparbeidet med frukttrær, bærbusker og grønne soner, og byr på fine lekemuligheter for barna. Boligen går over tre plan med stue, kjøkken og bad i hovedetasjen. Loftsetasjen inneholder fire soverom og et ekstra bad, mens kjelleren har boder og kjellerstue (ikke godkjent for varig opphold).
Eiendommen har gode parkeringsmuligheter i garasje og gårdsrom. En praktisk og trivelig bolig i et populært og barnevennlig område.
Hagen er pent opparbeidet med frukttrær, bærbusker og grønne soner, og byr på fine lekemuligheter for barna. Boligen går over tre plan med stue, kjøkken og bad i hovedetasjen. Loftsetasjen inneholder fire soverom og et ekstra bad, mens kjelleren har boder og kjellerstue (ikke godkjent for varig opphold).
Eiendommen har gode parkeringsmuligheter i garasje og gårdsrom. En praktisk og trivelig bolig i et populært og barnevennlig område.
NB: Knappen for å vise hele beskrivelsen har kun en visuell effekt.
NB: Knappen for å vise hele beskrivelsen har kun en visuell effekt.
Salgsoppgaven beskriver vesentlig og lovpålagt informasjon om eiendommen
Se komplett salgsoppgaveNyttige lenker
Nærområdet
Privatmegleren Galleri
Kun det beste på dine vegne
Annonseinformasjon
| FINN-kode | 457409627 |
|---|---|
| Sist endret | 28. mars 2026 13:49 |
| Referanse | 317260020 |
Annonsene kan være mangelfulle i forhold til lovpålagt opplysningsplikt. Før bindende avtale inngås oppfordres interessenter til å innhente komplett informasjon fra meglerforetaket, selger eller utleier.


















































































