Bildegalleri

Velkommen til Sandesletta 21B! En nyere og moderne 2-roms leilighet med en attraktiv og sentral beliggenhet i Sola sentrum.
Sola
Moderne 2-roms leilighet i 2.etasje, med solrik balkong og fast p-plass i lukket anlegg
Prisantydning3 790 000 kr
Nøkkelinfo
- Boligtype
- Leilighet
- Eieform
- Selveier
- Soverom
- 1
- Internt bruksareal
- 55 m² (BRA-i)
- Bruksareal
- 60 m²
- Eksternt bruksareal
- 5 m² (BRA-e)
- Balkong/Terrasse
- 9 m² (TBA)
- Etasje
- 2
- Byggeår
- 2018
- Energimerking
- Rom
- 2
- Tomteareal
- 1 316 m² (eiet)
Fasiliteter
Balkong/Terrasse
Bredbåndstilknytning
Garasje/P-plass
Heis
Kjæledyr tillatt
Offentlig vann/kloakk
Parkett
Rolig
Sentralt
Vaktmester-/vektertjeneste
Balansert ventilasjon
Visning
tirsdag, 07. april
18:00 – 19:00
Velkommen til visning! Husk å melde deg på visningen ved å trykke på knappen visningspåmelding under, eller ta kontakt med megler for å gjøre en avtale. Visninger uten påmeldte blir avlyst.
VisningspåmeldingOm boligen
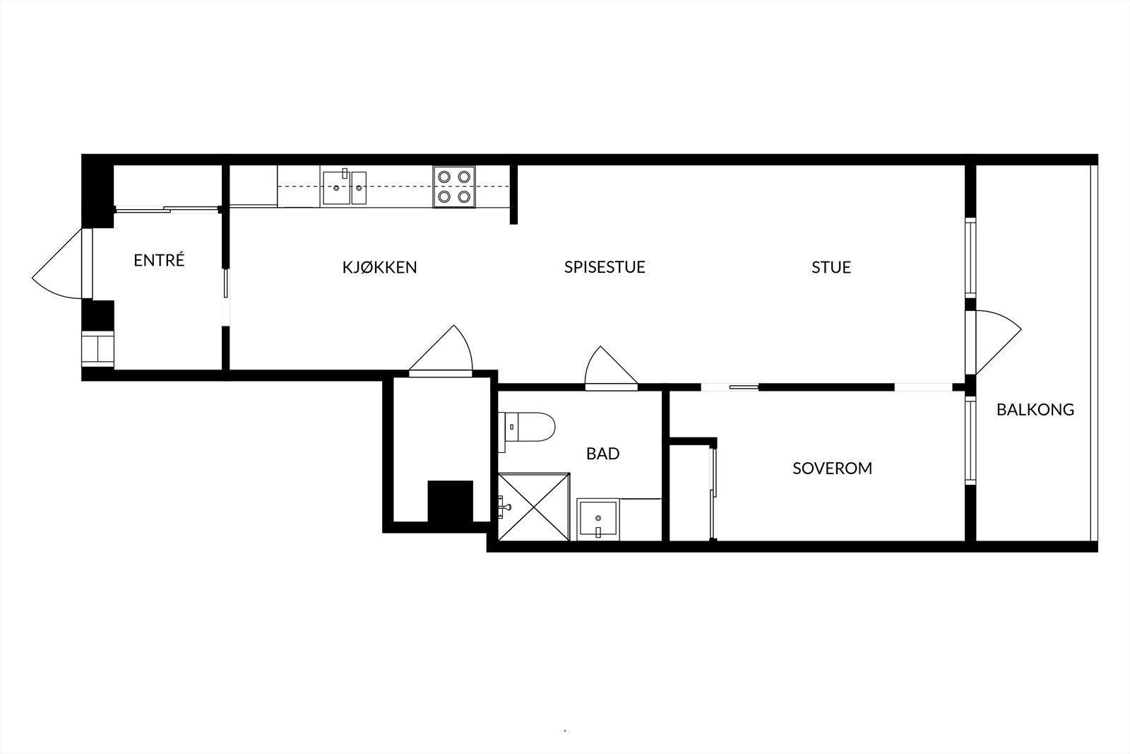
Velkommen til Sandesletta 21B! En nyere og moderne 2-roms leilighet med en attraktiv og sentral beliggenhet i Sola sentrum. Leiligheten ligger i byggets 2. etasje og har enkel adkomst via heis. Innvendig holder leiligheten god standard fra 2018 og har blant annet gjennomgående parkett på gulv, helfliset bad, samt åpen stue- og kjøkkenløsning. Leiligheten har sørvendt balkong på ca. 9 m² med gode solforhold. Leiligheten har tilhørende fast parkeringsplass i lukket garasjeanlegg med heisadkomst.
Meget lave felleskostnader, kun kr. 3306,- pr. mnd inkl. kommunale avgifter, TV, Internett (Altibox), bygningsforsikring, oppvarming (fjernvarme), forbruk varmtvann.
Energiklasse B = Grønt boliglån og lavere rente.
Entré, stue/kjøkken, soverom, bad, bod + kjellerbod.
Felleslokale som kan leies.
Meget lave felleskostnader, kun kr. 3306,- pr. mnd inkl. kommunale avgifter, TV, Internett (Altibox), bygningsforsikring, oppvarming (fjernvarme), forbruk varmtvann.
Energiklasse B = Grønt boliglån og lavere rente.
Entré, stue/kjøkken, soverom, bad, bod + kjellerbod.
Felleslokale som kan leies.
NB: Knappen for å vise hele beskrivelsen har kun en visuell effekt.
NB: Knappen for å vise hele beskrivelsen har kun en visuell effekt.
Salgsoppgaven beskriver vesentlig og lovpålagt informasjon om eiendommen
Se komplett salgsoppgaveNyttige lenker
Nærområdet
Eiendomsmegler Norge Stavanger
Best der du bor
Annonseinformasjon
| FINN-kode | 457370409 |
|---|---|
| Sist endret | 27. mars 2026 18:26 |
| Referanse | 20260058 |
Annonsene kan være mangelfulle i forhold til lovpålagt opplysningsplikt. Før bindende avtale inngås oppfordres interessenter til å innhente komplett informasjon fra meglerforetaket, selger eller utleier.







































