Bildegalleri

Velkommen til Kjevene 1 - presenteres av Gro Anita Nøkland i Eiendomsmegler 1 Jærmegleren
Kleppe
Modernisert og oppgradert enebolig med bra innhold| Attraktiv beliggenhet og tomt på 801 kvm
Prisantydning7 500 000 kr
Nøkkelinfo
- Boligtype
- Enebolig
- Eieform
- Selveier
- Soverom
- 4
- Internt bruksareal
- 240 m² (BRA-i)
- Bruksareal
- 262 m²
- Eksternt bruksareal
- 22 m² (BRA-e)
- Balkong/Terrasse
- 53 m² (TBA)
- Byggeår
- 1963
- Energimerking
- Tomteareal
- 801 m² (eiet)
Visning
onsdag, 08. april
16:00 – 17:00
Ønsker du å delta på visningen ber vi deg melde deg på slik at vi vet at du kommer. Da kan vi bistå alle best mulig og gi deg tiden du trenger på visningen. Kontakt gjerne megler før visning hvis du har spørsmål. Visningen avholdes bare dersom det er påmeldte. Hvis det ikke er oppsatt visningstidspunkt eller tidspunkt ikke passer, kontakt megler.
VisningspåmeldingOm boligen
Velkommen til Kjelvene 1A!
Flott modernisert enebolig over tre plan. Romslig og pent opparbeidet tomt med en attraktiv beliggenhet på Klepp
Litt om boligen:
- Oppgradert og modernisert både innvendig og utvendig
- Flott opparbeidet, beplantet og solrik tomt
- Romslig stue med vindu som gir gode lysforhold i rommet og fin utsikt
- Modernisert kjøkken i åpen løsning til stue
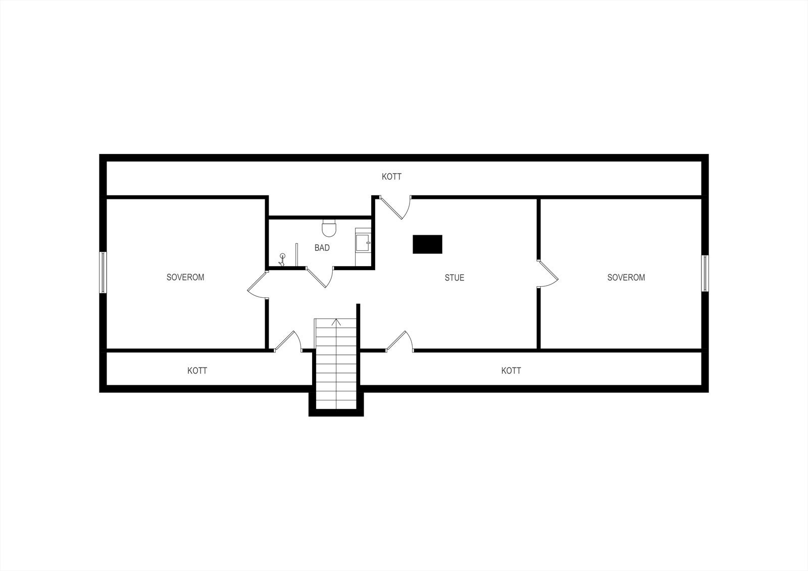
- 2 soverom i hovedplan i tillegg til bad og gjestetoalett
- 2 soverom, bad og lekerom i loftstetasje.
- Kjelleretasje med flere disponible rom, vaskerom og bod.
- Varmepumpe fra 2021 og vedovn fra 2025
- Garasje
Velkommen til visning!
Flott modernisert enebolig over tre plan. Romslig og pent opparbeidet tomt med en attraktiv beliggenhet på Klepp
Litt om boligen:
- Oppgradert og modernisert både innvendig og utvendig
- Flott opparbeidet, beplantet og solrik tomt
- Romslig stue med vindu som gir gode lysforhold i rommet og fin utsikt
- Modernisert kjøkken i åpen løsning til stue
- 2 soverom i hovedplan i tillegg til bad og gjestetoalett
- 2 soverom, bad og lekerom i loftstetasje.
- Kjelleretasje med flere disponible rom, vaskerom og bod.
- Varmepumpe fra 2021 og vedovn fra 2025
- Garasje
Velkommen til visning!
NB: Knappen for å vise hele beskrivelsen har kun en visuell effekt.
NB: Knappen for å vise hele beskrivelsen har kun en visuell effekt.
Salgsoppgaven beskriver vesentlig og lovpålagt informasjon om eiendommen
Se komplett salgsoppgaveNyttige lenker
Nærområdet
EiendomsMegler 1 Jærmegleren
En del av Sparebank 1 Sør-Norge
Annonseinformasjon
| FINN-kode | 457359561 |
|---|---|
| Sist endret | 27. mars 2026 14:42 |
| Referanse | 2403250231 |
Annonsene kan være mangelfulle i forhold til lovpålagt opplysningsplikt. Før bindende avtale inngås oppfordres interessenter til å innhente komplett informasjon fra meglerforetaket, selger eller utleier.












































