Bildegalleri

Velkommen til Tonstadbrinken 301F - En tiltalende og innholdsrik 4-roms leilighet over to plan, plassert i et stille og behagelig nabolag. Foto: Harald Wanvik.
Tiller
Moderne og attraktiv selveierleilighet over to plan | Parkering i parkeringskjeller | Bygg fra 2019
Prisantydning5 690 000 kr
Nøkkelinfo
- Boligtype
- Leilighet
- Eieform
- Selveier
- Soverom
- 3
- Internt bruksareal
- 118 m² (BRA-i)
- Bruksareal
- 123 m²
- Eksternt bruksareal
- 5 m² (BRA-e)
- Balkong/Terrasse
- 18 m² (TBA)
- Etasje
- 2
- Byggeår
- 2019
- Energimerking
- Rom
- 4
- Tomteareal
- 527 m² (eiet)
Fasiliteter
Balkong/Terrasse
Barnevennlig
Bredbåndstilknytning
Garasje/P-plass
Kjæledyr tillatt
Ingen gjenboere
Kabel-TV
Offentlig vann/kloakk
Rolig
Sentralt
Utsikt
Turterreng
Lademulighet
Balansert ventilasjon
Visning
tirsdag, 14. april
17:00 – 18:00
Alle våre visninger har påmelding. Meld deg opp til ønsket visningstidspunkt via linken visningspåmelding , eller kontakt megler på telefon, SMS eller mail. Vi anbefaler at salgsoppgaven lastes ned digitalt, og oppfordrer alle til å lese komplett salgsoppgave før visning. Skulle det mot formodning ikke være påmeldte til angitt visningstidspunkt vil ikke visning bli gjennomført.
VisningspåmeldingOm boligen
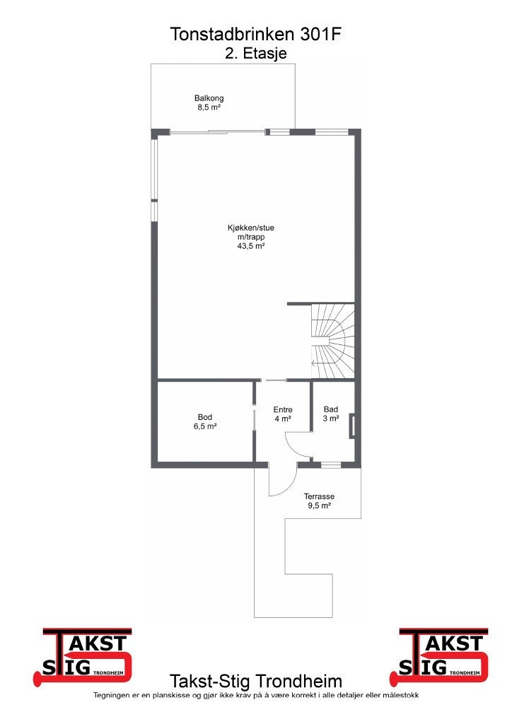
Velkommen til Tonstadbrinken 301F!
Her får man en lys og særdeles innbydende selveierleilighet over to plan med optimal planløsning. Boligen er fra 2019 og har attraktivt plassering med endebeliggenhet. Her får man moderne standard i et barnevennlig område på Tiller. Leiligheten byr på en luftig og åpen stue-/kjøkkenløsning, to bad, et vaskerom, tre soverom og innvendig bod av god størrelse. Hele boligen har en gjennomgående morderne og høy standard. Boligen ligger meget fin til i et etablert boligområdet med skjermet tun uten gjennomgangstrafikk.
Verdt å merke seg:
Her får man en lys og særdeles innbydende selveierleilighet over to plan med optimal planløsning. Boligen er fra 2019 og har attraktivt plassering med endebeliggenhet. Her får man moderne standard i et barnevennlig område på Tiller. Leiligheten byr på en luftig og åpen stue-/kjøkkenløsning, to bad, et vaskerom, tre soverom og innvendig bod av god størrelse. Hele boligen har en gjennomgående morderne og høy standard. Boligen ligger meget fin til i et etablert boligområdet med skjermet tun uten gjennomgangstrafikk.
Verdt å merke seg:
- Attraktiv og barnevennlig beliggenhet
- Endebeliggenhet
- Parkering i p-kjeller
- Gjennomgående moderne standard
- God planløsning
- Nærhet til en rekke servicefasiliteter
Velkommen til visning
NB: Knappen for å vise hele beskrivelsen har kun en visuell effekt.
NB: Knappen for å vise hele beskrivelsen har kun en visuell effekt.
Salgsoppgaven beskriver vesentlig og lovpålagt informasjon om eiendommen
Se komplett salgsoppgaveNyttige lenker
Nærområdet
Heimdal Eiendomsmegling avd. Heimdal
Annonseinformasjon
| FINN-kode | 457346122 |
|---|---|
| Sist endret | 30. mars 2026 20:33 |
| Referanse | 8-26-0101 |
Annonsene kan være mangelfulle i forhold til lovpålagt opplysningsplikt. Før bindende avtale inngås oppfordres interessenter til å innhente komplett informasjon fra meglerforetaket, selger eller utleier.
































