Bildegalleri

Velkommen til Sandborgs veg 3 B, presentert av EiendomsMegler 1 ved Ivar Lindrupsen.
Byåsen/Munkvoll
FLOTT OG TILTALENDE 3-ROMS MED NYDELIG UTSIKT. Stor balkong. Parkering. 3 boder. Umiddelbar nærhet til Bymarka.
Prisantydning3 290 000 kr
Nøkkelinfo
- Boligtype
- Leilighet
- Eieform
- Andel
- Soverom
- 2
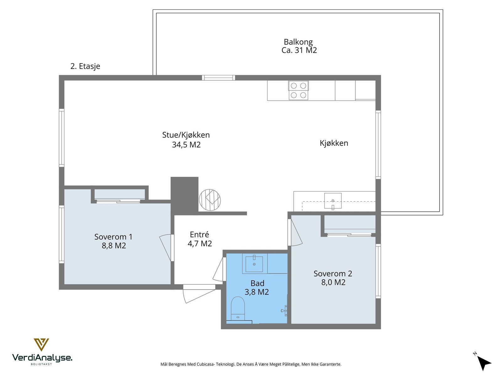
- Internt bruksareal
- 64 m² (BRA-i)
- Bruksareal
- 80 m²
- Eksternt bruksareal
- 16 m² (BRA-e)
- Balkong/Terrasse
- 31 m² (TBA)
- Etasje
- 2
- Byggeår
- 1955
- Energimerking
- Rom
- 3
- Tomteareal
- 3 604 m² (eiet)
Fasiliteter
Barnevennlig
Balkong/Terrasse
Garasje/P-plass
Offentlig vann/kloakk
Peis/Ildsted
Turterreng
Utsikt
Moderne
Rolig
Bademulighet
Visning
tirsdag, 07. april
17:45 – 18:30
Våre visninger har påmelding. Dette gjør vi for å kunne yte bedre service for våre kunder. Verdifullt for boligkjøper og for oss. Vi anbefaler at salgsoppgaven lastes ned digitalt før visning, og ring oss gjerne på forhånd for spørsmål om boligen. Passer ikke angitt tidspunkt, ta kontakt så finner vi en løsning. Skulle det mot formodning ikke være påmeldte til angitt visningstidspunkt vil ikke visning bli gjennomført.
Om boligen
EiendomsMegler 1 ved Ivar Lindrupsen har gleden av å presentere en romslig og pen 1/4 part i 2. etasje. Leiligheten ligger høyt og fritt på Byåsen, med god utsikt og kort vei til alle hverdagsfasiliteter. Bymarka ligger like ved og byr på flotte turmuligheter og badeplasser som Kyvannet, Lianvannet og Haukvannet.
Kvaliteter verdt å nevne:
Kvaliteter verdt å nevne:
- Romslig og pen 1/4 part i 2. etasje.
- Herlige utsiktforhold med utsikt mot fjorden.
- Flott kjøkken fra 2019
- Lekkert bad fra 2019 med elektrisk gulvvarme
- Godt med lysinnslipp i hele leiligheten
- Stor og flott balkong på ca. 31 kvm
- Mye lagringsplass med totalt ca.16m² i bodareal.
- To romslige soverom
- Barnevennlig beliggenhet med gangavstand til barnehage og skole.
- Kort vei til alt du trenger
- Vedovn
Velkommen til hyggelig visning!
NB: Knappen for å vise hele beskrivelsen har kun en visuell effekt.
NB: Knappen for å vise hele beskrivelsen har kun en visuell effekt.
Salgsoppgaven beskriver vesentlig og lovpålagt informasjon om eiendommen
Se komplett salgsoppgaveNyttige lenker
Nærområdet
EiendomsMegler 1 Byåsen
Vi loser deg trygt gjennom hele boligsalget
Annonseinformasjon
| FINN-kode | 457314592 |
|---|---|
| Sist endret | 30. mars 2026 17:38 |
| Referanse | 35260026 |
Annonsene kan være mangelfulle i forhold til lovpålagt opplysningsplikt. Før bindende avtale inngås oppfordres interessenter til å innhente komplett informasjon fra meglerforetaket, selger eller utleier.




























