Bildegalleri

Meget sentrumsnær 2-romsleilighet med sørvendt balkong
Innbygda sentrum
2-roms leilighet fra 2023 i 3. etg. | Innglasset, solrik balkong på 9 m² | Utsikt til elva og fjellet | Garasjeplass
Prisantydning2 800 000 kr
Nøkkelinfo
- Boligtype
- Leilighet
- Eieform
- Selveier
- Soverom
- 1
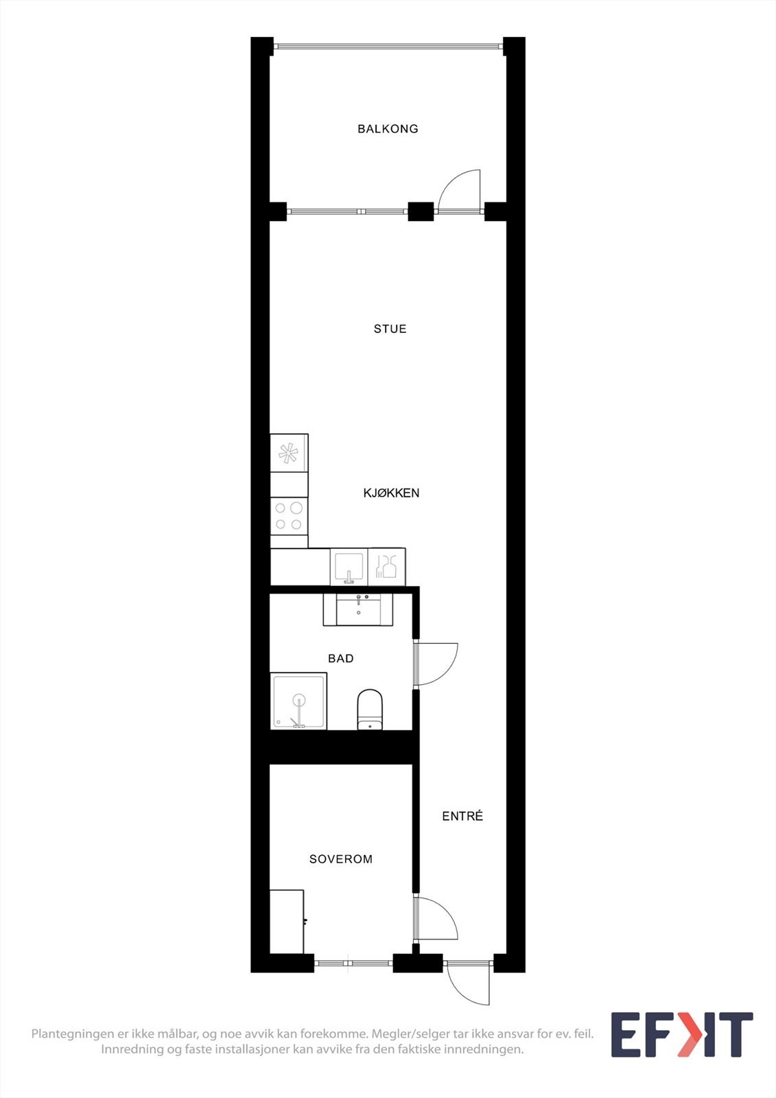
- Internt bruksareal
- 43 m² (BRA-i)
- Bruksareal
- 48 m²
- Eksternt bruksareal
- 5 m² (BRA-e)
- Balkong/Terrasse
- 9 m² (TBA)
- Etasje
- 3
- Byggeår
- 2023
- Energimerking
- Rom
- 2
- Tomteareal
- 1 247 m² (eiet)
Fasiliteter
Alpinanlegg
Balkong/Terrasse
Bredbåndstilknytning
Garasje/P-plass
Golfbane
Heis
Offentlig vann/kloakk
Parkett
Sentralt
Utsikt
Fiskemulighet
Turterreng
Balansert ventilasjon
Visning
tirsdag, 31. mars
16:00 – 16:30
Ønsker du å delta på visningen ber vi deg melde deg på slik at vi vet at du kommer. Da kan vi bistå alle best mulig og gi deg tiden du trenger på visningen. Ta gjerne kontakt med megler før visning hvis du har noen spørsmål. Velkommen!
VisningspåmeldingOm boligen
Velkommen til Liavegen 1A - Leilighet 305! En nyere, arealeffektiv selveierleilighet fra 2023 med sentral beliggenhet i Trysil.
Denne leiligheten i tredje etasje gir deg en sentral base med gangavstand til alt du trenger. Søndagsåpen dagligvare, skoler og kollektivtransport er kun minutter unna, i tillegg til treningssentre, koselige restauranter og kafeer - samt de fleste offentlige servicetilbud. Leiligheten har en optimal planløsning i retning fjellet. Fjernvarme sørger for oppvarming og varmt tappevann, noe som gir en stabil og enkel hverdag. Energiklasse B.
Verdt å merke seg:
- Innglasset, solrik terrasse på 9 m²
- Vannbåren gulvvarme på badet
- Balansert ventilasjonssystem med varmegjenvinning
- Kjøkken med integrerte hvitevarer
- Parkeringsplass og bod i kjelleren
Velkommen!
Denne leiligheten i tredje etasje gir deg en sentral base med gangavstand til alt du trenger. Søndagsåpen dagligvare, skoler og kollektivtransport er kun minutter unna, i tillegg til treningssentre, koselige restauranter og kafeer - samt de fleste offentlige servicetilbud. Leiligheten har en optimal planløsning i retning fjellet. Fjernvarme sørger for oppvarming og varmt tappevann, noe som gir en stabil og enkel hverdag. Energiklasse B.
Verdt å merke seg:
- Innglasset, solrik terrasse på 9 m²
- Vannbåren gulvvarme på badet
- Balansert ventilasjonssystem med varmegjenvinning
- Kjøkken med integrerte hvitevarer
- Parkeringsplass og bod i kjelleren
Velkommen!
NB: Knappen for å vise hele beskrivelsen har kun en visuell effekt.
NB: Knappen for å vise hele beskrivelsen har kun en visuell effekt.
Salgsoppgaven beskriver vesentlig og lovpålagt informasjon om eiendommen
Se komplett salgsoppgaveNyttige lenker
Nærområdet
EiendomsMegler 1 Trysil
Vi loser deg trygt gjennom hele boligsalget
Annonseinformasjon
| FINN-kode | 457309909 |
|---|---|
| Sist endret | 26. mars 2026 16:54 |
| Referanse | 6045260133 |
Annonsene kan være mangelfulle i forhold til lovpålagt opplysningsplikt. Før bindende avtale inngås oppfordres interessenter til å innhente komplett informasjon fra meglerforetaket, selger eller utleier.























