Bildegalleri

Velkommen til Moseveien 3 B -Tomannsbolig med 3 soverom i barnevennlig område - Oppussingsbehov - Pendlervennlig - Nærhet til skole!
Vertikaldelt tomannsbolig i barnevennlig og rolig område - 3 sov og stor solrik terrasse - Gangavstand til ny skole!
Prisantydning3 990 000 kr
Nøkkelinfo
- Boligtype
- Tomannsbolig
- Eieform
- Selveier
- Soverom
- 3
- Internt bruksareal
- 96 m² (BRA-i)
- Bruksareal
- 101 m²
- Eksternt bruksareal
- 5 m² (BRA-e)
- Balkong/Terrasse
- 35 m² (TBA)
- Etasje
- 2
- Byggeår
- 2003
- Energimerking
- Rom
- 4
- Tomteareal
- 705 m² (eiet)
Fasiliteter
Balkong/Terrasse
Barnevennlig
Offentlig vann/kloakk
Parkett
Peis/Ildsted
Rolig
Turterreng
Visning
torsdag, 09. april
18:00 – 19:00
Ønsker du å delta på visningen ber vi deg melde deg på slik at vi vet at du kommer. Da kan vi bistå alle best mulig og gi deg tiden du trenger på visningen. Kontakt gjerne megler før visning hvis du har spørsmål. Visningen avholdes bare dersom det er påmeldte. Frist for påmelding er samme dag kl. 12.00. Hvis det ikke er oppsatt visningstidspunkt eller tidspunkt ikke passer, kontakt megler.
VisningspåmeldingOm boligen
Velkommen til Moseveien 3B!
Eiendommen ligger i et ettertraktet, trivelig og populært boligområde på Loesmoen i Hokksund. Svært sentralt med alt du trenger i hverdagen av dagligvarebutikker, handel og servicetilbud kun få minutters gange unna. Det er 1 km til tog- og busstasjon med hyppige avganger retning Oslo, Drammen og Kongsberg, samt ca. 200 meter til nærmeste bussholdeplass. Fine turmuligheter i nærområde og langs Drammenselva. Kort vei til marka med fantastiske tur og skimuligheter. Flere treningssenter og svømmehall få minutter fra boligen.
Boligen inneholder:
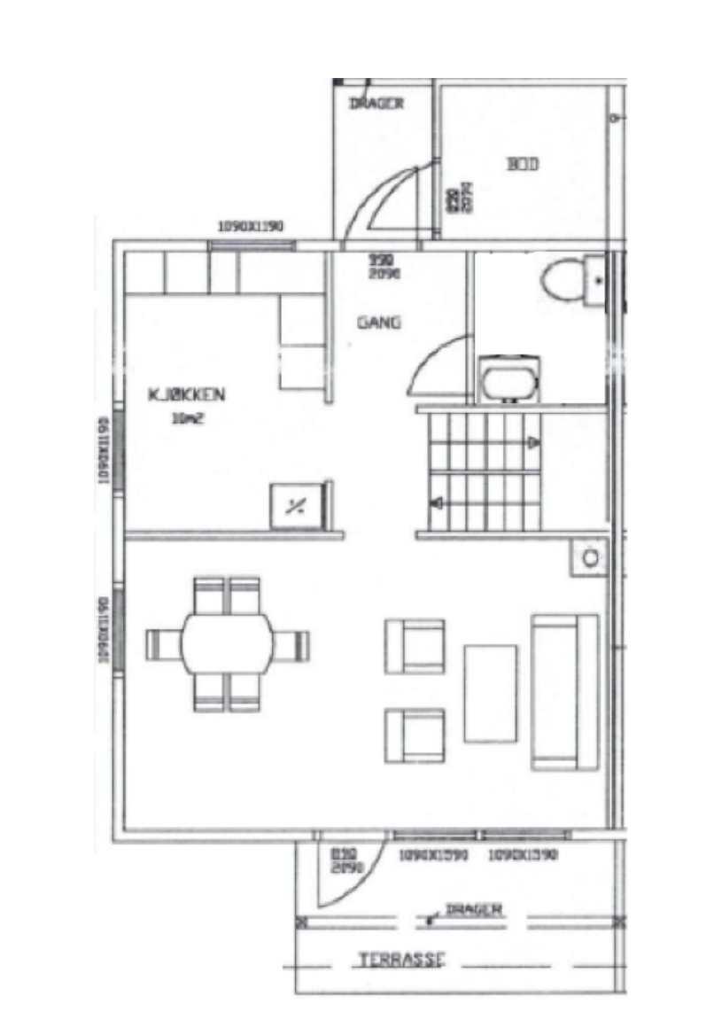
1. etasje: Entrè, fordelergang, kjøkken, vaskerom og stue.
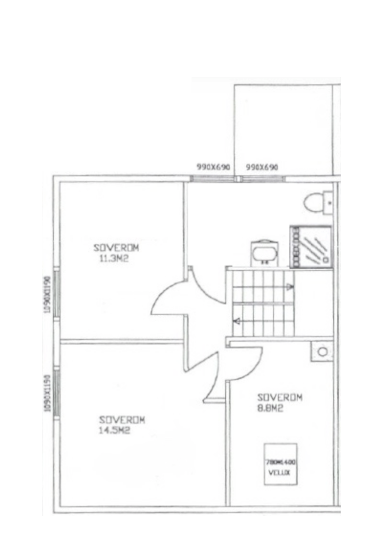
2. etasje: Fordelergang, bad og 3 soverom.
Utvendig sportsbord på 5 kvm.
Parkering på gårdsplass utenfor seksjon.
Eiendommen ligger i et ettertraktet, trivelig og populært boligområde på Loesmoen i Hokksund. Svært sentralt med alt du trenger i hverdagen av dagligvarebutikker, handel og servicetilbud kun få minutters gange unna. Det er 1 km til tog- og busstasjon med hyppige avganger retning Oslo, Drammen og Kongsberg, samt ca. 200 meter til nærmeste bussholdeplass. Fine turmuligheter i nærområde og langs Drammenselva. Kort vei til marka med fantastiske tur og skimuligheter. Flere treningssenter og svømmehall få minutter fra boligen.
Boligen inneholder:
1. etasje: Entrè, fordelergang, kjøkken, vaskerom og stue.
2. etasje: Fordelergang, bad og 3 soverom.
Utvendig sportsbord på 5 kvm.
Parkering på gårdsplass utenfor seksjon.
NB: Knappen for å vise hele beskrivelsen har kun en visuell effekt.
NB: Knappen for å vise hele beskrivelsen har kun en visuell effekt.
Salgsoppgaven beskriver vesentlig og lovpålagt informasjon om eiendommen
Se komplett salgsoppgaveNyttige lenker
Nærområdet
EiendomsMegler 1 Eiker
et foretak i SpareBank 1 Sør-Norge konsernet
Annonseinformasjon
| FINN-kode | 457304179 |
|---|---|
| Sist endret | 28. mars 2026 11:53 |
| Referanse | 2869260050 |
Annonsene kan være mangelfulle i forhold til lovpålagt opplysningsplikt. Før bindende avtale inngås oppfordres interessenter til å innhente komplett informasjon fra meglerforetaket, selger eller utleier.



































