Bildegalleri

Eiendomsmegler Norge v/ Johan R. Elieson har gleden av å ønske velkommen til visning av Nikkelveien 5!
Tinnheia
Romslig 3-roms hjørneleilighet med balkong og parkeringsplass i garasjekjeller. Heis i bygget.
Prisantydning2 790 000 kr
Nøkkelinfo
- Boligtype
- Leilighet
- Eieform
- Andel
- Soverom
- 2
- Internt bruksareal
- 85 m² (BRA-i)
- Bruksareal
- 92 m²
- Eksternt bruksareal
- 7 m² (BRA-e)
- Balkong/Terrasse
- 15 m² (TBA)
- Etasje
- 2
- Byggeår
- 2004
- Rom
- 3
- Tomteareal
- 2 882 m² (eiet)
Fasiliteter
Balkong/Terrasse
Barnevennlig
Garasje/P-plass
Heis
Rolig
Sentralt
Vaktmester-/vektertjeneste
Turterreng
Om boligen
Velkommen til visning av Nikkelveien 5.
Leiligheten ligger i 2. etasje med heis direkte fra garasjeplass og inngangsparti til leilighetens etasje.
Leiligheten ligger sentralt på Tinnheia med kort avstand til Tinnheia Torv. Her finnes service tilbud, stor ny REMA 1000 butikk med åpningstid fra 07-23 på ukedager og Fritidssenter. Gangavstand til Karl Johans Minne barneskole, barnehage, idrettshall, badevann og flott turterreng i umiddelbar nærhet. Gode bussforbindelser.
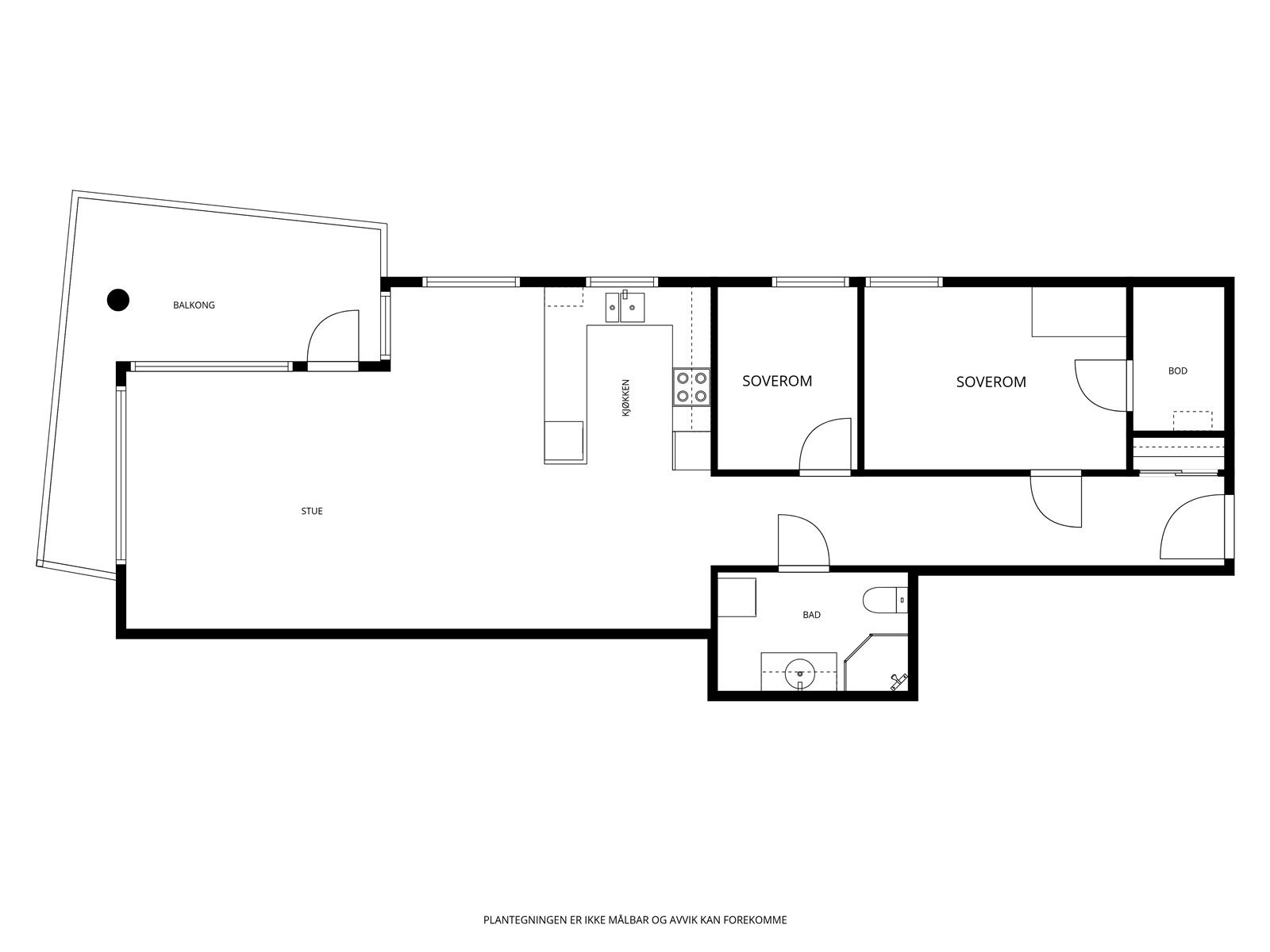
Leiligheten inneholder: Gang, bad, stue/ kjøkken, 2 soverom og bod.
Det er tilhørende bod og garasjeplass i kjeller.
Velkommen til visning!
Leiligheten ligger i 2. etasje med heis direkte fra garasjeplass og inngangsparti til leilighetens etasje.
Leiligheten ligger sentralt på Tinnheia med kort avstand til Tinnheia Torv. Her finnes service tilbud, stor ny REMA 1000 butikk med åpningstid fra 07-23 på ukedager og Fritidssenter. Gangavstand til Karl Johans Minne barneskole, barnehage, idrettshall, badevann og flott turterreng i umiddelbar nærhet. Gode bussforbindelser.
Leiligheten inneholder: Gang, bad, stue/ kjøkken, 2 soverom og bod.
Det er tilhørende bod og garasjeplass i kjeller.
Velkommen til visning!
NB: Knappen for å vise hele beskrivelsen har kun en visuell effekt.
NB: Knappen for å vise hele beskrivelsen har kun en visuell effekt.
Salgsoppgaven beskriver vesentlig og lovpålagt informasjon om eiendommen
Se komplett salgsoppgaveNyttige lenker
Nærområdet
Eiendomsmegler Norge Kristiansand
Best der du bor
Annonseinformasjon
| FINN-kode | 457276785 |
|---|---|
| Sist endret | 30. mars 2026 08:09 |
| Referanse | 50260026 |
Annonsene kan være mangelfulle i forhold til lovpålagt opplysningsplikt. Før bindende avtale inngås oppfordres interessenter til å innhente komplett informasjon fra meglerforetaket, selger eller utleier.




























