Bildegalleri

DNB Eiendom v/ Joachim Vågen tlf. 91712768 ønsker deg velkommen til Kornsilovegen 45B!
Hamar Vest
Romslig og gjennomgående 3-roms leilighet | Stor, innglasset balkong | 3. etg. | Heis | Garasje | Attraktiv beliggenhet
Prisantydning2 700 000 kr
Nøkkelinfo
- Boligtype
- Leilighet
- Eieform
- Andel
- Soverom
- 2
- Internt bruksareal
- 76 m² (BRA-i)
- Bruksareal
- 114 m²
- Eksternt bruksareal
- 24 m² (BRA-e)
- Innglasset balkong
- 14 m² (BRA-b)
- Etasje
- 3
- Byggeår
- 1973
- Energimerking
- Rom
- 3
- Tomteareal
- 43 216 m² (eiet)
Fasiliteter
Balkong/Terrasse
Barnevennlig
Garasje/P-plass
Heis
Offentlig vann/kloakk
Rolig
Sentralt
Turterreng
Visning
tirsdag, 07. april
17:00 – 18:00
Våre visninger har påmelding. Dette gjør vi for å kunne yte bedre service for våre kunder. Verdifullt for boligkjøper og for oss. Vi anbefaler at salgsoppgaven leses før visning, og ring oss gjerne på forhånd for spørsmål om boligen. Passer ikke angitt tidspunkt, ta kontakt så finner vi en løsning. Skulle det mot formodning ikke være påmeldte 4 timer før angitt visningstidspunkt vil ikke visning bli gjennomført.
VisningspåmeldingOm boligen
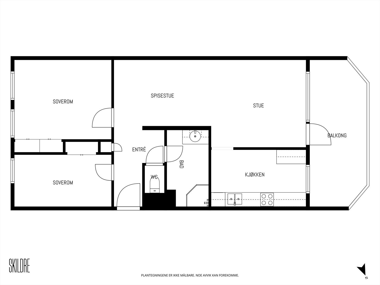
Velkommen til Kornsilovegen 45B - En romslig og gjennomgående 3-roms leilighet i et rolig og attraktivt område på Hamar vest. Her bor du med kort veg til skoler, barnehager, kjøpesenter, bussforbindelser samt fine tur- og rekreasjonsområder. Leiligheten har en god planløsning og inneholder entré, stue, kjøkken, to soverom, bad og eget toalettrom. Fra stuen er det utgang til en innglasset balkong med usjenert utsyn og gode solforhold fra ettermiddag til kveld. I tillegg disponerer leiligheten bod i kjeller og egen garasjeplass i felles anlegg.
Leiligheten har en rekke gode kvaliteter og vi ønsker å trekke frem:
Leiligheten har en rekke gode kvaliteter og vi ønsker å trekke frem:
- Innglasset balkong på ca. 14 kvm.
- Garasjeplass i felles garasjeanlegg
- Gjennomgående planløsning
- Kjellerbod på ca. 7 kvm
- Gode lysforhold
- Heis
NB: Knappen for å vise hele beskrivelsen har kun en visuell effekt.
NB: Knappen for å vise hele beskrivelsen har kun en visuell effekt.
Salgsoppgaven beskriver vesentlig og lovpålagt informasjon om eiendommen
Se komplett salgsoppgaveNyttige lenker
Nærområdet
DNB Eiendom AS
Verdifulle salg
Annonseinformasjon
| FINN-kode | 457268371 |
|---|---|
| Sist endret | 27. mars 2026 19:35 |
| Referanse | 517260046 |
Annonsene kan være mangelfulle i forhold til lovpålagt opplysningsplikt. Før bindende avtale inngås oppfordres interessenter til å innhente komplett informasjon fra meglerforetaket, selger eller utleier.



























