Bildegalleri

Eiendomsmegler Norge har gleden av å ønske velkommen til visning av Sjølystveien 113!
Kanalbyen -De tre søstre
NY LEKKER 104 M2 EIERLEILIGHET (HJØRNE) MED FIN UTSIKT OG STOR FLISLAGT TERRASSE-HEIS-*P-PLASS-LAVE OMKOSTNINGER!
Prisantydning7 490 000 kr
Nøkkelinfo
- Boligtype
- Leilighet
- Eieform
- Selveier
- Soverom
- 3
- Internt bruksareal
- 104 m² (BRA-i)
- Bruksareal
- 110 m²
- Eksternt bruksareal
- 6 m² (BRA-e)
- Balkong/Terrasse
- 14 m² (TBA)
- Etasje
- 6
- Byggeår
- 2025
- Energimerking
- Rom
- 4
- Tomteareal
- 1 690 m² (eiet)
Fasiliteter
Balkong/Terrasse
Barnevennlig
Heis
Kjæledyr tillatt
Parkett
Rolig
Sentralt
Utsikt
Vaktmester-/vektertjeneste
Bademulighet
Turterreng
Balansert ventilasjon
Om boligen
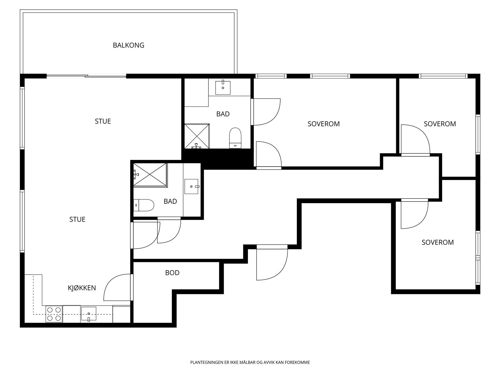
Lekker ny selveid hjørneleilighet med romslig flislagt balkong.
Det spesielle med leiligheten er gode materialvalg, god takhøyde i stue/kjøkken og store gode vindusflater som gjør leiligheten særdeles lys og luftig.
Heis fra oppgang (1. etasje) til leiligheten.
6. etasje:
Gang, stor og romslig stue/kjøkken, 2 flislagte bad, 3 soverom og innvendig bod.
Sportsbod i fellesarealer.
* Mulighet for kjøp av p-plass i fjellhallen i tillegg til kjøpesum. (kr. 550.000).
Det er i sameiet to fine felles stuer, hvor det ene er koblet sammen med en hyggelig uteplass i gårdsrommet. Ved kanalen er det en flott badeplass. Kort vei til fiskebrygga, Odderøya og Kvadraturen.
Lave kjøps omkostninger!
Vel møtt!
Det spesielle med leiligheten er gode materialvalg, god takhøyde i stue/kjøkken og store gode vindusflater som gjør leiligheten særdeles lys og luftig.
Heis fra oppgang (1. etasje) til leiligheten.
6. etasje:
Gang, stor og romslig stue/kjøkken, 2 flislagte bad, 3 soverom og innvendig bod.
Sportsbod i fellesarealer.
* Mulighet for kjøp av p-plass i fjellhallen i tillegg til kjøpesum. (kr. 550.000).
Det er i sameiet to fine felles stuer, hvor det ene er koblet sammen med en hyggelig uteplass i gårdsrommet. Ved kanalen er det en flott badeplass. Kort vei til fiskebrygga, Odderøya og Kvadraturen.
Lave kjøps omkostninger!
Vel møtt!
NB: Knappen for å vise hele beskrivelsen har kun en visuell effekt.
NB: Knappen for å vise hele beskrivelsen har kun en visuell effekt.
Salgsoppgaven beskriver vesentlig og lovpålagt informasjon om eiendommen
Se komplett salgsoppgaveNyttige lenker
Nærområdet
Eiendomsmegler Norge Kristiansand
Best der du bor
Annonseinformasjon
| FINN-kode | 457156059 |
|---|---|
| Sist endret | 30. mars 2026 07:56 |
| Referanse | 50260124 |
Annonsene kan være mangelfulle i forhold til lovpålagt opplysningsplikt. Før bindende avtale inngås oppfordres interessenter til å innhente komplett informasjon fra meglerforetaket, selger eller utleier.





















































