Bildegalleri

Velkommen til Svevegen 45 - En meget innholdsrik enebolig med stor dobbeltgarasje, 1 108 m² tomt og familievennlig og landlig beliggenhet.
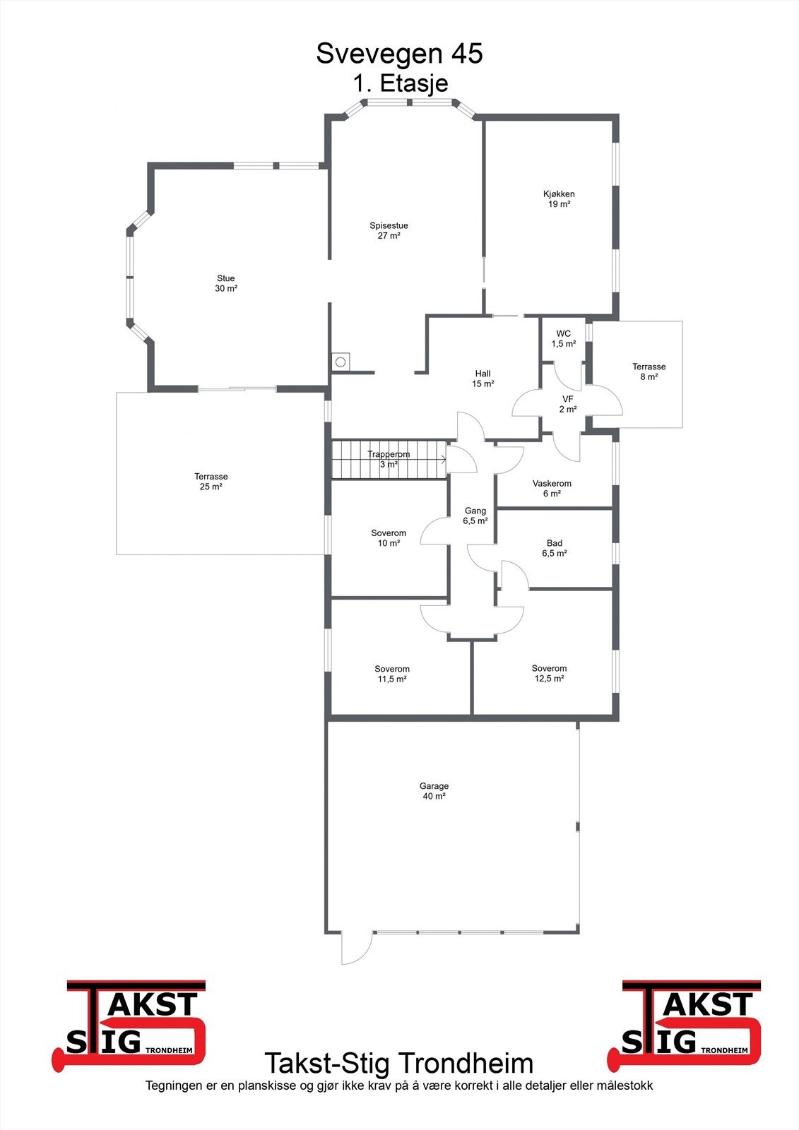
ENEBOLIG PÅ 305 m² BRA-i MED DOBBELTGARASJE OG 1 108 m² TOMT | 2 bad + vaskerom | Kjølerom | Familievennlig beliggenhet
Prisantydning4 900 000 kr
Nøkkelinfo
- Boligtype
- Enebolig
- Eieform
- Selveier
- Soverom
- 3
- Internt bruksareal
- 305 m² (BRA-i)
- Bruksareal
- 346 m²
- Eksternt bruksareal
- 41 m² (BRA-e)
- Balkong/Terrasse
- 33 m² (TBA)
- Byggeår
- 1988
- Energimerking
- Rom
- 7
- Tomteareal
- 1 108 m² (eiet)
Fasiliteter
Balkong/Terrasse
Barnevennlig
Garasje/P-plass
Hage
Offentlig vann/kloakk
Peis/Ildsted
Rolig
Utsikt
Turterreng
Visning
tirsdag, 07. april
17:00 – 18:00
Alle våre visninger har påmelding. Meld deg opp til ønsket visningstidspunkt via linken visningspåmelding , eller kontakt megler på telefon, SMS eller mail. Vi anbefaler at salgsoppgaven lastes ned digitalt, og oppfordrer alle til å lese komplett salgsoppgave før visning. Skulle det mot formodning ikke være påmeldte til angitt visningstidspunkt vil ikke visning bli gjennomført.
VisningspåmeldingOm boligen
Velkommen til Svevegen 45 - En meget innholdsrik enebolig på 305 m² BRA-i med stor dobbeltgarasje, tomt på 1 108 m² og landlig og familievennlig beliggenhet. Boligen har vært gjennstand for noe oppgraderinger i nyere tid med sjekk av drenering i 2019, nedsetting av kum og etablering av rør for spyling av drensrør, oppgradering og innredning av store deler av underetasjen i 2019, ny vvb i 2014 og varmpumpe i 2011.
Kvaliteter verdt å merke seg
Kvaliteter verdt å merke seg
- Elbil lading i garasje
- Kjølerom og vaskerom
- Dobbeltgarasje på 40 m²
- Solrik tomt på over ett mål
- Varmepumpe og vedfyring
- 60+ m² med innvendig bodareal
- Underetasje på 148 m² med mange muligheter
Velkommen til en hyggelig visning!
NB: Knappen for å vise hele beskrivelsen har kun en visuell effekt.
NB: Knappen for å vise hele beskrivelsen har kun en visuell effekt.
Salgsoppgaven beskriver vesentlig og lovpålagt informasjon om eiendommen
Se komplett salgsoppgaveNyttige lenker
Nærområdet
Heimdal Eiendomsmegling avd. Byåsen
Annonseinformasjon
| FINN-kode | 457132615 |
|---|---|
| Sist endret | 28. mars 2026 09:47 |
| Referanse | 14-25-0097 |
Annonsene kan være mangelfulle i forhold til lovpålagt opplysningsplikt. Før bindende avtale inngås oppfordres interessenter til å innhente komplett informasjon fra meglerforetaket, selger eller utleier.







































