Bildegalleri

Jan Gunnar Grunden v/ EIE Løren ønsker velkommen til Disenveien 39! Foto: Studio Sætre (Hanne Cecilie Sætre).
Disen
Lys og innbydende 3-roms endeleilighet - Solrik balkong på 8 kvm - Barnevennlig boområde - Fyring/vv inkl.
Prisantydning5 350 000 kr
Nøkkelinfo
- Boligtype
- Leilighet
- Eieform
- Andel
- Soverom
- 2
- Internt bruksareal
- 69 m² (BRA-i)
- Bruksareal
- 73 m²
- Eksternt bruksareal
- 4 m² (BRA-e)
- Balkong/Terrasse
- 8 m² (TBA)
- Etasje
- 1
- Byggeår
- 1960
- Energimerking
- Rom
- 3
- Tomteareal
- 30 262 m² (eiet)
Fasiliteter
Barnevennlig
Balkong/Terrasse
Garasje/P-plass
Kabel-TV
Offentlig vann/kloakk
Turterreng
Vaktmester-/vektertjeneste
Fellesvaskeri
Sentralt
Bredbåndstilknytning
Moderne
Rolig
Visning
mandag, 06. april
12:00 – 13:00
For å yte premium rådgivning, har alle våre visninger påmelding. Dette sikrer at megler har god oversikt og tid til å imøtekomme alle interessenter på aller beste måte. Dersom ingen interessenter er påmeldt, kan visningen bli avlyst.
tirsdag, 07. april
16:45 – 17:45
For å yte premium rådgivning, har alle våre visninger påmelding. Dette sikrer at megler har god oversikt og tid til å imøtekomme alle interessenter på aller beste måte. Dersom ingen interessenter er påmeldt, kan visningen bli avlyst.
Om boligen
Velkommen til Disenveien 39!
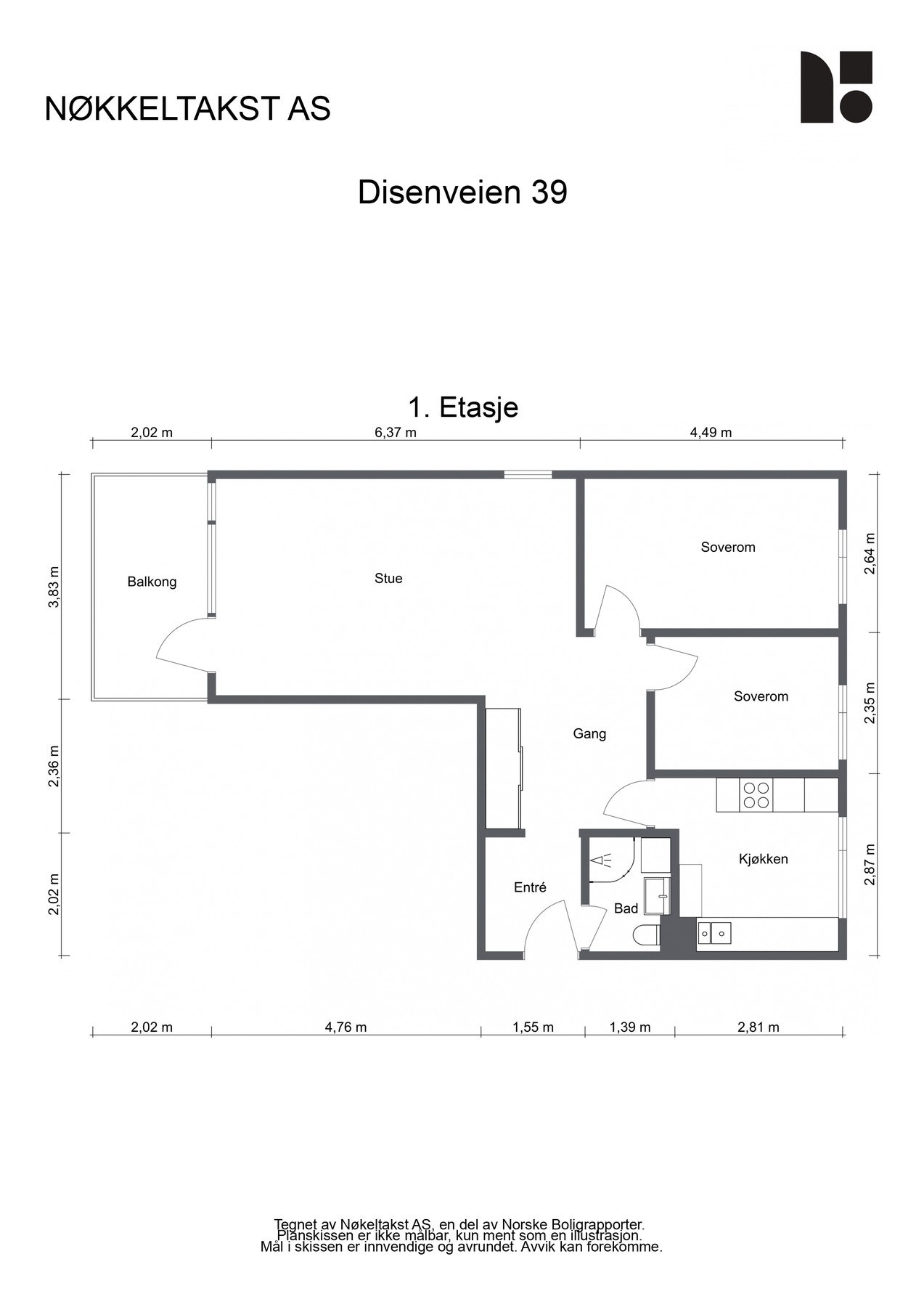
Dette er lys og innbydende 3-roms endeleilighet med fin beliggenhet i høy 1.etasje. Leiligheten har en fin og praktisk planløsning og består av entré, stue, kjøkken, to soverom og bad. Fra stuen er det utgang til en herlig, solrik balkong på ca. 8 kvm med flott og frodig utsyn over nabolaget!
Høydepunkter:
- Endeleilighet med mye naturlig dagslys og lite innsyn
- Usjenert, vestvendt balkong på 8 kvm med gode solforhold
- Pent kjøkken med mye skap- og benkeplass
- Moderne fargevalg og fine overflater
- Fyring og varmtvann inkludert i felleskostnader
- Kjellerbod på ca. 4 kvm
- Koselige "Kaffe og Brød" nabolagskafe rett ved
- Vinduer og balkongdør fra 2022
- Godt kollektivtilbud i nærområdet
- Sentral beliggenhet med gangavstand til Storo storsenter
- Flotte turmuligheter opp mot Grefsenkollen/Lillomara
- Gode parkeringsmuligheter
- Ingen forkjøpsrett og lave kjøpsomkostninger
Mangler du egenkapital? Boligen kan kjøpes med Finit Deleie.
Dette er lys og innbydende 3-roms endeleilighet med fin beliggenhet i høy 1.etasje. Leiligheten har en fin og praktisk planløsning og består av entré, stue, kjøkken, to soverom og bad. Fra stuen er det utgang til en herlig, solrik balkong på ca. 8 kvm med flott og frodig utsyn over nabolaget!
Høydepunkter:
- Endeleilighet med mye naturlig dagslys og lite innsyn
- Usjenert, vestvendt balkong på 8 kvm med gode solforhold
- Pent kjøkken med mye skap- og benkeplass
- Moderne fargevalg og fine overflater
- Fyring og varmtvann inkludert i felleskostnader
- Kjellerbod på ca. 4 kvm
- Koselige "Kaffe og Brød" nabolagskafe rett ved
- Vinduer og balkongdør fra 2022
- Godt kollektivtilbud i nærområdet
- Sentral beliggenhet med gangavstand til Storo storsenter
- Flotte turmuligheter opp mot Grefsenkollen/Lillomara
- Gode parkeringsmuligheter
- Ingen forkjøpsrett og lave kjøpsomkostninger
Mangler du egenkapital? Boligen kan kjøpes med Finit Deleie.
NB: Knappen for å vise hele beskrivelsen har kun en visuell effekt.
NB: Knappen for å vise hele beskrivelsen har kun en visuell effekt.
Salgsoppgaven beskriver vesentlig og lovpålagt informasjon om eiendommen
Se komplett salgsoppgaveNyttige lenker
Nærområdet
EIE eiendomsmegling Løren
Annonseinformasjon
| FINN-kode | 457126955 |
|---|---|
| Sist endret | 30. mars 2026 07:34 |
| Referanse | 71260062 |
Annonsene kan være mangelfulle i forhold til lovpålagt opplysningsplikt. Før bindende avtale inngås oppfordres interessenter til å innhente komplett informasjon fra meglerforetaket, selger eller utleier.

































