Bildegalleri

Velkommen til Jerikoveien 67 - en lys leilighet med hybel, beliggende i markanære omgivelser på Lindeberg!
Øvre Lindeberg
Møblert og lys 3-roms med hybel, balkong, garasjeplass. Umiddelbar nærhet til butikker, skole & barnehage!
Prisantydning4 990 000 kr
Nøkkelinfo
- Boligtype
- Leilighet
- Eieform
- Selveier
- Soverom
- 2
- Internt bruksareal
- 79 m² (BRA-i)
- Bruksareal
- 84 m²
- Eksternt bruksareal
- 5 m² (BRA-e)
- Balkong/Terrasse
- 8 m² (TBA)
- Etasje
- 3
- Byggeår
- 2004
- Tomteareal
- 2 019 m² (eiet)
Fasiliteter
Barnevennlig
Balkong/Terrasse
Garasje/P-plass
Heis
Offentlig vann/kloakk
Turterreng
Sentralt
Bredbåndstilknytning
Balansert ventilasjon
Visning
tirsdag, 07. april
17:00 – 18:00
Velkommen til visning!
Alle våre visninger har påmelding. På denne måten sikrer vi at megler har god oversikt og tid til å imøtekomme alle interessenter på beste måte. Dette er veldig verdifullt for boligkjøpere og for oss. Det er enkelt å melde seg på, og du kan like enkelt melde deg av. Kontakt også gjerne megler i forkant av visning dersom du har spørsmål.
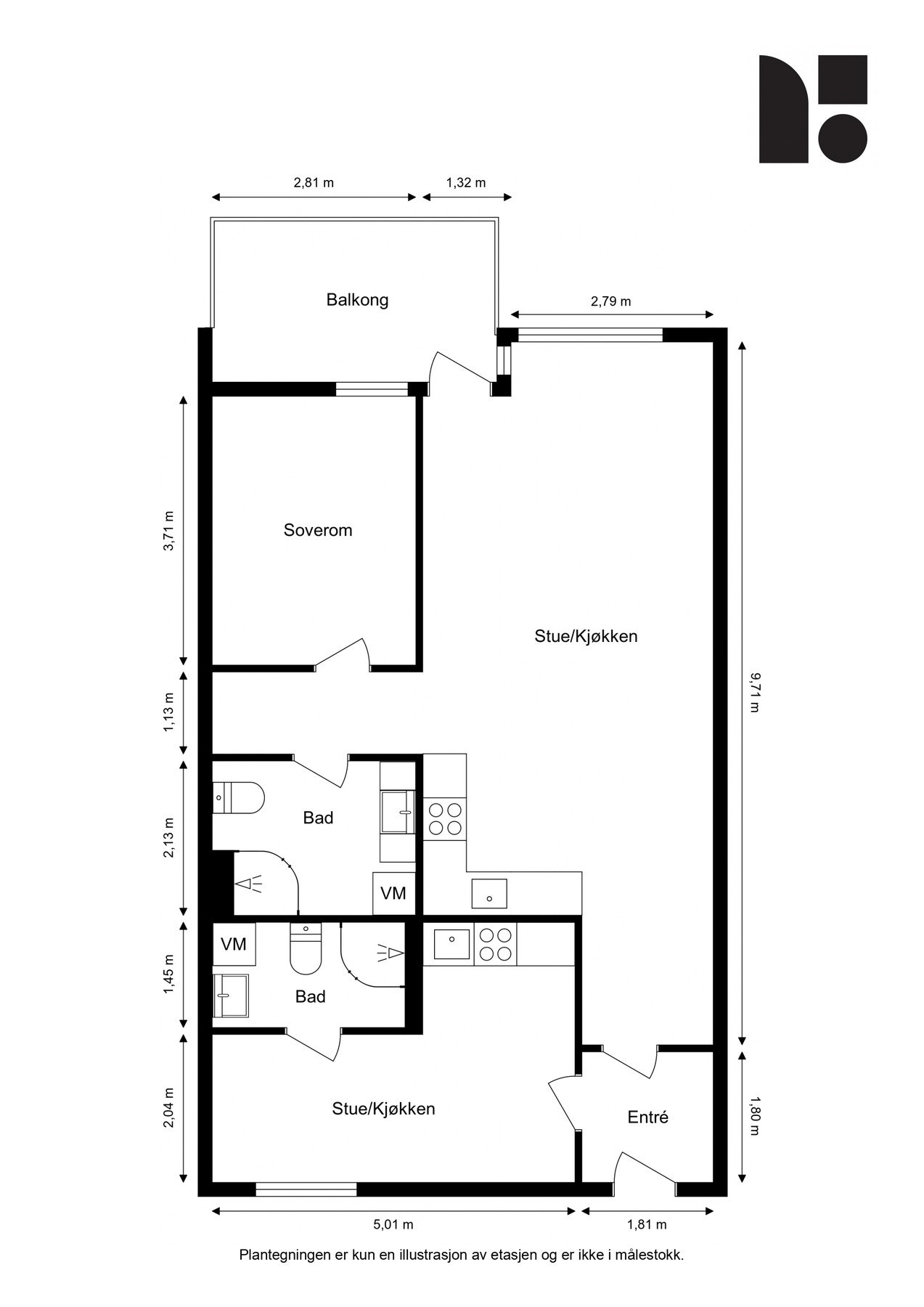
Om boligen
Velkommen til Jerikoveien 67 - en lys og romslig leilighet med hybel, attraktivt beliggende på Øvre Lindeberg. Boligen har en praktisk planløsning med gode romstørrelser og fleksible bruksmuligheter, og passer både for egen bruk og utleie. Her går det an å bruke begge enhetene som en, eller leie ut en del. Boligen har nærhet til kollektivtransport, daglige servicetilbud, skoler og flotte grøntområder. I tillegg disponeres bod i kjeller og garasjeplass. Boligen har to bad, hybeldel med egen kjøkkenløsning og gode oppbevaringssmuligheter.
K V A L I T E T E R
Selveierleilighet med hybel
To bad
Balkong på ca. 8 m²
Heis
Selges møblert!
Parkeringsplass i felles garasjeanlegg
Bod i kjeller
Mulighet for gode leieinntekter
Begge enhetene kan leies ut
Kort vei til kollektivtransport
Nærhet til marka
Umiddelbar nærhet til skole og barnehage.
K V A L I T E T E R
Selveierleilighet med hybel
To bad
Balkong på ca. 8 m²
Heis
Selges møblert!
Parkeringsplass i felles garasjeanlegg
Bod i kjeller
Mulighet for gode leieinntekter
Begge enhetene kan leies ut
Kort vei til kollektivtransport
Nærhet til marka
Umiddelbar nærhet til skole og barnehage.
NB: Knappen for å vise hele beskrivelsen har kun en visuell effekt.
NB: Knappen for å vise hele beskrivelsen har kun en visuell effekt.
Salgsoppgaven beskriver vesentlig og lovpålagt informasjon om eiendommen
Se komplett salgsoppgaveNyttige lenker
Nærområdet

PrivatMegleren Lillestrøm
Kun det beste på dine vegne
Annonseinformasjon
| FINN-kode | 457108068 |
|---|---|
| Sist endret | 27. mars 2026 09:55 |
| Referanse | 24260086 |
Annonsene kan være mangelfulle i forhold til lovpålagt opplysningsplikt. Før bindende avtale inngås oppfordres interessenter til å innhente komplett informasjon fra meglerforetaket, selger eller utleier.






























