Bildegalleri

EiendomsMegler 1 v/Line Evensen ønsker deg velkommen til Polarisvegen 5! Foto: Efkt - Dagmar Ånerud.
Enebolig med familievennlig planløsning | Syd/vestvendt terrasse på 75 m² | Dobbelgarasje fra 2013
Prisantydning6 190 000 kr
Nøkkelinfo
- Boligtype
- Enebolig
- Eieform
- Selveier
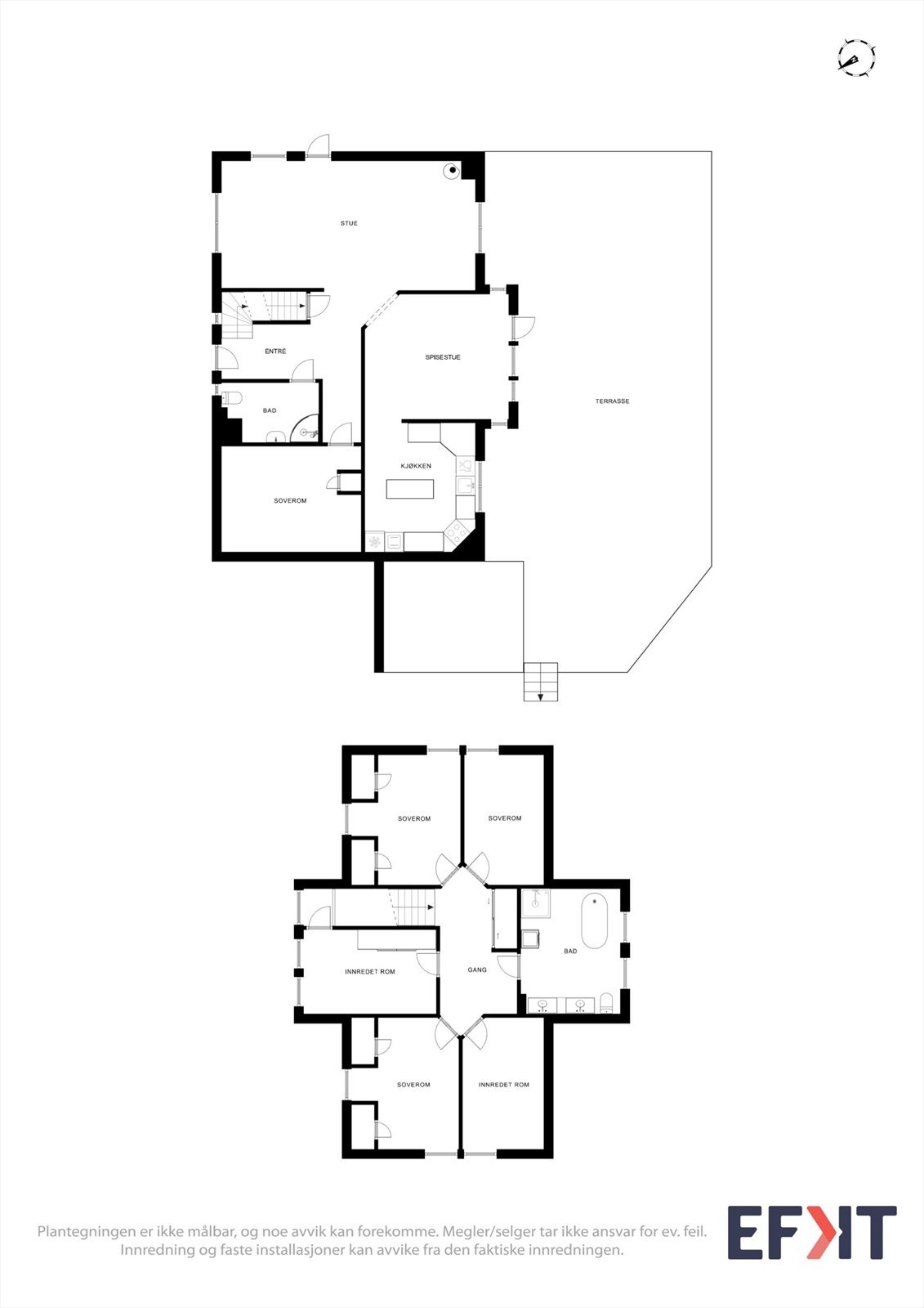
- Soverom
- 5
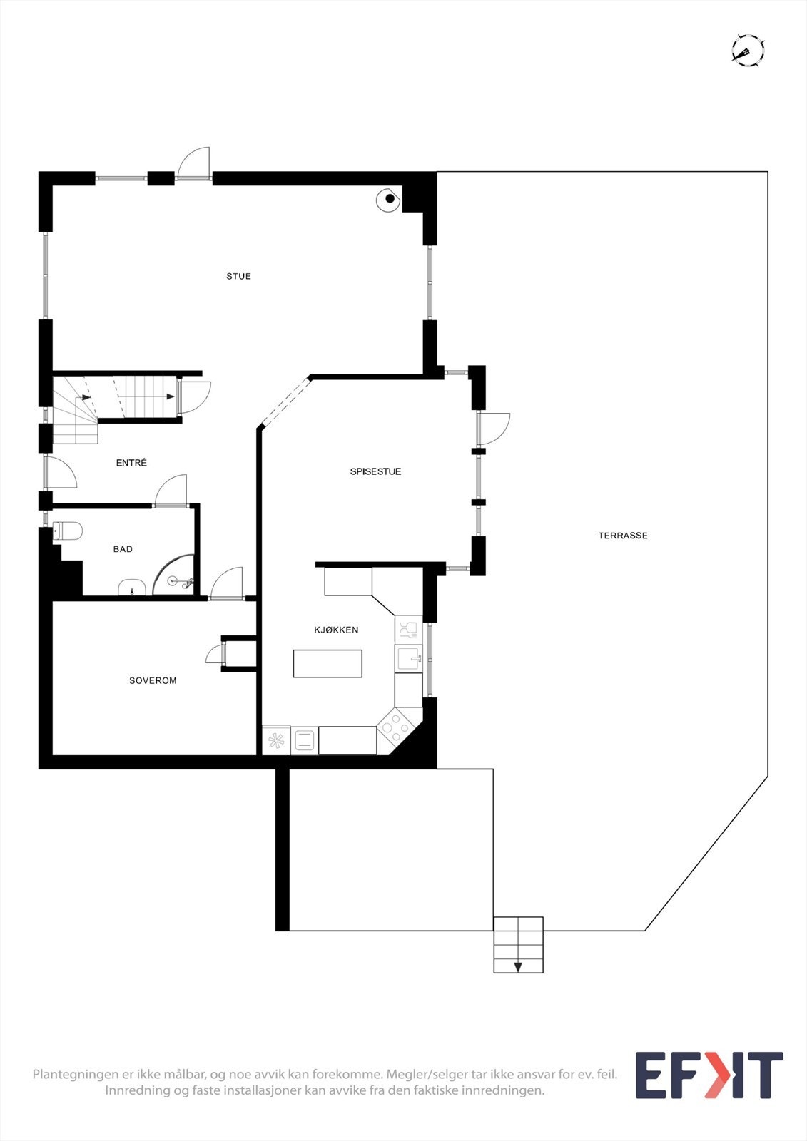
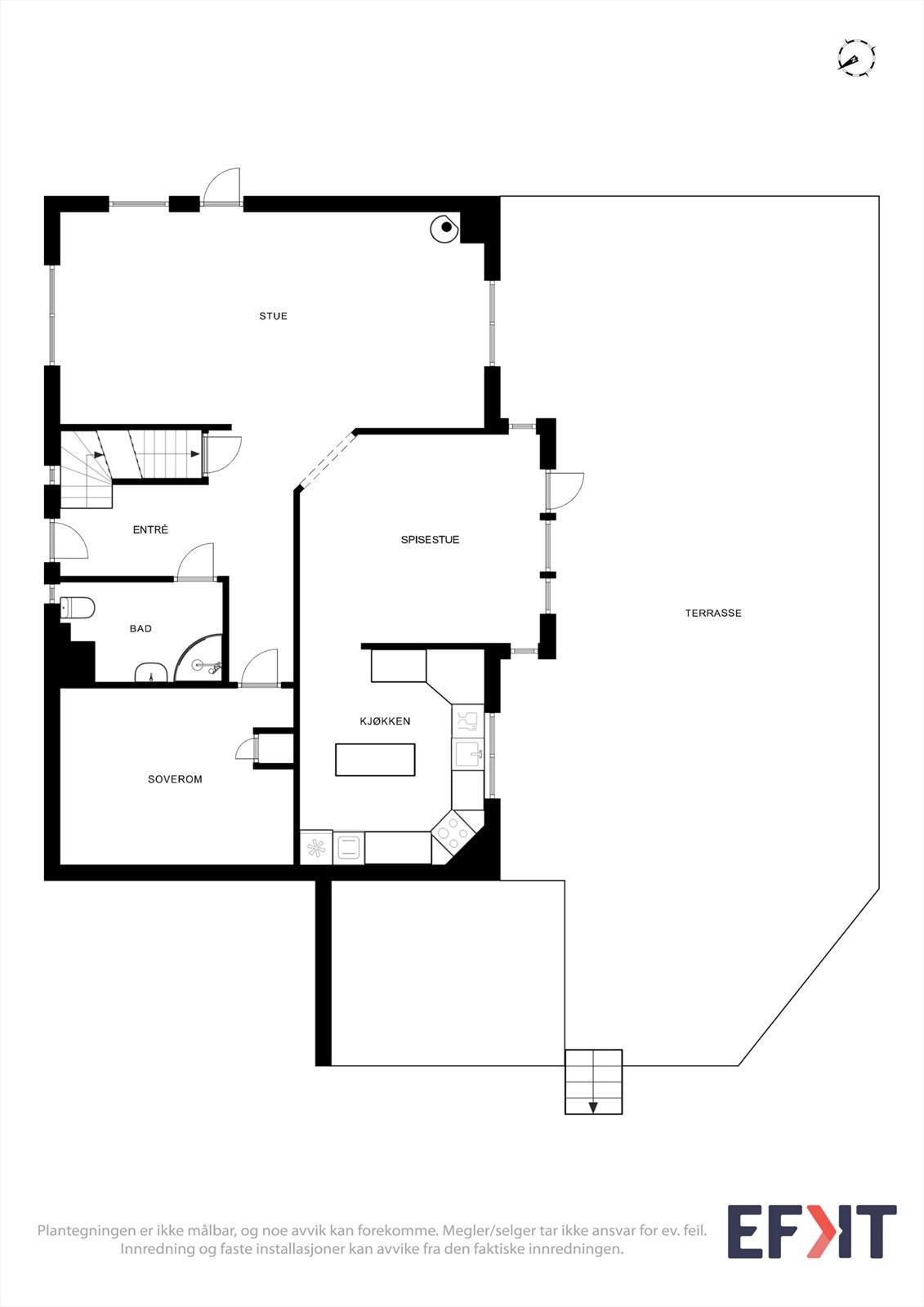
- Internt bruksareal
- 175 m² (BRA-i)
- Bruksareal
- 236 m²
- Eksternt bruksareal
- 61 m² (BRA-e)
- Balkong/Terrasse
- 85 m² (TBA)
- Etasje
- 2
- Byggeår
- 2000
- Energimerking
- Tomteareal
- 837 m² (eiet)
Fasiliteter
Balkong/Terrasse
Barnevennlig
Garasje/P-plass
Hage
Peis/Ildsted
Rolig
Turterreng
Om boligen
Velkommen til Polarisvegen 5! Dette er en innholdsrik og familievennlig enebolig med en stor, skjermet terrasse og dobbelgarasje.
Eiendommen ligger i et etablert boligområde på Neskollen med kort vei til skoler, barnehager og dagligvare. For den aktive familien er Neskollen Idrettspark og fine turmuligheter i skog og mark rett utenfor døren. Boligen er en enebolig oppført i 2000 med en funksjonell planløsning over to etasjer.
Kort fortalt:
- Sydvestvendt terrasse på 75 m² med elektrisk markise
- Fem soverom og to bad fordelt over to plan
- Kjøkken med integrerte hvitevarer og kjøkkenøy
- Gulvvarme i hele første etasje
- Vedovn og varmepumpe for effektiv oppvarming
- Dobbelgarasje fra 2013 med isolert bod
- Kort vei til Oslo Lufthavn, kun 23 minutter
Velkommen til visning!
Eiendommen ligger i et etablert boligområde på Neskollen med kort vei til skoler, barnehager og dagligvare. For den aktive familien er Neskollen Idrettspark og fine turmuligheter i skog og mark rett utenfor døren. Boligen er en enebolig oppført i 2000 med en funksjonell planløsning over to etasjer.
Kort fortalt:
- Sydvestvendt terrasse på 75 m² med elektrisk markise
- Fem soverom og to bad fordelt over to plan
- Kjøkken med integrerte hvitevarer og kjøkkenøy
- Gulvvarme i hele første etasje
- Vedovn og varmepumpe for effektiv oppvarming
- Dobbelgarasje fra 2013 med isolert bod
- Kort vei til Oslo Lufthavn, kun 23 minutter
Velkommen til visning!
NB: Knappen for å vise hele beskrivelsen har kun en visuell effekt.
NB: Knappen for å vise hele beskrivelsen har kun en visuell effekt.
Salgsoppgaven beskriver vesentlig og lovpålagt informasjon om eiendommen
Se komplett salgsoppgaveNyttige lenker
Nærområdet
EiendomsMegler 1 Årnes
Vi loser deg trygt gjennom hele boligsalget
Annonseinformasjon
| FINN-kode | 457107628 |
|---|---|
| Sist endret | 27. mars 2026 16:06 |
| Referanse | 6048260110 |
Annonsene kan være mangelfulle i forhold til lovpålagt opplysningsplikt. Før bindende avtale inngås oppfordres interessenter til å innhente komplett informasjon fra meglerforetaket, selger eller utleier.


































