Bildegalleri

Velkommen til Brøsetflata 8! En innholdsrik enebolig med en svært skjermet og privat beliggenhet! Tomten vender ut mot flotte og frodige grøntarealer. Foto: Jens Martin Nervik (Krokstad&Nervik).
Brøset
NYHET! SKJERMET OG PRIVAT ENEBOLIG - INNERST I BLINDVEI. Grenser mot grøntareal. 2 bad, stort hobbyrom, 3 sov. Garasje.
Prisantydning6 990 000 kr
Nøkkelinfo
- Boligtype
- Enebolig
- Eieform
- Selveier
- Soverom
- 3
- Internt bruksareal
- 165 m² (BRA-i)
- Bruksareal
- 191 m²
- Eksternt bruksareal
- 26 m² (BRA-e)
- Balkong/Terrasse
- 52 m² (TBA)
- Byggeår
- 1986
- Energimerking
- Rom
- 5
- Tomteareal
- 1 156 m² (eiet)
Fasiliteter
Barnevennlig
Balkong/Terrasse
Garasje/P-plass
Kabel-TV
Offentlig vann/kloakk
Peis/Ildsted
Turterreng
Sentralt
Bredbåndstilknytning
Rolig
Visning
mandag, 06. april
17:00 – 17:45
Våre visninger har påmelding. Dette gjør vi for å kunne yte bedre service for våre kunder. Verdifullt for boligkjøper og for oss. Vi anbefaler at salgsoppgaven lastes ned digitalt før visning, og ring oss gjerne på forhånd for spørsmål om boligen. Passer ikke angitt tidspunkt, ta kontakt så finner vi en løsning. Skulle det mot formodning ikke være påmeldte til angitt visningstidspunkt vil ikke visning bli gjennomført.
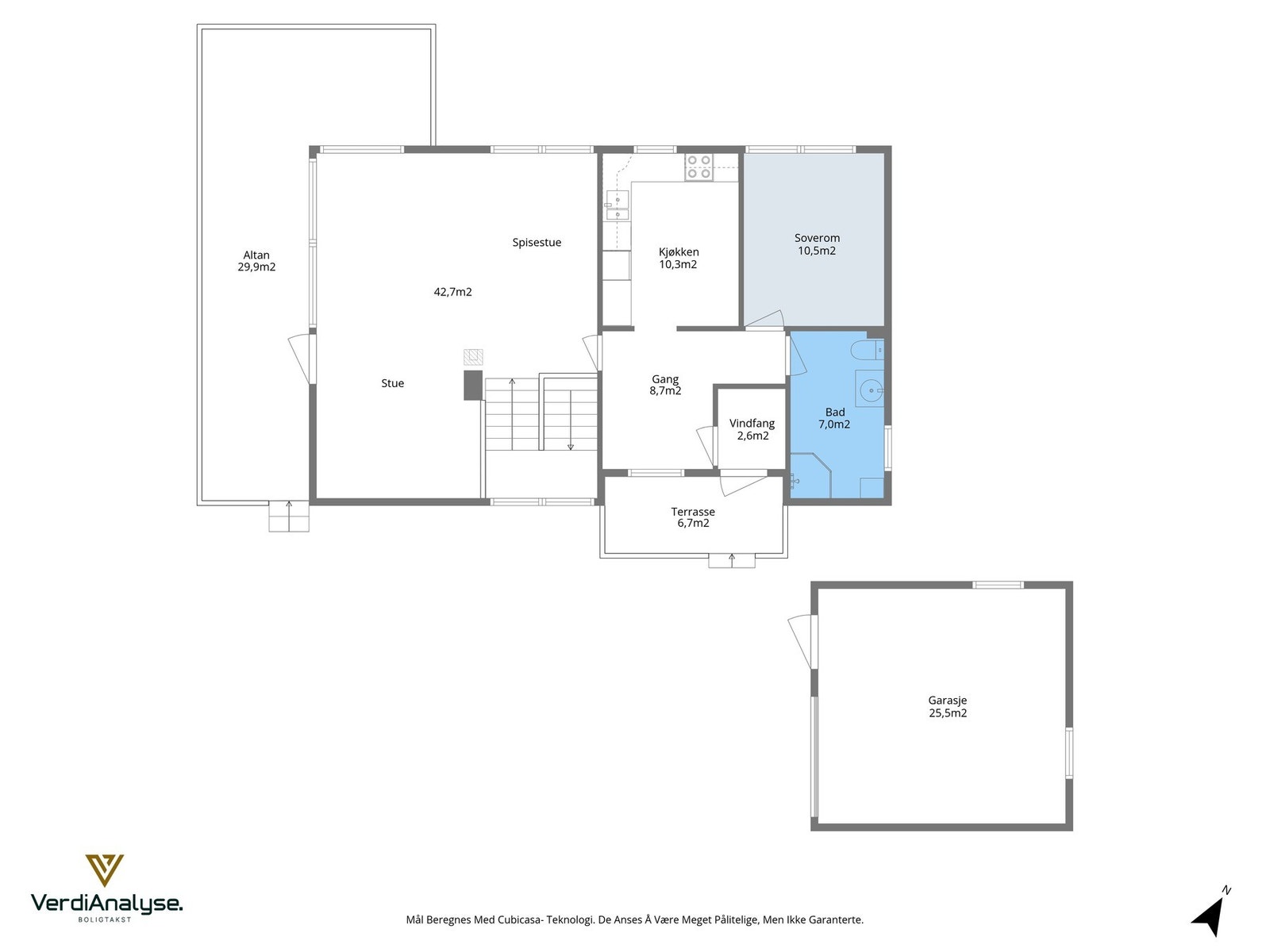
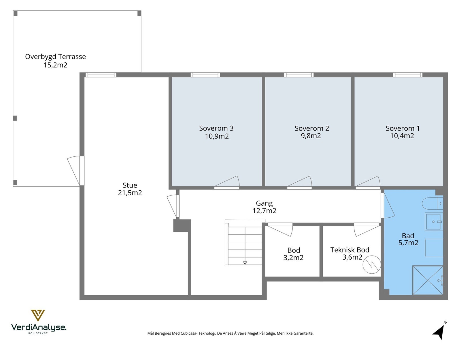
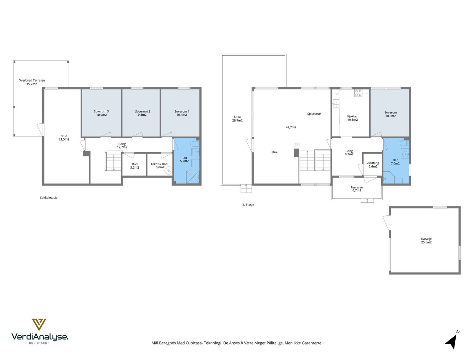
Om boligen
Velkommen til Brøsetflata 8!
En flott enebolig med svært gode familiekvaliteter. Eiendommen ligger innerst i en blindvei, og ligger slik sett svært privat og fredelig til. I tillegg grenser eiendommen mot grønt-/friareal, og har en hyggelig tursti som går forbi. Denne tar deg til Bromstad, Valentinlyst og videre til barneskole og ungddomsskole (Eberg og Blussuvold).
Av andre kvaliteter kan bl.a. følgende nevnes:
- En stor og luftig stue. Her har man svært god takhøyde og en herlig romfølelse.
- Kjøkkenet ligger praktisk plassert vegg-i-vegg med stua/spisestua
- Stort hobbyrom i underetasjen som i dag er benyttet som kjellerstue. Egen utgang til hagen fra dette rommet.
- Boligen har to bad - ett i hver etasje. Det ene er et kombinert bad/vaskerom.
- 3 soverom, men et fjerde rom er innredet som soverom (ikke omsøkt, godkjent som en bod, men i 1. etg. med vindu ut mot hagen).
- Garasje m/bod
Alt i alt en velholdt familiebolig, med et godt utgangspunkt for en familie.
En flott enebolig med svært gode familiekvaliteter. Eiendommen ligger innerst i en blindvei, og ligger slik sett svært privat og fredelig til. I tillegg grenser eiendommen mot grønt-/friareal, og har en hyggelig tursti som går forbi. Denne tar deg til Bromstad, Valentinlyst og videre til barneskole og ungddomsskole (Eberg og Blussuvold).
Av andre kvaliteter kan bl.a. følgende nevnes:
- En stor og luftig stue. Her har man svært god takhøyde og en herlig romfølelse.
- Kjøkkenet ligger praktisk plassert vegg-i-vegg med stua/spisestua
- Stort hobbyrom i underetasjen som i dag er benyttet som kjellerstue. Egen utgang til hagen fra dette rommet.
- Boligen har to bad - ett i hver etasje. Det ene er et kombinert bad/vaskerom.
- 3 soverom, men et fjerde rom er innredet som soverom (ikke omsøkt, godkjent som en bod, men i 1. etg. med vindu ut mot hagen).
- Garasje m/bod
Alt i alt en velholdt familiebolig, med et godt utgangspunkt for en familie.
NB: Knappen for å vise hele beskrivelsen har kun en visuell effekt.
NB: Knappen for å vise hele beskrivelsen har kun en visuell effekt.
Salgsoppgaven beskriver vesentlig og lovpålagt informasjon om eiendommen
Se komplett salgsoppgaveNyttige lenker
Nærområdet
EiendomsMegler 1 Valentinlyst
Vi loser deg trygt gjennom hele boligsalget
Annonseinformasjon
| FINN-kode | 457069314 |
|---|---|
| Sist endret | 27. mars 2026 10:06 |
| Referanse | 34250356 |
Annonsene kan være mangelfulle i forhold til lovpålagt opplysningsplikt. Før bindende avtale inngås oppfordres interessenter til å innhente komplett informasjon fra meglerforetaket, selger eller utleier.












































