Bildegalleri

EIE eiendomsmegling ved Amrinder Singh har gleden av å presentere Waldemar Aunes veg 14 C. Foto: EFKT / Aleksander Jacobsen.
Hallset / Byåsen
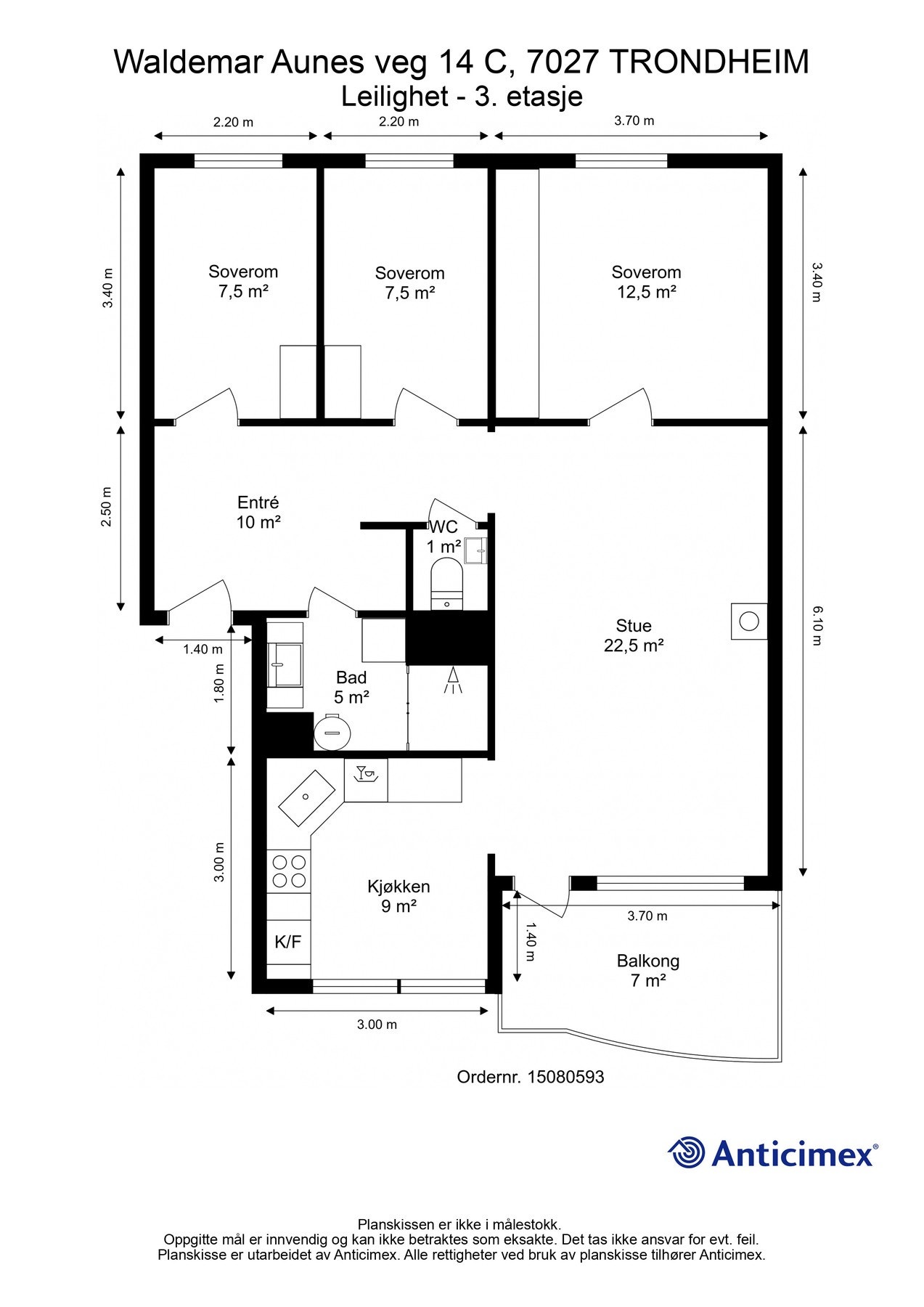
Strøken og gjennomført 4-roms leilighet. Oppusset 2024. Bad & kjøkken TG1. Solrik balkong og flott utsikt. Parkering*.
Prisantydning3 650 000 kr
Nøkkelinfo
- Boligtype
- Leilighet
- Eieform
- Andel
- Soverom
- 3
- Internt bruksareal
- 80 m² (BRA-i)
- Bruksareal
- 94 m²
- Eksternt bruksareal
- 14 m² (BRA-e)
- Balkong/Terrasse
- 7 m² (TBA)
- Etasje
- 3
- Byggeår
- 1967
- Energimerking
- Rom
- 4
- Tomt
- Eiet
Fasiliteter
Barnevennlig
Balkong/Terrasse
Kabel-TV
Fiskemulighet
Offentlig vann/kloakk
Turterreng
Utsikt
Vaktmester-/vektertjeneste
Sentralt
Bredbåndstilknytning
Moderne
Rolig
Om boligen
EIE eiendomsmegling v/ Amrinder Singh har gleden av å presentere Waldemar Aunes veg 14C - en gjennomgående oppusset 4-roms leilighet fra 2024 med attraktiv beliggenhet. Badet er fra 2013.
Leiligheten ligger fint til nederst i feltet, i rolige og skjermede omgivelser med lite trafikk. Her får du flott utsikt, gode solforhold og minimalt med innsyn. Den lune balkongen er godt skjermet for vind og gir en hyggelig uteplass. Samtidig er det kort vei til skoler, barnehager, kollektivtransport og daglige fasiliteter, kombinert med en praktisk og velfungerende planløsning.
Verdt å merke seg:
- Flott kjøkken fra 2024 (TG1)
- Delikat, flislagt bad på ca. 5 m² fra 2013 (TG1)
- Betydelig oppgradert i 2024
- Gjennomført rørfornying i 2024
- Tre boder
- Attraktiv beliggenhet i enden av blindvei - usjenert og uten innsyn
- Gangavstand til daglige fasiliteter og kollektivtransport
- Nærhet til Bymarka
- Felleskostnader inkluderer bl.a. kommunale avgifter og TV/internett
Velkommen til visning!
Leiligheten ligger fint til nederst i feltet, i rolige og skjermede omgivelser med lite trafikk. Her får du flott utsikt, gode solforhold og minimalt med innsyn. Den lune balkongen er godt skjermet for vind og gir en hyggelig uteplass. Samtidig er det kort vei til skoler, barnehager, kollektivtransport og daglige fasiliteter, kombinert med en praktisk og velfungerende planløsning.
Verdt å merke seg:
- Flott kjøkken fra 2024 (TG1)
- Delikat, flislagt bad på ca. 5 m² fra 2013 (TG1)
- Betydelig oppgradert i 2024
- Gjennomført rørfornying i 2024
- Tre boder
- Attraktiv beliggenhet i enden av blindvei - usjenert og uten innsyn
- Gangavstand til daglige fasiliteter og kollektivtransport
- Nærhet til Bymarka
- Felleskostnader inkluderer bl.a. kommunale avgifter og TV/internett
Velkommen til visning!
NB: Knappen for å vise hele beskrivelsen har kun en visuell effekt.
NB: Knappen for å vise hele beskrivelsen har kun en visuell effekt.
Salgsoppgaven beskriver vesentlig og lovpålagt informasjon om eiendommen
Se komplett salgsoppgaveNyttige lenker
Nærområdet
EIE eiendomsmegling Heimdal
Annonseinformasjon
| FINN-kode | 456999438 |
|---|---|
| Sist endret | 24. mars 2026 15:57 |
| Referanse | 97260068 |
Annonsene kan være mangelfulle i forhold til lovpålagt opplysningsplikt. Før bindende avtale inngås oppfordres interessenter til å innhente komplett informasjon fra meglerforetaket, selger eller utleier.





























