Bildegalleri

Aktiv Eiendomsmegling v/ Roger Glesnes har gleden av å presentere Bakkavegen 57! En eventyrlig fritidsbolig med praktfull beliggenhet i strandsonen ved Nærøyfjorden.
Bakka
Gudvangen | Eventyrlig fritidsbolig i svært unike omgivelser!
Prisantydning8 900 000 kr
- Omkostninger
- 239 542 kr
- Totalpris
- 9 139 542 kr
Nøkkelinfo
- Beliggenhet
- Ved sjøen
- Boligtype
- Hytte
- Eieform
- Selveier
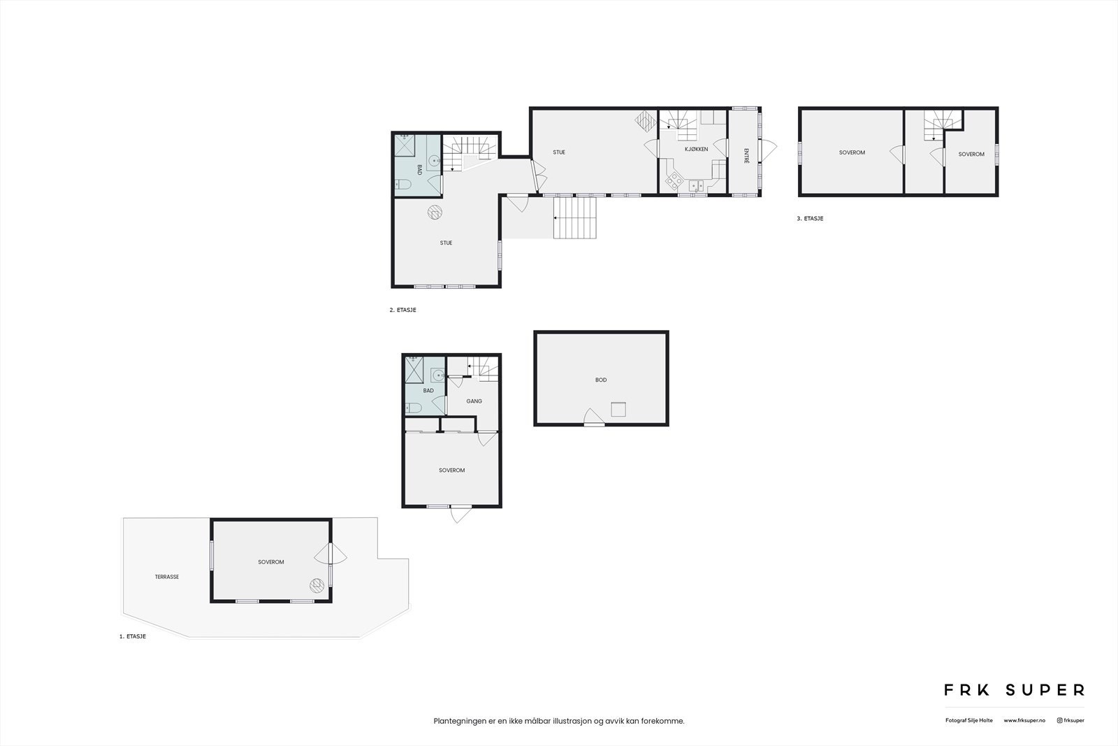
- Internt bruksareal
- 68 m² (BRA-i)
- Bruksareal
- 110 m²
- Eksternt bruksareal
- 42 m² (BRA-e)
- Balkong/Terrasse
- 29 m² (TBA)
- Tomteareal
- 1 099 m² (eiet)
- Soverom
- 4
Fasiliteter
Innlagt vann
Balkong/Terrasse
Barnevennlig
Bilvei frem
Garasje/P-plass
Hage
Peis/Ildsted
Rolig
Utsikt
Fiskemulighet
Innlagt strøm
Strandlinje
Turterreng
Visning
Kontakt megler for å avtale visning
Husk å lese komplett salgsoppgave før visning. Bestill komplett, utskriftsvennlig salgsoppgave.
VisningspåmeldingOm boligen
Aktiv Eiendomsmegling v/ Roger Glesnes presenterer en helt unik eiendom med strandlinje ved UNESCO-listede Nærøyfjorden en mulighet som ytterst sjelden byr seg. Eiendommen ligger usjenert i et av Europas mest ikoniske og vernede fjordlandskap.
Kombinasjonen av den verdenskjente beliggenheten, privatliv og direkte tilgang til fjorden gjør dette til et fristed i internasjonal toppklasse. På eiendommen står to hus, anneks og utestue. Boligen er vinterisolert med stor terrasse mot fjorden og er tilrettelagt for helårsbruk.
Dette er en svært sjelden eiendom.
- Eventyrlig landsted i Nærøyfjorden
- Usjenert beliggenhet
- Egen strandlinje og vid utsikt
- To hus, et anneks, terrasser, utestue
- Biloppstillingsplasser
- Privat båtopptrekk
- Helårsstandard
Velkommen til visning - husk påmelding
Kombinasjonen av den verdenskjente beliggenheten, privatliv og direkte tilgang til fjorden gjør dette til et fristed i internasjonal toppklasse. På eiendommen står to hus, anneks og utestue. Boligen er vinterisolert med stor terrasse mot fjorden og er tilrettelagt for helårsbruk.
Dette er en svært sjelden eiendom.
- Eventyrlig landsted i Nærøyfjorden
- Usjenert beliggenhet
- Egen strandlinje og vid utsikt
- To hus, et anneks, terrasser, utestue
- Biloppstillingsplasser
- Privat båtopptrekk
- Helårsstandard
Velkommen til visning - husk påmelding
NB: Knappen for å vise hele beskrivelsen har kun en visuell effekt.
NB: Knappen for å vise hele beskrivelsen har kun en visuell effekt.
Salgsoppgaven beskriver vesentlig og lovpålagt informasjon om eiendommen
Se komplett salgsoppgaveNærområdet
Aktiv Bergen Sentrum
Annonseinformasjon
| FINN-kode | 456983096 |
|---|---|
| Sist endret | 25. mars 2026 14:24 |
| Referanse | 1503230140 |
Annonsene kan være mangelfulle i forhold til lovpålagt opplysningsplikt. Før bindende avtale inngås oppfordres interessenter til å innhente komplett informasjon fra meglerforetaket, selger eller utleier.







































