Bildegalleri

Lars Håkon Jørgensen (473 40 616) v/ DNB Eiendom ønsker deg velkommen til Haugetangveien 27!
Gressvik
Enebolig med oppussingsbehov og stort potensiale | Nærhet til båthavna | Barnevennlig boligområde med lite trafikk!
Prisantydning2 300 000 kr
Nøkkelinfo
- Boligtype
- Enebolig
- Eieform
- Eier (Selveier)
- Soverom
- 1
- Internt bruksareal
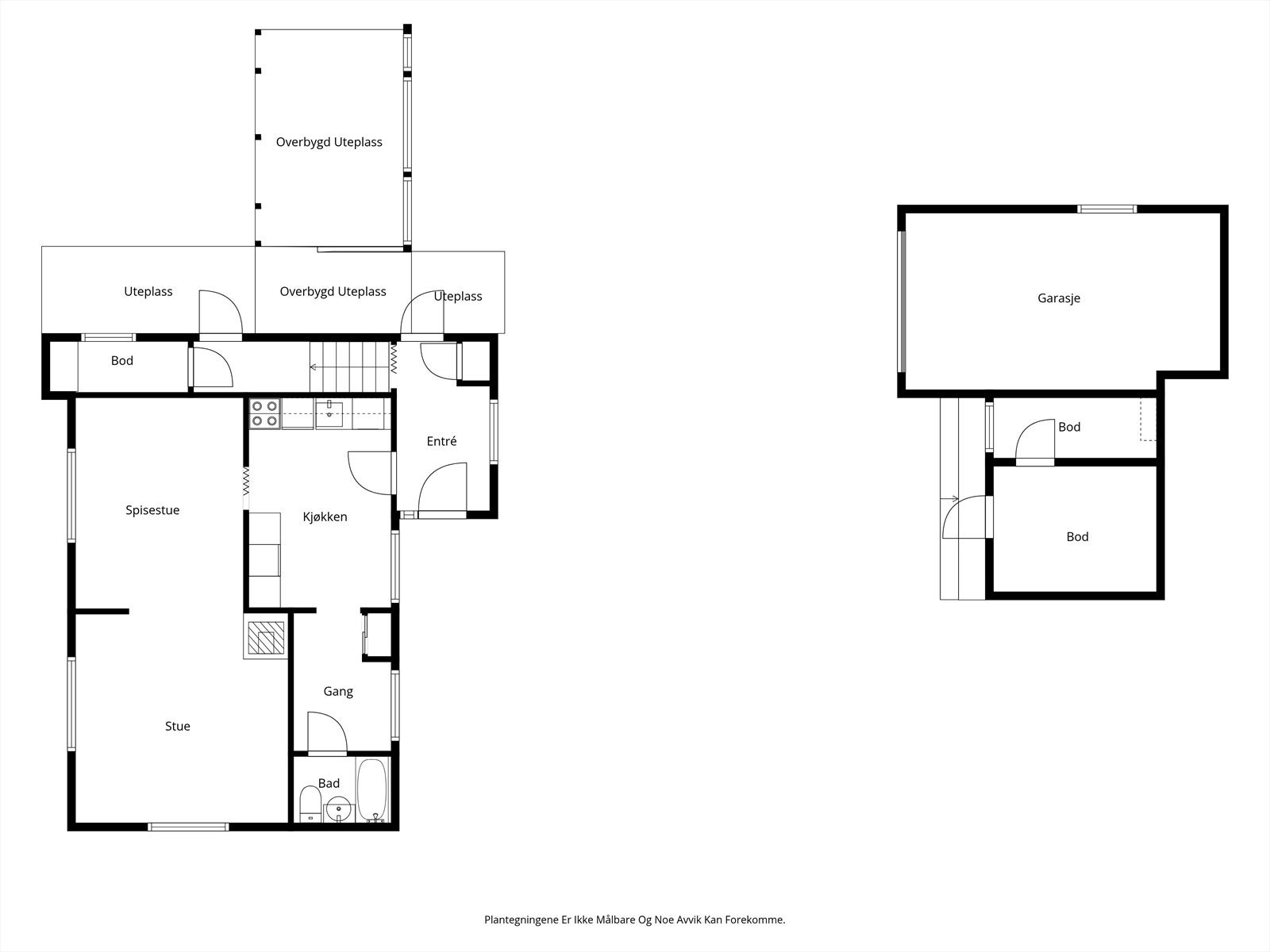
- 83 m² (BRA-i)
- Bruksareal
- 116 m²
- Eksternt bruksareal
- 33 m² (BRA-e)
- Balkong/Terrasse
- 3 m² (TBA)
- Etasje
- 2
- Byggeår
- 1880
- Energimerking
- Rom
- 3
- Tomteareal
- 564 m² (eiet)
Fasiliteter
Balkong/Terrasse
Barnevennlig
Garasje/P-plass
Hage
Kjæledyr tillatt
Parkett
Peis/Ildsted
Rolig
Turterreng
Visning
mandag, 30. mars
17:00 – 17:45
Velkommen til visning! Meld deg på ved å trykke "visningspåmelding" i våre boligannonser. Ta gjerne kontakt med megler i forkant av visningen om du har spørsmål.
VisningspåmeldingOm boligen
Lars Håkon Jørgensen (473 40 616) v/ DNB Eiendom ønsker deg velkommen til Haugetangveien 27!
Dette er en enebolig på Gressvik med et stort potensiale. Eneboligen har en attraktiv beliggenhet med kort avstand til en rekke fasiliteter - Båthavna, Gressvikmarka, dagligvarebutikker, skoler, bakeriet og mer.
Eneboligen har en rekke kvaliteter vi ønsker å trekke frem:
Dette er en enebolig på Gressvik med et stort potensiale. Eneboligen har en attraktiv beliggenhet med kort avstand til en rekke fasiliteter - Båthavna, Gressvikmarka, dagligvarebutikker, skoler, bakeriet og mer.
Eneboligen har en rekke kvaliteter vi ønsker å trekke frem:
- Tiltalende tomt på over 500 m²
- Stor gårdsplass med belegningsstein
- Frittstående garasje på ca. 17 m²
- Bod med god lagringsplass på ca. 12 m²
- Vestvendt terrasse i 2. etasje med gode solforhold dagen lang
- Innbydende oppussingsprosjekt som gir deg muligheten til å forme ditt eget hjem
Velkommen til en hyggelig visning!
NB: Knappen for å vise hele beskrivelsen har kun en visuell effekt.
NB: Knappen for å vise hele beskrivelsen har kun en visuell effekt.
Salgsoppgaven beskriver vesentlig og lovpålagt informasjon om eiendommen
Se komplett salgsoppgaveNyttige lenker
Nærområdet
DNB Eiendom AS
Verdifulle salg
Annonseinformasjon
| FINN-kode | 456949727 |
|---|---|
| Sist endret | 23. mars 2026 09:25 |
| Referanse | 203260131 |
Annonsene kan være mangelfulle i forhold til lovpålagt opplysningsplikt. Før bindende avtale inngås oppfordres interessenter til å innhente komplett informasjon fra meglerforetaket, selger eller utleier.


































