Bildegalleri

- Et moderne og familievennlig rekkehus med god intern beliggenhet. Boligen har flere uteplasser som forlenger oppholdsarealet -
Lørenskog / Finstadjordet;
Familievennlig og moderne rekkehus fra 2020 *3 soverom *2 stuer *Solrike uteplasser *Egen garasjeplass
Prisantydning2 990 000 kr
Nøkkelinfo
- Boligtype
- Rekkehus
- Eieform
- Andel
- Soverom
- 3
- Internt bruksareal
- 118 m² (BRA-i)
- Bruksareal
- 123 m²
- Eksternt bruksareal
- 5 m² (BRA-e)
- Balkong/Terrasse
- 36 m² (TBA)
- Byggeår
- 2020
- Energimerking
- Rom
- 6
- Tomteareal
- 4 490 m² (eiet)
Fasiliteter
Takterrasse
Balkong/Terrasse
Barnevennlig
Bredbåndstilknytning
Garasje/P-plass
Hage
Kjæledyr tillatt
Ingen gjenboere
Kabel-TV
Offentlig vann/kloakk
Parkett
Rolig
Sentralt
Utsikt
Turterreng
Lademulighet
Balansert ventilasjon
Om boligen
Velkommen til Kåre B. Werners gate 47!
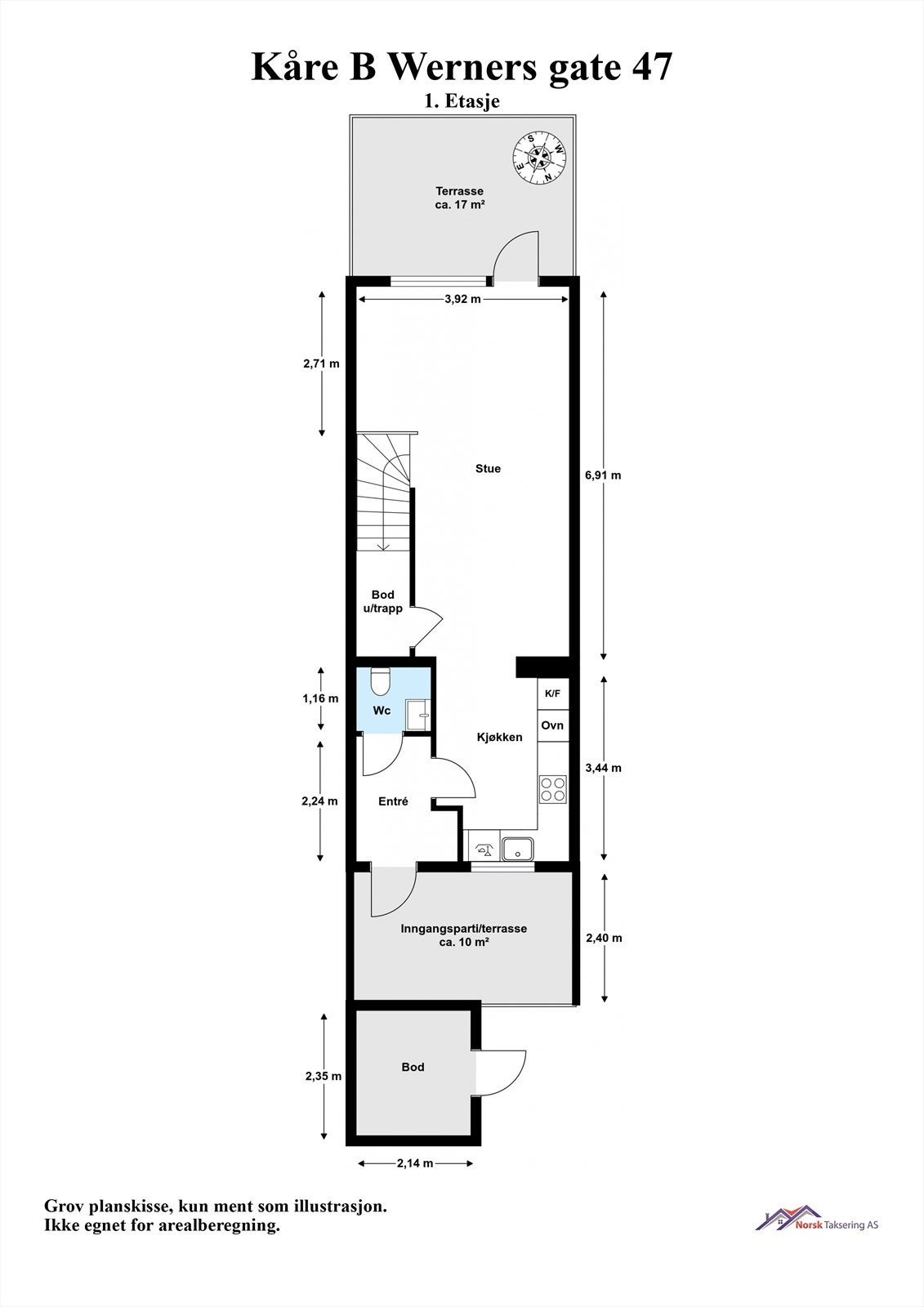
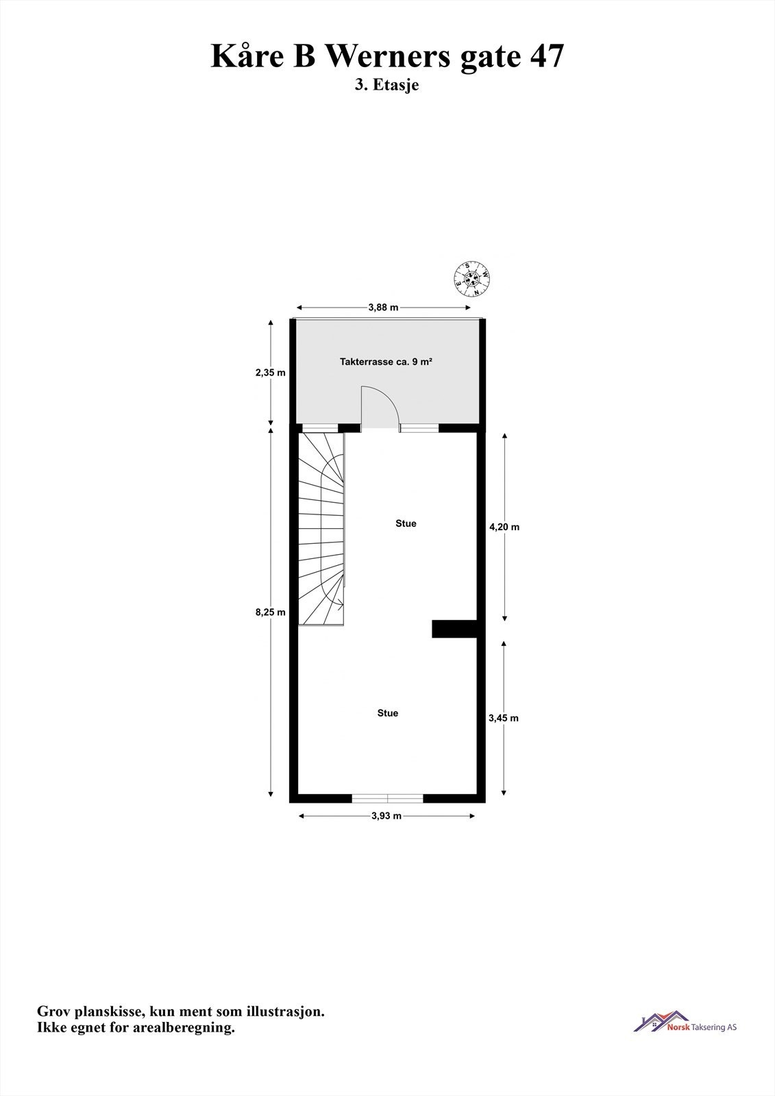
-Et moderne og familievennlig rekkehus over 3 etasjer, oppført i 2020. Boligen har BRA-i på 118 kvm og en gjennomgående god standard fra byggeår. Her får du en praktisk planløsning med entré, lys stue, stilrent kjøkken, 3 soverom, baderom, gjestetoalett, boder og en ekstra stue i toppetasjen. Fra stuen i 1. etasje er det utgang til en sydvendt terrasse på ca. 17 kvm, mens øverste plan byr på en solrik takterrasse på ca. 9 kvm. I tillegg disponerer boligen terrasse ved inngangssiden, sportsbod og garasjeplass i felles garasjeanlegg. Fjernvarme, balansert ventilasjon og et rolig, familievennlig bomiljø gjør dette til en bolig som kombinerer komfort, funksjonalitet og gode uteplasser.
Velkommen til visning - Husk å melde deg på!
-Et moderne og familievennlig rekkehus over 3 etasjer, oppført i 2020. Boligen har BRA-i på 118 kvm og en gjennomgående god standard fra byggeår. Her får du en praktisk planløsning med entré, lys stue, stilrent kjøkken, 3 soverom, baderom, gjestetoalett, boder og en ekstra stue i toppetasjen. Fra stuen i 1. etasje er det utgang til en sydvendt terrasse på ca. 17 kvm, mens øverste plan byr på en solrik takterrasse på ca. 9 kvm. I tillegg disponerer boligen terrasse ved inngangssiden, sportsbod og garasjeplass i felles garasjeanlegg. Fjernvarme, balansert ventilasjon og et rolig, familievennlig bomiljø gjør dette til en bolig som kombinerer komfort, funksjonalitet og gode uteplasser.
Velkommen til visning - Husk å melde deg på!
NB: Knappen for å vise hele beskrivelsen har kun en visuell effekt.
NB: Knappen for å vise hele beskrivelsen har kun en visuell effekt.
Salgsoppgaven beskriver vesentlig og lovpålagt informasjon om eiendommen
Se komplett salgsoppgaveNyttige lenker
Nærområdet
Nordvik Grünerløkka
Annonseinformasjon
| FINN-kode | 456875737 |
|---|---|
| Sist endret | 28. apr. 2026 09:13 |
| Referanse | 64-0047/26 |
Annonsene kan være mangelfulle i forhold til lovpålagt opplysningsplikt. Før bindende avtale inngås oppfordres interessenter til å innhente komplett informasjon fra meglerforetaket, selger eller utleier.






































