Bildegalleri

Velkommen til Vestre Vardane 9A! Et innholdsrikt enderekkehus med en rolig og tilbaketrukket beliggenhet på Erdal.
Solgt
Erdal
Innholdsrikt enderekkehus m/ 4 sov. | Barnevennlig og rolig beliggenhet | Stor solrik uteplass og garasje m/ elbillader
Prisantydning4 250 000 kr
Nøkkelinfo
- Boligtype
- Rekkehus
- Eieform
- Selveier
- Soverom
- 4
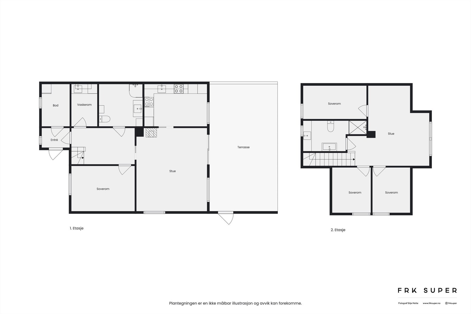
- Internt bruksareal
- 124 m² (BRA-i)
- Bruksareal
- 153 m²
- Eksternt bruksareal
- 29 m² (BRA-e)
- Balkong/Terrasse
- 48 m² (TBA)
- Etasje
- 2
- Byggeår
- 2003
- Energimerking
- Rom
- 5
- Tomteareal
- 4 733 m² (eiet)
Fasiliteter
Balkong/Terrasse
Barnevennlig
Garasje/P-plass
Hage
Kjæledyr tillatt
Kabel-TV
Offentlig vann/kloakk
Rolig
Sentralt
Turterreng
Lademulighet
Om boligen
Velkommen til Vestre Vardane 9A! Et innholdsrikt og familievennlig enderekkehus med stor, skjermet uteplass og garasje.
Her bor du i et rolig og etablert nabolag på Erdal, med gangavstand til skoler, barnehager og buss. Den store terrassen blir en herlig forlengelse av stuen, med god plass til lek og hyggelige stunder. En ny varmepumpe og en lun vedovn sikrer komforten året rundt.
Høydepunkter:
Her bor du i et rolig og etablert nabolag på Erdal, med gangavstand til skoler, barnehager og buss. Den store terrassen blir en herlig forlengelse av stuen, med god plass til lek og hyggelige stunder. En ny varmepumpe og en lun vedovn sikrer komforten året rundt.
Høydepunkter:
- Enderekkehus med familievennlig planløsning over to plan.
- Stor terrasse på 48 m² med gode solforhold.
- Garasje med bod, elbillader og egen strømtilførsel.
- Fire soverom, to bad og separat vaskerom.
- Ny varmepumpe (2024) og vedovn i stuen.
- Varmekabler i gulv i hele første etasje.
Velkommen til visning!
NB: Knappen for å vise hele beskrivelsen har kun en visuell effekt.
NB: Knappen for å vise hele beskrivelsen har kun en visuell effekt.
Salgsoppgaven beskriver vesentlig og lovpålagt informasjon om eiendommen
Se komplett salgsoppgaveNyttige lenker
Nærområdet
Krogsveen Askøy
Verdien av en god megler.
Annonseinformasjon
| FINN-kode | 456536620 |
|---|---|
| Sist endret | 27. mars 2026 18:39 |
| Referanse | KR75.2578 |
Annonsene kan være mangelfulle i forhold til lovpålagt opplysningsplikt. Før bindende avtale inngås oppfordres interessenter til å innhente komplett informasjon fra meglerforetaket, selger eller utleier.








































