Bildegalleri

Synne Berg Farstad v/ Privatmegleren Aksept har gleden av å ønske velkommen til Stensgata 12! Foto: Zovenfra AS
Solgt
Adamstuen / Stensparken
Lys og innbydende selveier med vestv. balkong mot Stensparken. Bad 2025. Rolig og tilbaketrukket. Fyring og v.vann inkl.
Prisantydning3 375 000 kr
Nøkkelinfo
- Boligtype
- Leilighet
- Eieform
- Selveier
- Soverom
- 0
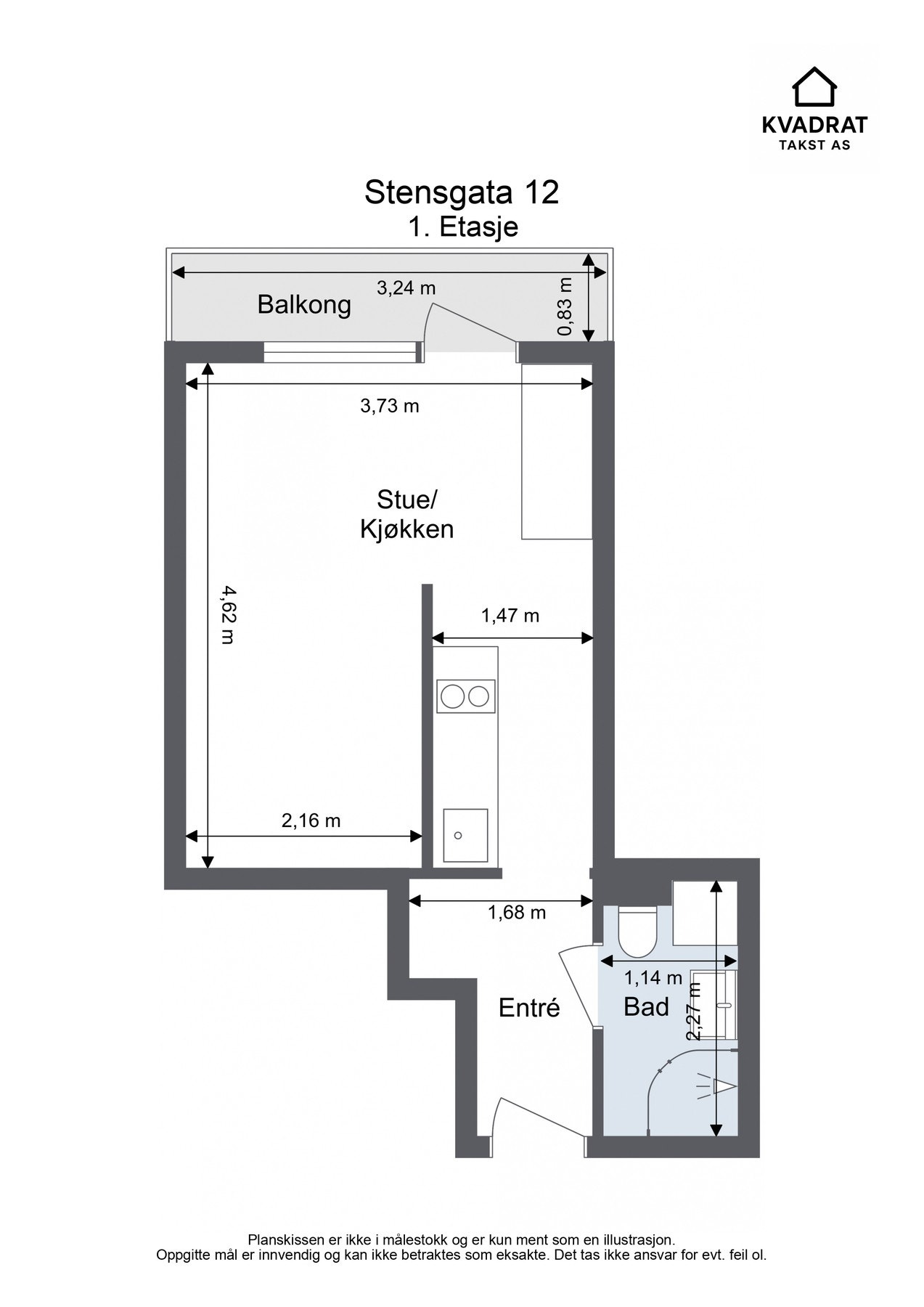
- Internt bruksareal
- 24 m² (BRA-i)
- Bruksareal
- 26 m²
- Eksternt bruksareal
- 2 m² (BRA-e)
- Balkong/Terrasse
- 3 m² (TBA)
- Etasje
- 1
- Byggeår
- 1940
- Energimerking
- Rom
- 1
- Tomteareal
- 367 m² (eiet)
Fasiliteter
Balkong/Terrasse
Ingen gjenboere
Utsikt
Vaktmester-/vektertjeneste
Fellesvaskeri
Sentralt
Bredbåndstilknytning
Moderne
Rolig
Om boligen
Velkommen til Stensgata 12!
En lys og innbydende selveierleilighet med attraktiv beliggenhet mot grønne Stensparken. Her bor du rolig og tilbaketrukket, samtidig som du har kort vei til alt byen har å by på.
Boligen fremstår som svært tiltalende med smart planløsning, gode brukssoner og et delikat, totalrenovert bad fra 2025. Den gode takhøyden gir mulighet for etablering av hems, som kan frigjøre gulvplass og gi en enda bedre utnyttelse av rommet. Fra stuen er det utgang til en solrik, vestvendt balkong med frodig utsyn mot parken.
Leiligheten ligger i indre gårdsrom med nærhet til parker, kollektivtransport, servicetilbud og populære spisesteder.
Kort fortalt:
. Lys og innbydende 1-roms selveier
. Smart planløsning med gode brukssoner
. Mulighet for hems
. Vestvendt balkong med utsyn mot Stensparken
. Totalrenovert bad i 2025
. Rolig og tilbaketrukket, men samtidig svært sentralt
Velkommen til visning!
En lys og innbydende selveierleilighet med attraktiv beliggenhet mot grønne Stensparken. Her bor du rolig og tilbaketrukket, samtidig som du har kort vei til alt byen har å by på.
Boligen fremstår som svært tiltalende med smart planløsning, gode brukssoner og et delikat, totalrenovert bad fra 2025. Den gode takhøyden gir mulighet for etablering av hems, som kan frigjøre gulvplass og gi en enda bedre utnyttelse av rommet. Fra stuen er det utgang til en solrik, vestvendt balkong med frodig utsyn mot parken.
Leiligheten ligger i indre gårdsrom med nærhet til parker, kollektivtransport, servicetilbud og populære spisesteder.
Kort fortalt:
. Lys og innbydende 1-roms selveier
. Smart planløsning med gode brukssoner
. Mulighet for hems
. Vestvendt balkong med utsyn mot Stensparken
. Totalrenovert bad i 2025
. Rolig og tilbaketrukket, men samtidig svært sentralt
Velkommen til visning!
NB: Knappen for å vise hele beskrivelsen har kun en visuell effekt.
NB: Knappen for å vise hele beskrivelsen har kun en visuell effekt.
Salgsoppgaven beskriver vesentlig og lovpålagt informasjon om eiendommen
Se komplett salgsoppgaveNyttige lenker
Nærområdet

PrivatMegleren Aksept
Kun det beste på dine vegne
Annonseinformasjon
| FINN-kode | 456464811 |
|---|---|
| Sist endret | 30. mars 2026 10:32 |
| Referanse | 92260127 |
Annonsene kan være mangelfulle i forhold til lovpålagt opplysningsplikt. Før bindende avtale inngås oppfordres interessenter til å innhente komplett informasjon fra meglerforetaket, selger eller utleier.

























