Bildegalleri

Nordstrand / Lambertseter
Strøken topp / hjørneleilighet med solrik balkong | "Flytt rett inn" -standard | Stille og usjenert beliggende
Prisantydning4 850 000 kr
Nøkkelinfo
- Boligtype
- Leilighet
- Eieform
- Andel
- Soverom
- 2
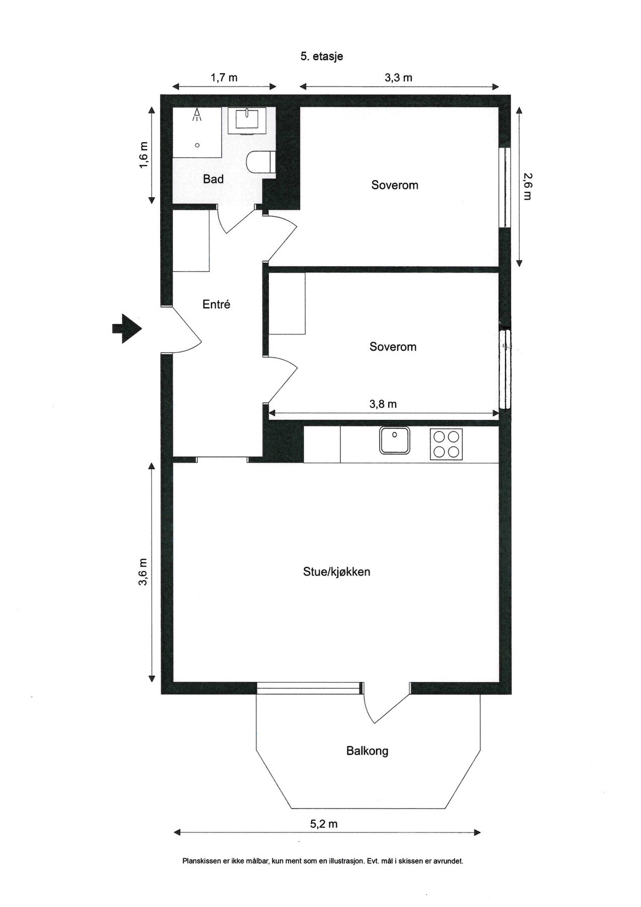
- Internt bruksareal
- 49 m² (BRA-i)
- Bruksareal
- 56 m²
- Eksternt bruksareal
- 7 m² (BRA-e)
- Balkong/Terrasse
- 6 m² (TBA)
- Etasje
- 5
- Byggeår
- 1955
- Energimerking
- Rom
- 3
- Tomteareal
- 76 591 m² (eiet)
Fasiliteter
Barnevennlig
Balkong/Terrasse
Kabel-TV
Offentlig vann/kloakk
Ingen gjenboere
Turterreng
Utsikt
Bredbåndstilknytning
Moderne
Rolig
Om boligen
Leiligheten er beliggende på hjørnet i 5. etasje. Flott leilighet med meget god planløsning. Leiligheten byr på en romslig stue med utgang til solrik balkong, nytt kjøkken med alle hvitevarer integrert, nytt bad med opplegg til vaskemaskin, 2 soverom, godt med bod plass, m.m.
Kort fortalt:
.Nytt flislagt bad i 2024
.Nytt kjøkken i 2025
.Solrik og overbygget balkong
.Åpen stue kjøkkenløsning med utgang til balkong
.Nytt elektrisk anlegg i 2025
.Varme folie i gulv.
.Lave srtømutgifter
.Stille og usjenert beliggende
.Alle gulv, vegger og tak overflatebehandlet i 2025
.Pene uteområder og meget god intern beliggenhet
.Grønt og skjermet boligområde
.Kort gange til buss og dagligvarebutikk
Velkommen til Visning!
Kort fortalt:
.Nytt flislagt bad i 2024
.Nytt kjøkken i 2025
.Solrik og overbygget balkong
.Åpen stue kjøkkenløsning med utgang til balkong
.Nytt elektrisk anlegg i 2025
.Varme folie i gulv.
.Lave srtømutgifter
.Stille og usjenert beliggende
.Alle gulv, vegger og tak overflatebehandlet i 2025
.Pene uteområder og meget god intern beliggenhet
.Grønt og skjermet boligområde
.Kort gange til buss og dagligvarebutikk
Velkommen til Visning!
NB: Knappen for å vise hele beskrivelsen har kun en visuell effekt.
NB: Knappen for å vise hele beskrivelsen har kun en visuell effekt.
Salgsoppgaven beskriver vesentlig og lovpålagt informasjon om eiendommen
Se komplett salgsoppgaveNyttige lenker
Nærområdet

PrivatMegleren Park
Kun det beste på dine vegne
Annonsene kan være mangelfulle i forhold til lovpålagt opplysningsplikt. Før bindende avtale inngås oppfordres interessenter til å innhente komplett informasjon fra meglerforetaket, selger eller utleier.





























