Bildegalleri

Fageråsen
Eksklusiv og nyere hytte med 2,5 mål tomt og spektakulær utsikt | 5(9) sov, 3 bad og flere stuer | Ski inn/ut
Prisantydning16 900 000 kr
- Omkostninger
- 423 590 kr
- Totalpris
- 17 323 590 kr
- Kommunale avg.
- 15 622 kr per år
Nøkkelinfo
- Beliggenhet
- På fjellet
- Boligtype
- Hytte
- Eieform
- Selveier
- Internt bruksareal
- 172 m² (BRA-i)
- Bruksareal
- 172 m²
- Balkong/Terrasse
- 9 m² (TBA)
- Tomteareal
- 2 572 m² (eiet)
- Byggeår
- 2020
- Soverom
- 5
- Rom
- 12
- Energimerking
Fasiliteter
Innlagt vann
Alpinanlegg
Balkong/Terrasse
Barnevennlig
Bilvei frem
Garasje/P-plass
Golfbane
Peis/Ildsted
Rolig
Utsikt
Innlagt strøm
Offentlig vann/kloakk
Turterreng
Visning
Ta kontakt for å avtale visning.Husk å lese komplett salgsoppgave før visning. Bestill komplett, utskriftsvennlig salgsoppgave.
VisningspåmeldingOm boligen
Her presenteres en eksklusiv hytte med stor 2,5 mål tomt og langstrakt utsikt over Trysilfjellet og Sverige. Hytta ble bygd av Femund Bygg i 2020, og er påkostet med eksklusive materialvalg og gjennomtenkte detaljer.
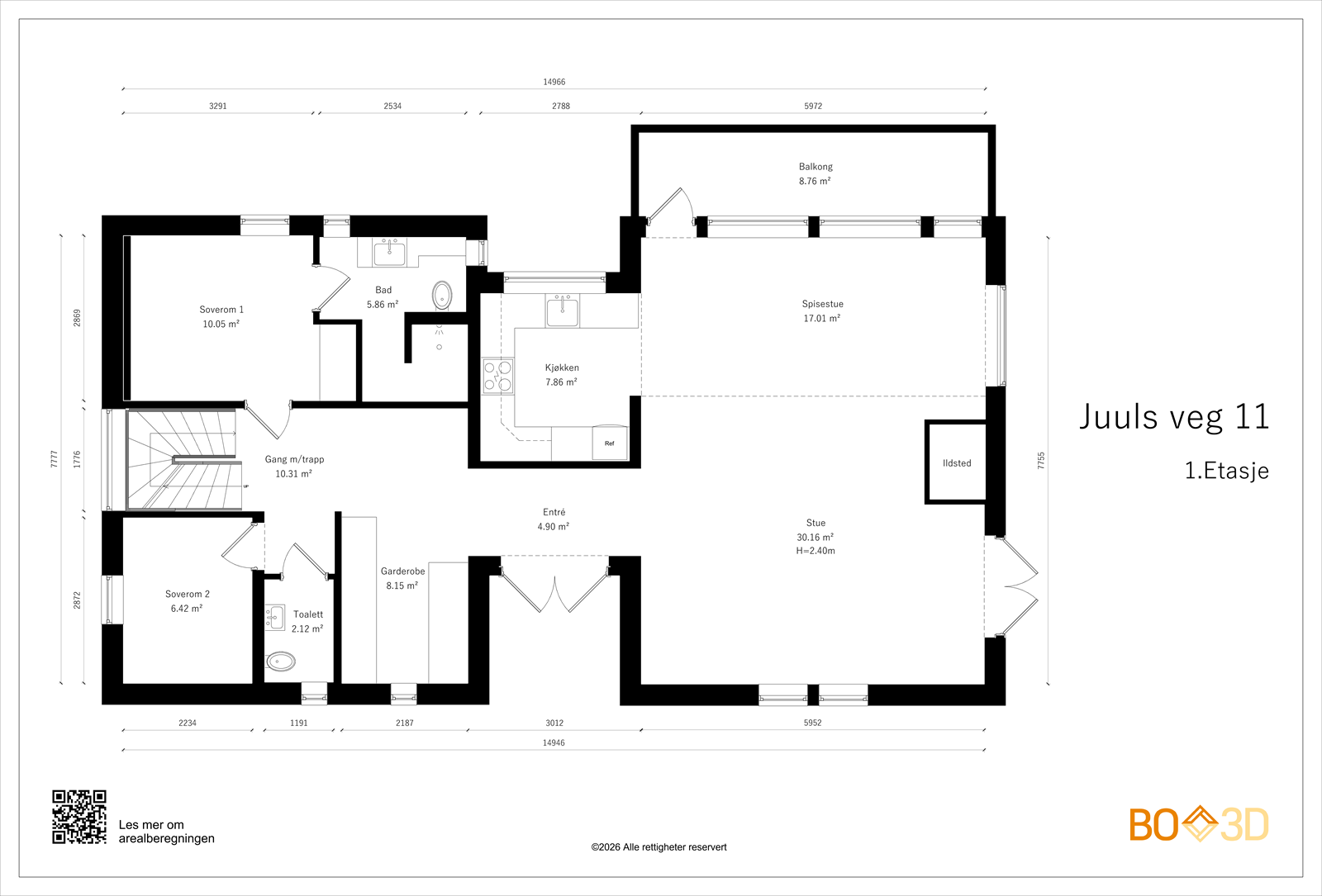
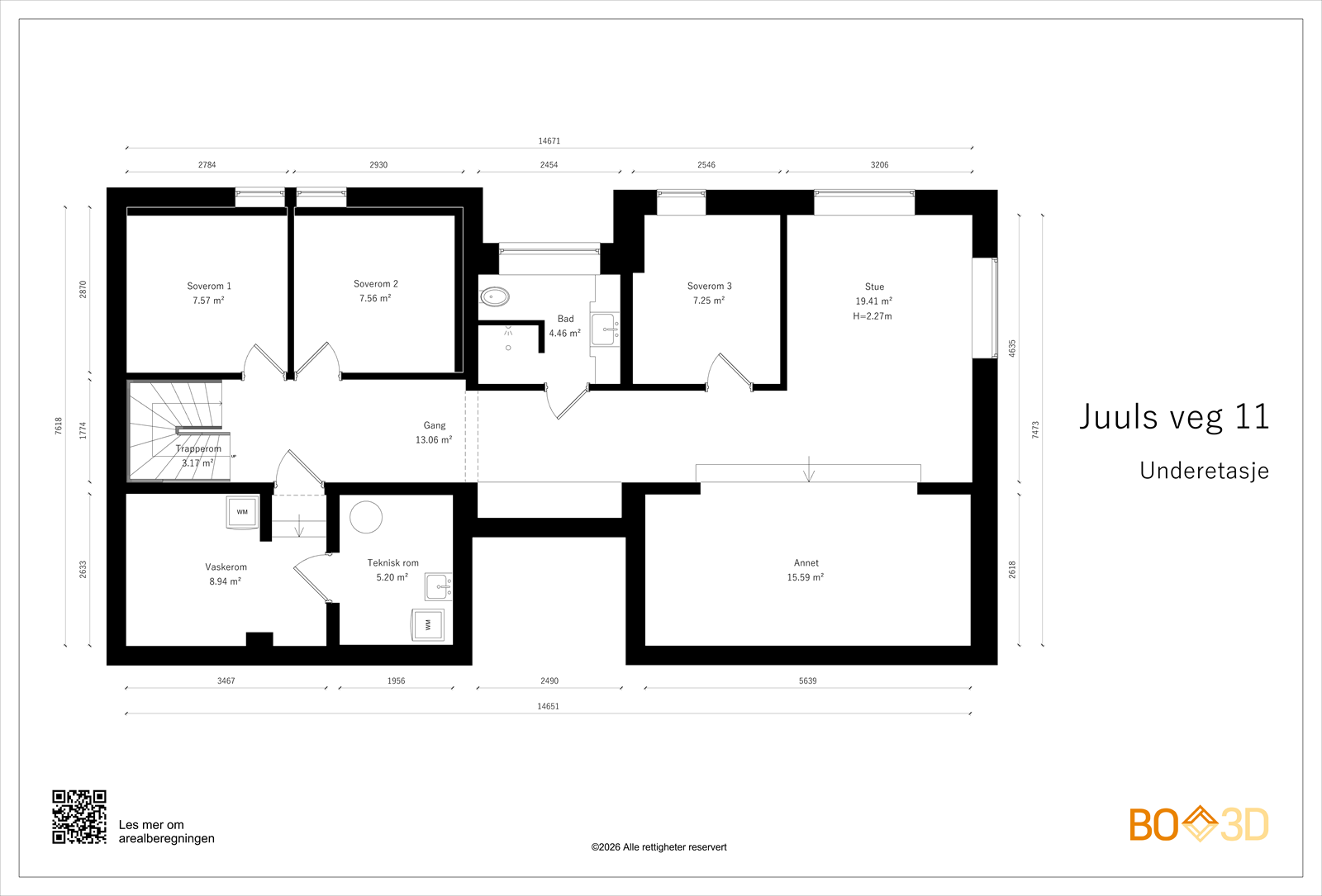
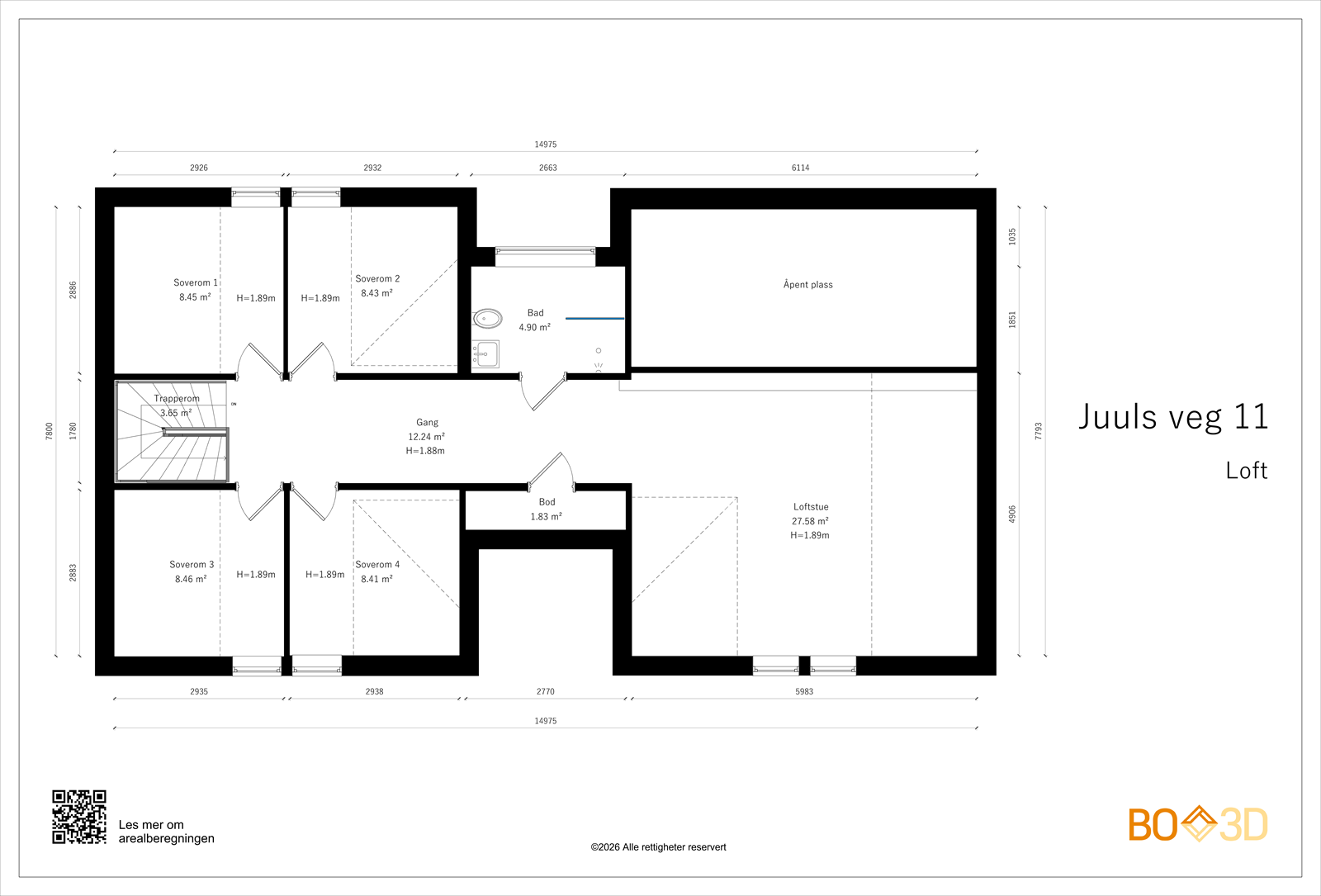
Familievennlig planløsning over 3 plan med ekstra god takhøyde og romslig spisestue med store vindusflater mot utsikten. Videre har hytta flere stuer, lekkert kvalitetskjøkken, 3 delikate baderom, gjestetoalett og 5 soverom. I tillegg er det 4 rom på hemsen som i dag benyttes som soverom. Det er god lagringsplass i både innvendige og utvendig boder.
Område er perfekt for den aktive familien med varierte aktivitetsmuligheter rett utenfor døren og hytta har meget enkel ski inn/ut plassering.
Familievennlig planløsning over 3 plan med ekstra god takhøyde og romslig spisestue med store vindusflater mot utsikten. Videre har hytta flere stuer, lekkert kvalitetskjøkken, 3 delikate baderom, gjestetoalett og 5 soverom. I tillegg er det 4 rom på hemsen som i dag benyttes som soverom. Det er god lagringsplass i både innvendige og utvendig boder.
Område er perfekt for den aktive familien med varierte aktivitetsmuligheter rett utenfor døren og hytta har meget enkel ski inn/ut plassering.
NB: Knappen for å vise hele beskrivelsen har kun en visuell effekt.
NB: Knappen for å vise hele beskrivelsen har kun en visuell effekt.
Salgsoppgaven beskriver vesentlig og lovpålagt informasjon om eiendommen
Se komplett salgsoppgaveNyttige lenker
Nærområdet
EiendomsMegler 1 Sør-Norge avd Ullevål
En del av Sparebank 1 Sør-Norge
Annonseinformasjon
| FINN-kode | 456442258 |
|---|---|
| Sist endret | 24. mars 2026 12:43 |
| Referanse | 2802260112 |
Annonsene kan være mangelfulle i forhold til lovpålagt opplysningsplikt. Før bindende avtale inngås oppfordres interessenter til å innhente komplett informasjon fra meglerforetaket, selger eller utleier.


















































