Bildegalleri

Velkommen til Vikersundgata 13! Viken Fototjenester v/ Eirik Andersen
Vikersund
Sentral og lys 3-roms selveierleilighet midt i Vikersund sentrum - God takhøyde - Balkong
Prisantydning1 990 000 kr
Nøkkelinfo
- Boligtype
- Leilighet
- Eieform
- Eier (Selveier)
- Soverom
- 2
- Internt bruksareal
- 70 m² (BRA-i)
- Bruksareal
- 75 m²
- Eksternt bruksareal
- 5 m² (BRA-e)
- Balkong/Terrasse
- 5 m² (TBA)
- Etasje
- 3
- Byggeår
- 1905
- Rom
- 3
- Tomteareal
- 876 m² (eiet)
Fasiliteter
Alpinanlegg
Balkong/Terrasse
Garasje/P-plass
Offentlig vann/kloakk
Sentralt
Turterreng
Visning
mandag, 30. mars
16:30 – 17:30
Ønsker du å delta på visningen ber vi deg melde deg på slik at vi vet at du kommer. Da kan vi bistå alle best mulig og gi deg tiden du trenger på visningen. Kontakt gjerne megler før visning hvis du har spørsmål. Visningen avholdes bare dersom det er påmeldte. Hvis det ikke er oppsatt visningstidspunkt eller tidspunkt ikke passer, kontakt megler.
VisningspåmeldingOm boligen
Velkommen til Vikersundgata 13!
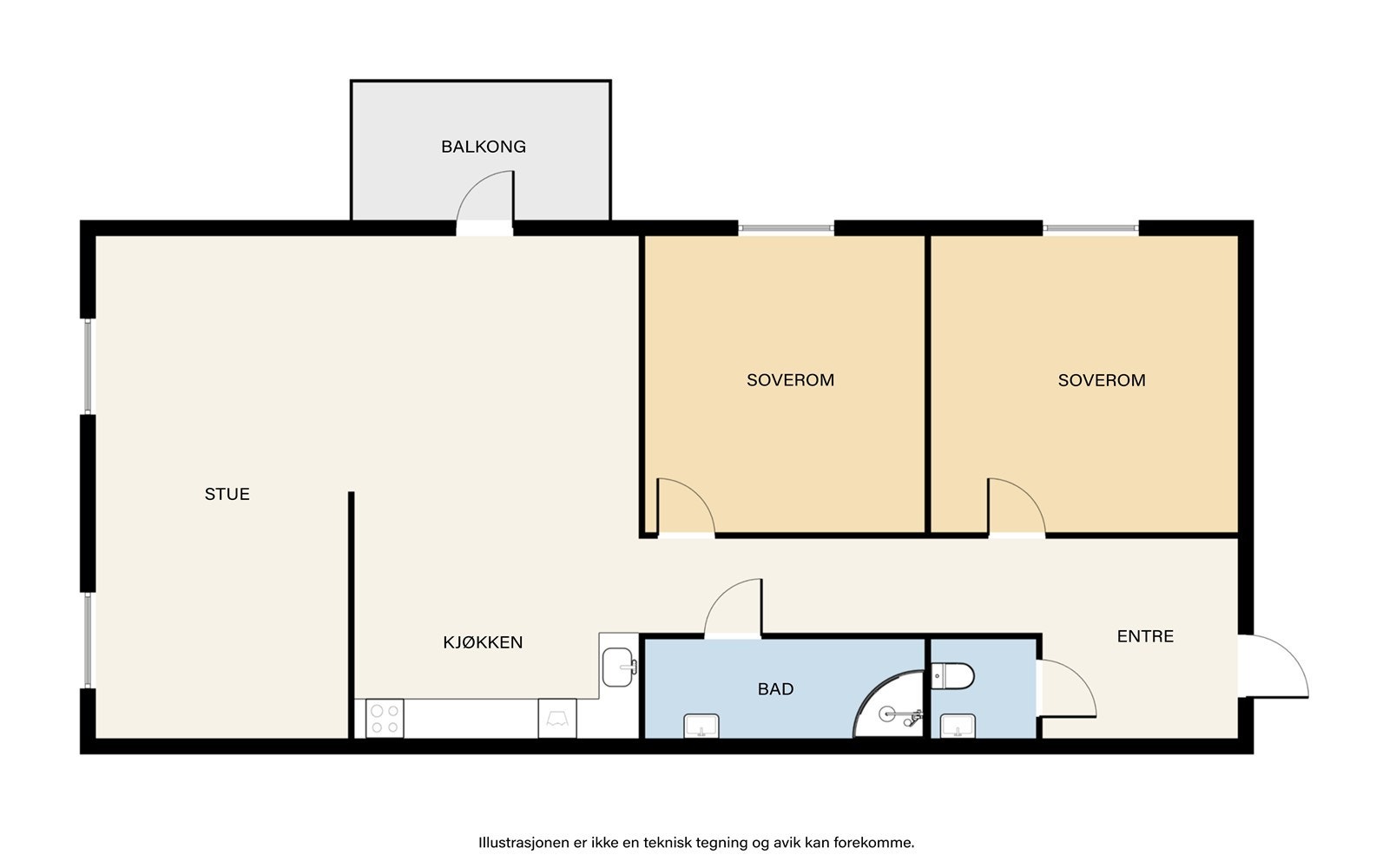
Dette er en romslig 3-roms selveierleilighet med stort potensial og oppussingsbehov, sentralt i Vikersund sentrum. Med en fantastisk takhøyde på 280 cm og store vinduer i stuen, oppleves leiligheten som lys med en luftig romfølelse.
Planløsningen er god og består av entré, stue med utgang til balkong, kjøkken, bad, toalettrom og to soverom. I tillegg disponeres det en praktisk bod på ca. 5 m² på loftet, som gir ekstra lagringsplass.
Leiligheten har en svært sentral beliggenhet med gangavstand til butikker, frisør, treningssenter, apotek og vinmonopol. Området byr også på flott turterreng året rundt og populære stier, som Bergsjø-stien. Her bor du nært alt, med mulighet for et aktivt og praktisk hverdagsliv!
Velkommen til en hyggelig visning!
Dette er en romslig 3-roms selveierleilighet med stort potensial og oppussingsbehov, sentralt i Vikersund sentrum. Med en fantastisk takhøyde på 280 cm og store vinduer i stuen, oppleves leiligheten som lys med en luftig romfølelse.
Planløsningen er god og består av entré, stue med utgang til balkong, kjøkken, bad, toalettrom og to soverom. I tillegg disponeres det en praktisk bod på ca. 5 m² på loftet, som gir ekstra lagringsplass.
Leiligheten har en svært sentral beliggenhet med gangavstand til butikker, frisør, treningssenter, apotek og vinmonopol. Området byr også på flott turterreng året rundt og populære stier, som Bergsjø-stien. Her bor du nært alt, med mulighet for et aktivt og praktisk hverdagsliv!
Velkommen til en hyggelig visning!
NB: Knappen for å vise hele beskrivelsen har kun en visuell effekt.
NB: Knappen for å vise hele beskrivelsen har kun en visuell effekt.
Salgsoppgaven beskriver vesentlig og lovpålagt informasjon om eiendommen
Se komplett salgsoppgaveNyttige lenker
Nærområdet
EiendomsMegler 1 Modum
et foretak i SpareBank 1 Sør-Norge konsernet
Annonseinformasjon
| FINN-kode | 456398539 |
|---|---|
| Sist endret | 20. mars 2026 13:01 |
| Referanse | 2870260044 |
Annonsene kan være mangelfulle i forhold til lovpålagt opplysningsplikt. Før bindende avtale inngås oppfordres interessenter til å innhente komplett informasjon fra meglerforetaket, selger eller utleier.















