Bildegalleri

Velkommen til Sandestubben 3, prasentert av EiendomsMegler1 V/Jarl Tjelta - Foto Trond-Eirik Husvæg
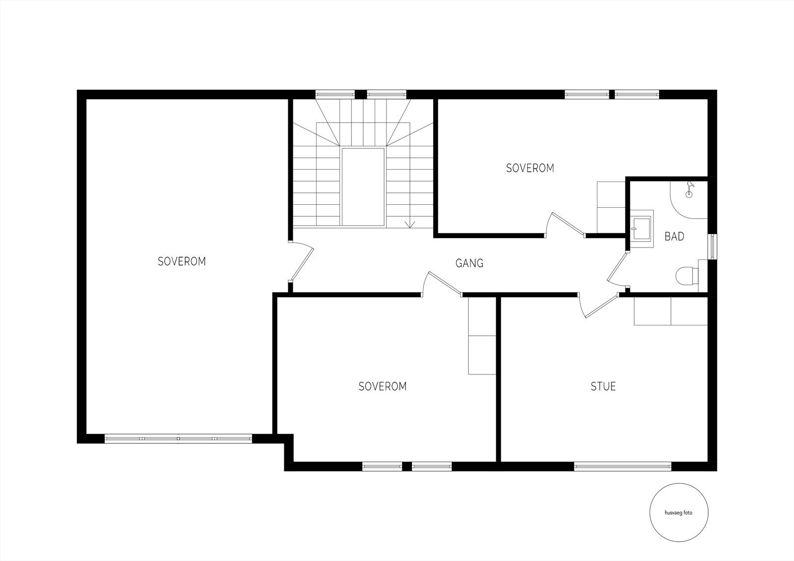
Romslig enebolig med moderne løsninger og pent opparbeidet tomt. Dobbel garasje med tilhørende bod
Prisantydning9 900 000 kr
Nøkkelinfo
- Boligtype
- Enebolig
- Eieform
- Selveier
- Soverom
- 5
- Internt bruksareal
- 297 m² (BRA-i)
- Bruksareal
- 360 m²
- Eksternt bruksareal
- 63 m² (BRA-e)
- Byggeår
- 1971
- Energimerking
- Rom
- 9
- Tomteareal
- 888 m² (eiet)
Fasiliteter
Balkong/Terrasse
Garasje/P-plass
Hage
Offentlig vann/kloakk
Parkett
Rolig
Sentralt
Turterreng
Lademulighet
Om boligen
Romslig enebolig med gjennomtenkte løsninger og flott beliggenhet.
Boligen har en lys og åpen stue med god plass til både sofagruppe og spisebord, i tillegg til direkte utgang til uteområdet.
Kjøkkenet er moderne, med profilerte fronter, steinbenkeplate og integrerte hvitevarer som komfyr, mikro/stekeovn, oppvaskmaskin, kaffemaskin og kjølehjørne.
Boligen har flere soverom, tre bad og funksjonelle oppholdsrom som gir fleksible muligheter for oppbevaring og daglig bruk.
Stor og pent opparbeidet tomt med terrasse, plen og et gårdsrom med belegningsstein som gir rikelig plass til gjesteparkering.
Eiendommen har også en isolert dobbelgarasje med bod. Beliggenheten er barnevennlig og sentral, med kort vei til skoler, barnehager og butikker
Boligen har en lys og åpen stue med god plass til både sofagruppe og spisebord, i tillegg til direkte utgang til uteområdet.
Kjøkkenet er moderne, med profilerte fronter, steinbenkeplate og integrerte hvitevarer som komfyr, mikro/stekeovn, oppvaskmaskin, kaffemaskin og kjølehjørne.
Boligen har flere soverom, tre bad og funksjonelle oppholdsrom som gir fleksible muligheter for oppbevaring og daglig bruk.
Stor og pent opparbeidet tomt med terrasse, plen og et gårdsrom med belegningsstein som gir rikelig plass til gjesteparkering.
Eiendommen har også en isolert dobbelgarasje med bod. Beliggenheten er barnevennlig og sentral, med kort vei til skoler, barnehager og butikker
NB: Knappen for å vise hele beskrivelsen har kun en visuell effekt.
NB: Knappen for å vise hele beskrivelsen har kun en visuell effekt.
Salgsoppgaven beskriver vesentlig og lovpålagt informasjon om eiendommen
Se komplett salgsoppgaveNyttige lenker
Nærområdet
EiendomsMegler 1 Sola
En del av Sparebank 1 Sør-Norge
Annonseinformasjon
| FINN-kode | 456391932 |
|---|---|
| Sist endret | 27. mars 2026 18:32 |
| Referanse | 2210250147 |
Annonsene kan være mangelfulle i forhold til lovpålagt opplysningsplikt. Før bindende avtale inngås oppfordres interessenter til å innhente komplett informasjon fra meglerforetaket, selger eller utleier.


































































