Bildegalleri

Velkommen til Peder Holters Vei 15 B! En sjarmerende halvpart av en tomannsbolig i et frodig og veletablert hagemiljø på Ljan.
Ljan / Nordstrand
Skjermet del av tomannsbolig på Ljan | Familievennlig hage | Fjordutsikt | Nær barnehage, skole og fjorden | Parkering
Prisantydning8 500 000 kr
Nøkkelinfo
- Boligtype
- Tomannsbolig
- Eieform
- Selveier
- Soverom
- 3
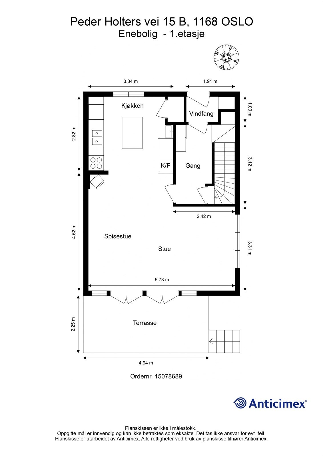
- Internt bruksareal
- 147 m² (BRA-i)
- Bruksareal
- 147 m²
- Balkong/Terrasse
- 15 m² (TBA)
- Byggeår
- 1951
- Energimerking
- Tomteareal
- 1 531 m²
Fasiliteter
Balkong/Terrasse
Barnevennlig
Garasje/P-plass
Hage
Kjæledyr tillatt
Parkett
Peis/Ildsted
Rolig
Utsikt
Visning
For å delta på visning, ber vi om at du melder deg på. Da sikrer vi at du får nødvendig informasjon og at det er satt av tilstrekkelig med tid. Kontakt megler dersom annet tidspunkt ønskes. Husk å lese salgsoppgaven før visningen, så du stiller forberedt.
Ønsker du kun å bli holdt orientert, kan du fra eiendommens hjemmeside få varsel om solgtpris, eller kontakte megler.
VisningspåmeldingOm boligen
Velkommen til Peder Holters Vei 15! Et hjem på Ljan gir deg naturen tett på, samtidig som byen er kun minutter unna.
Dette er en halvpart av en vertikaldelt tomannsbolig fra 1951, beliggende i et idyllisk og veletablert nabolag på Ljan. Området er landlig og vernet for sitt særpreg, med kort vei til både skog og fjord. Boligen er en selveier over tre plan som byr på en familievennlig planløsning og gode lagringsmuligheter.
Høydepunkter:
Dette er en halvpart av en vertikaldelt tomannsbolig fra 1951, beliggende i et idyllisk og veletablert nabolag på Ljan. Området er landlig og vernet for sitt særpreg, med kort vei til både skog og fjord. Boligen er en selveier over tre plan som byr på en familievennlig planløsning og gode lagringsmuligheter.
Høydepunkter:
- Vestvendt balkong på 4 m² terrasse på 11 m²
- Familievennlig del av hage
- Fjordutsikt
- Oppgradert bad fra 2017
- Varmekabler i entré, kjøkken og på bad
- Peisovn i stuen for ekstra hygge
- Nærhet til bl.a. Ljan barneskole, fjorden, tennisklubb og slalombakke
Velkommen til visning!
NB: Knappen for å vise hele beskrivelsen har kun en visuell effekt.
NB: Knappen for å vise hele beskrivelsen har kun en visuell effekt.
Salgsoppgaven beskriver vesentlig og lovpålagt informasjon om eiendommen
Se komplett salgsoppgaveNyttige lenker
Nærområdet
Krogsveen Nordstrand
Verdien av en god megler.
Annonseinformasjon
| FINN-kode | 456276650 |
|---|---|
| Sist endret | 25. mars 2026 14:42 |
| Referanse | KR44.2610 |
Annonsene kan være mangelfulle i forhold til lovpålagt opplysningsplikt. Før bindende avtale inngås oppfordres interessenter til å innhente komplett informasjon fra meglerforetaket, selger eller utleier.































































