Bildegalleri

Velkommen til Skudenesgata 39B presentert av Roar Bjørntvedt v/Eiendomsmegler Norge
Vertikaldelt 3-roms andelsleilighet med gangavstand til sentrum - Solrik terrasse - Parkering
Prisantydning2 290 000 kr
Nøkkelinfo
- Boligtype
- Leilighet
- Eieform
- Andel
- Soverom
- 2
- Internt bruksareal
- 102 m² (BRA-i)
- Bruksareal
- 102 m²
- Balkong/Terrasse
- 21 m² (TBA)
- Etasje
- 3
- Byggeår
- 1953
- Energimerking
- Rom
- 3
- Tomteareal
- 1 922 m² (eiet)
Fasiliteter
Balkong/Terrasse
Barnevennlig
Bredbåndstilknytning
Garasje/P-plass
Hage
Ingen gjenboere
Offentlig vann/kloakk
Parkett
Peis/Ildsted
Sentralt
Visning
onsdag, 25. mars
16:00 – 17:00
Eiendomsmegler Norge sine visninger har påmelding. Påmelding gjøres enkelt ved å benytte knappen under. Ta kontakt med megler dersom oppsatt tidspunkt ikke passer. Det vil ikke bli avholdt visning uten påmelding, frist for påmelding er senest kl. 12.00 på visningsdagen. Husk å laste ned salgsoppgaven digitalt før visning. Velkommen til en hyggelig visning!
VisningspåmeldingOm boligen
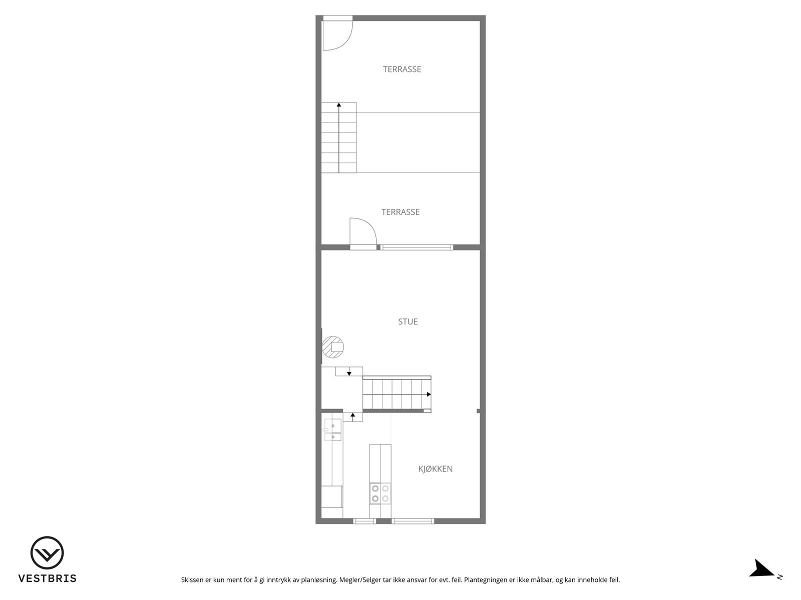
Velkommen til Skudesnesgata 39B - en tiltalende, vertikaldelt leilighet med vestvendt terrasse!
Lys og innholdsrik leilighet med solrik beliggenhet og praktisk planløsning. Romslig kjøkken i delvis åpen løsning mot en stor og luftig stue. Fra stuen er det utgang til en solrik terrasse med gode solforhold til ettermiddag og kveld. Boligen har to gode soverom og bad i øverste etasje. Med separat vaskerom, kjellerstue og bod i første etasje.
Leiligheten ligger innen gangavstand til alle fasilitetene i og nær sentrum. Enten du ønsker å få med deg en teateroppsetning, treffe venner over kaffe eller få anbefalt en hvitvin til rekene, er alt dette like i nærheten. Bilen står og bena går. Bare det i seg selv er en god investering!
Lys og innholdsrik leilighet med solrik beliggenhet og praktisk planløsning. Romslig kjøkken i delvis åpen løsning mot en stor og luftig stue. Fra stuen er det utgang til en solrik terrasse med gode solforhold til ettermiddag og kveld. Boligen har to gode soverom og bad i øverste etasje. Med separat vaskerom, kjellerstue og bod i første etasje.
Leiligheten ligger innen gangavstand til alle fasilitetene i og nær sentrum. Enten du ønsker å få med deg en teateroppsetning, treffe venner over kaffe eller få anbefalt en hvitvin til rekene, er alt dette like i nærheten. Bilen står og bena går. Bare det i seg selv er en god investering!
NB: Knappen for å vise hele beskrivelsen har kun en visuell effekt.
NB: Knappen for å vise hele beskrivelsen har kun en visuell effekt.
Salgsoppgaven beskriver vesentlig og lovpålagt informasjon om eiendommen
Se komplett salgsoppgaveNyttige lenker
Nærområdet
Eiendomsmegler Norge Haugesund
Best der du bor
Annonseinformasjon
| FINN-kode | 456265659 |
|---|---|
| Sist endret | 19. mars 2026 12:10 |
| Referanse | 19260063 |
Annonsene kan være mangelfulle i forhold til lovpålagt opplysningsplikt. Før bindende avtale inngås oppfordres interessenter til å innhente komplett informasjon fra meglerforetaket, selger eller utleier.


























