Bildegalleri

Velkommen til Brattlandsplassen 10! Presentert av Oscar Omland v/Aktiv Eiendomsmegling Jæren. Fotograf: Brian Engen
Varhaug
Moderne, lettstelt og meget velholdt enebolig med nydelig havutsikt! | Barnevennlig | Varmepumper | Garasje
Prisantydning4 990 000 kr
Nøkkelinfo
- Boligtype
- Enebolig
- Eieform
- Eier (Selveier)
- Soverom
- 3
- Internt bruksareal
- 136 m² (BRA-i)
- Bruksareal
- 172 m²
- Eksternt bruksareal
- 36 m² (BRA-e)
- Balkong/Terrasse
- 83 m² (TBA)
- Etasje
- 2
- Byggeår
- 2012
- Energimerking
- Rom
- 5
- Tomteareal
- 267 m² (eiet)
Fasiliteter
Balkong/Terrasse
Garasje/P-plass
Parkett
Utsikt
Balansert ventilasjon
Visning
torsdag, 26. mars
16:30 – 17:30
Ved annonsert visning er det viktig at du melder deg på visningen ved å bruke visningspåmeldingsknappen eller kontakter megler. Annonserte visninger hvor det ikke er noen påmeldte innen kl. 12.00 visningsdagen vil ikke bli avholdt. For visninger utover dette, ta direkte kontakt med megler.
VisningspåmeldingOm boligen
Aktiv Eiendomsmegling Jæren v/Oscar Omland har gleden av å kunne presentere Brattlandsplassen 10 for salg.
En moderne enebolig med garasje, fantastisk utsikt, meget velholdt og populær beliggenhet.
Kort fortalt:
- Nydelig utsikt mot havet og det jærske landskapet
- Stilig garasje med gulv overflatebehandlet med epoxy.
- 3 gode soverom
- Åpen stue- kjøkkenløsning
- Balansert ventilasjon for behagelig inneklima
- Veldig få avvik i tilstandsrapporten
- Terrasse og takterrasse over garasje
- Populær og barnevennlig beliggenhet
- Varmepumper i begge etasjer
- Praktisk utvendig bod
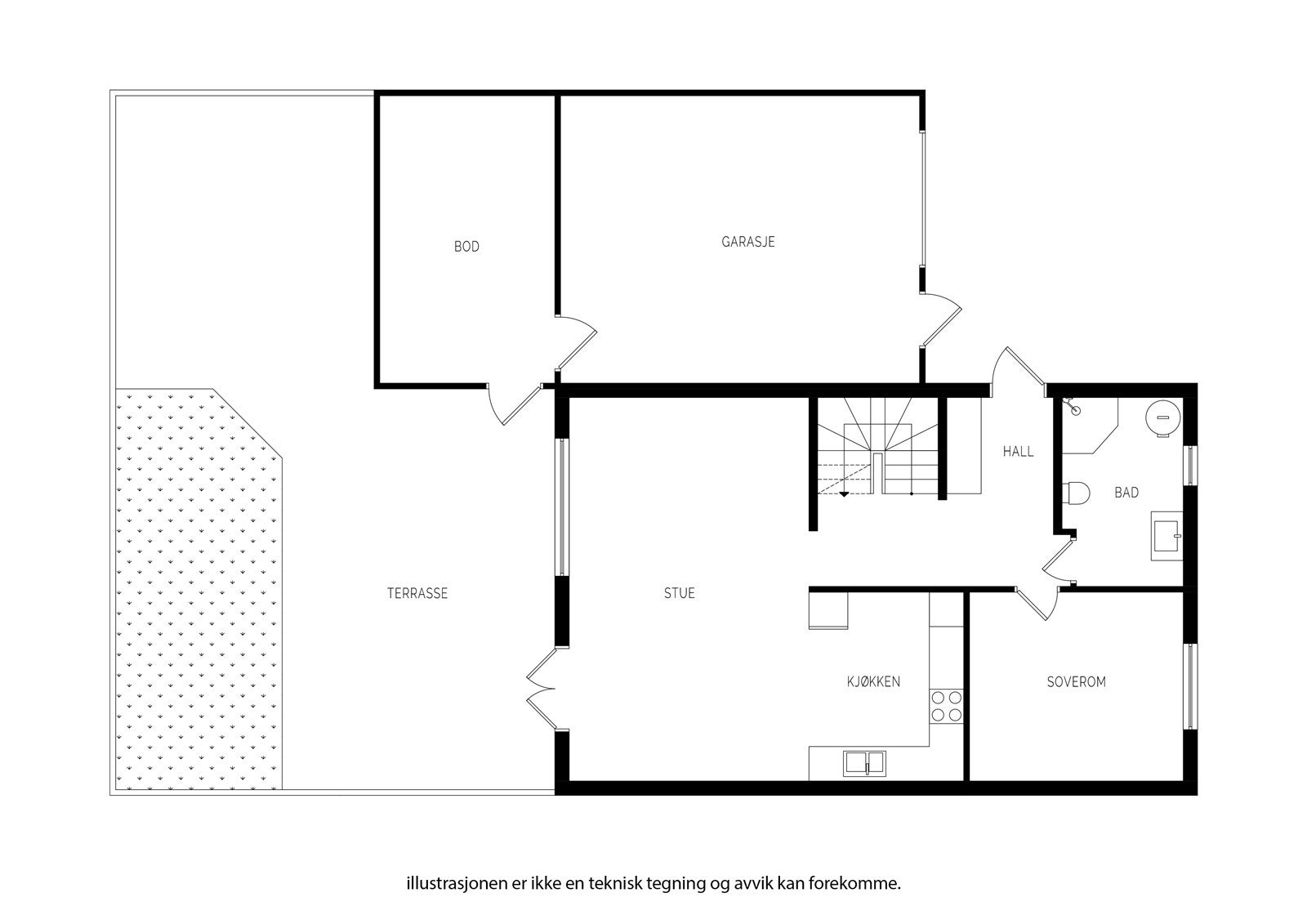
Innhold:
1.etg: Entré, bad, soverom, stue/kjøkken
2.etg: Stue, 2 soverom, bad/vaskerom, bod
En moderne enebolig med garasje, fantastisk utsikt, meget velholdt og populær beliggenhet.
Kort fortalt:
- Nydelig utsikt mot havet og det jærske landskapet
- Stilig garasje med gulv overflatebehandlet med epoxy.
- 3 gode soverom
- Åpen stue- kjøkkenløsning
- Balansert ventilasjon for behagelig inneklima
- Veldig få avvik i tilstandsrapporten
- Terrasse og takterrasse over garasje
- Populær og barnevennlig beliggenhet
- Varmepumper i begge etasjer
- Praktisk utvendig bod
Innhold:
1.etg: Entré, bad, soverom, stue/kjøkken
2.etg: Stue, 2 soverom, bad/vaskerom, bod
NB: Knappen for å vise hele beskrivelsen har kun en visuell effekt.
NB: Knappen for å vise hele beskrivelsen har kun en visuell effekt.
Salgsoppgaven beskriver vesentlig og lovpålagt informasjon om eiendommen
Se komplett salgsoppgaveNærområdet
Aktiv Jæren
Annonseinformasjon
| FINN-kode | 456253436 |
|---|---|
| Sist endret | 19. mars 2026 11:34 |
| Referanse | 1403260094 |
Annonsene kan være mangelfulle i forhold til lovpålagt opplysningsplikt. Før bindende avtale inngås oppfordres interessenter til å innhente komplett informasjon fra meglerforetaket, selger eller utleier.





























































