Bildegalleri

Velkommen til Granittvegen 21, en flott familiebolig med renovert fasade samt fin intern beliggenhet på hjørnet av feltet med kort veg til garasjeplassen
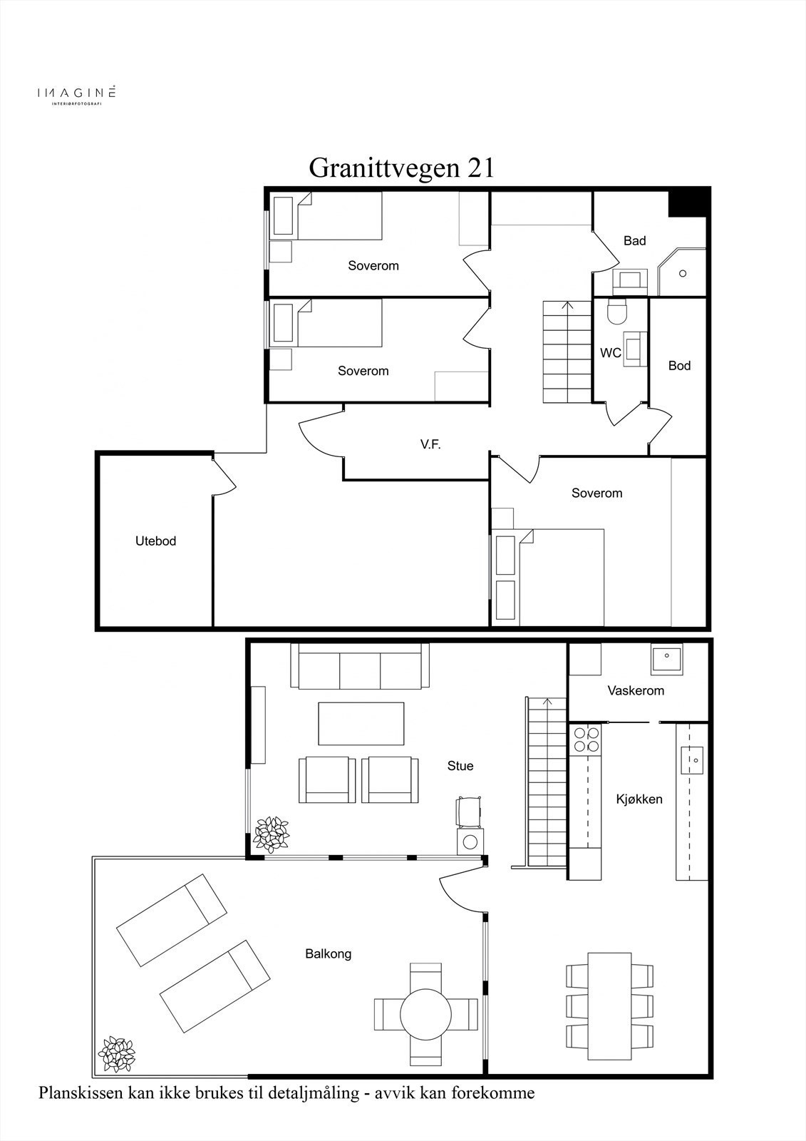
Innholdsrikt 4-roms ende- rekkehus i populære og barnevennlige Kroken. Vedfyring - Garasje - Lekkert bad
Prisantydning4 290 000 kr
Nøkkelinfo
- Boligtype
- Rekkehus
- Eieform
- Andel
- Soverom
- 3
- Internt bruksareal
- 113 m² (BRA-i)
- Bruksareal
- 122 m²
- Eksternt bruksareal
- 9 m² (BRA-e)
- Balkong/Terrasse
- 32 m² (TBA)
- Byggeår
- 1973
- Rom
- 4
- Tomteareal
- 39 342 m² (eiet)
Fasiliteter
Alpinanlegg
Balkong/Terrasse
Barnevennlig
Bredbåndstilknytning
Garasje/P-plass
Kabel-TV
Offentlig vann/kloakk
Peis/Ildsted
Rolig
Utsikt
Turterreng
Lademulighet
Visning
onsdag, 25. mars
18:10 – 18:40
Alle våre visninger har påmelding. På denne måten sikrer vi at megler har god oversikt og tid til å imøtekomme alle interessenter på beste måte. Skulle ingen være påmeldt til visningen, vil visningen ikke bli gjennomført. Passer ikke annonsert tidspunkt, ta kontakt så finner vi en løsning.
VisningspåmeldingOm boligen
Velkommen til Grantittvegen 21. Her bor du fint til i et område som passer perfekt for deg og familien. Attraktiv beliggenhet øverst på rekka med kort vei til garasjeanlegget. Boligen har en stor balkong hvor deler er under tak med flott utsikt og fantastiske solforhold.
Innvending strekker boligen seg over 2 plan og er meget innholdsrik med bl.a 3 soverom, lekkert og nyere bad, Wc-rom, bod, vaskerom, romslig stue med egen spisestuedel og kjøkken med godt med skap og benkeplass m.m. Sportsbod ved inngangsparti.
Boligen ligger fint til med kort vei til de fleste fasiliteter som blant annet dagligvarebutikk, skole/barnehage, alpinanlegg og fotballbane. I tillegg er det kort vei til busstopp med gode bussforbindelser som tar deg til blant annet Tromsø sentrum og UNN/UiT.
Innvending strekker boligen seg over 2 plan og er meget innholdsrik med bl.a 3 soverom, lekkert og nyere bad, Wc-rom, bod, vaskerom, romslig stue med egen spisestuedel og kjøkken med godt med skap og benkeplass m.m. Sportsbod ved inngangsparti.
Boligen ligger fint til med kort vei til de fleste fasiliteter som blant annet dagligvarebutikk, skole/barnehage, alpinanlegg og fotballbane. I tillegg er det kort vei til busstopp med gode bussforbindelser som tar deg til blant annet Tromsø sentrum og UNN/UiT.
NB: Knappen for å vise hele beskrivelsen har kun en visuell effekt.
NB: Knappen for å vise hele beskrivelsen har kun en visuell effekt.
Salgsoppgaven beskriver vesentlig og lovpålagt informasjon om eiendommen
Se komplett salgsoppgaveNyttige lenker
Nærområdet
GARANTI Eiendomsmegling Tromsø
Annonseinformasjon
| FINN-kode | 456243685 |
|---|---|
| Sist endret | 19. mars 2026 09:43 |
| Referanse | GAR51.2693 |
Annonsene kan være mangelfulle i forhold til lovpålagt opplysningsplikt. Før bindende avtale inngås oppfordres interessenter til å innhente komplett informasjon fra meglerforetaket, selger eller utleier.



























