Bildegalleri

Eiendomsmegler 1 ved Albin Leo Bakkemo har gleden av og presentere P.K. Gorseths veg 23A. (Foto: Interiørfoto, Bente Eidsmo)
Oppdal
Velholdt vertikaldelt tomannsbolig med solrik beliggenhet i Bjørkmoen - 3 sov - Praktisk vaskerom - Barnevennlig området
Prisantydning3 990 000 kr
Nøkkelinfo
- Boligtype
- Tomannsbolig
- Eieform
- Eier (Selveier)
- Soverom
- 3
- Internt bruksareal
- 106 m² (BRA-i)
- Bruksareal
- 112 m²
- Eksternt bruksareal
- 6 m² (BRA-e)
- Balkong/Terrasse
- 44 m² (TBA)
- Byggeår
- 2010
- Energimerking
- C - Lysegrønn
- Rom
- 4
- Tomteareal
- 442 m² (eiet)
Fasiliteter
Barnevennlig
Balkong/Terrasse
Garasje/P-plass
Offentlig vann/kloakk
Peis/Ildsted
Turterreng
Utsikt
Sentralt
Moderne
Rolig
Visning
mandag, 30. mars
16:00 – 16:45
Våre visninger har påmelding. Dette gjør vi for å kunne yte bedre service for våre kunder. Verdifullt for boligkjøper og for oss. Vi anbefaler at salgsoppgaven lastes ned digitalt før visning, og ring oss gjerne på forhånd for spørsmål om boligen. Passer ikke angitt tidspunkt, ta kontakt så finner vi en løsning. Skulle det mot formodning ikke være påmeldte til angitt visningstidspunkt vil ikke visning bli gjennomført.
Om boligen
Velkommen til P.K. Gorseths veg 23 A!
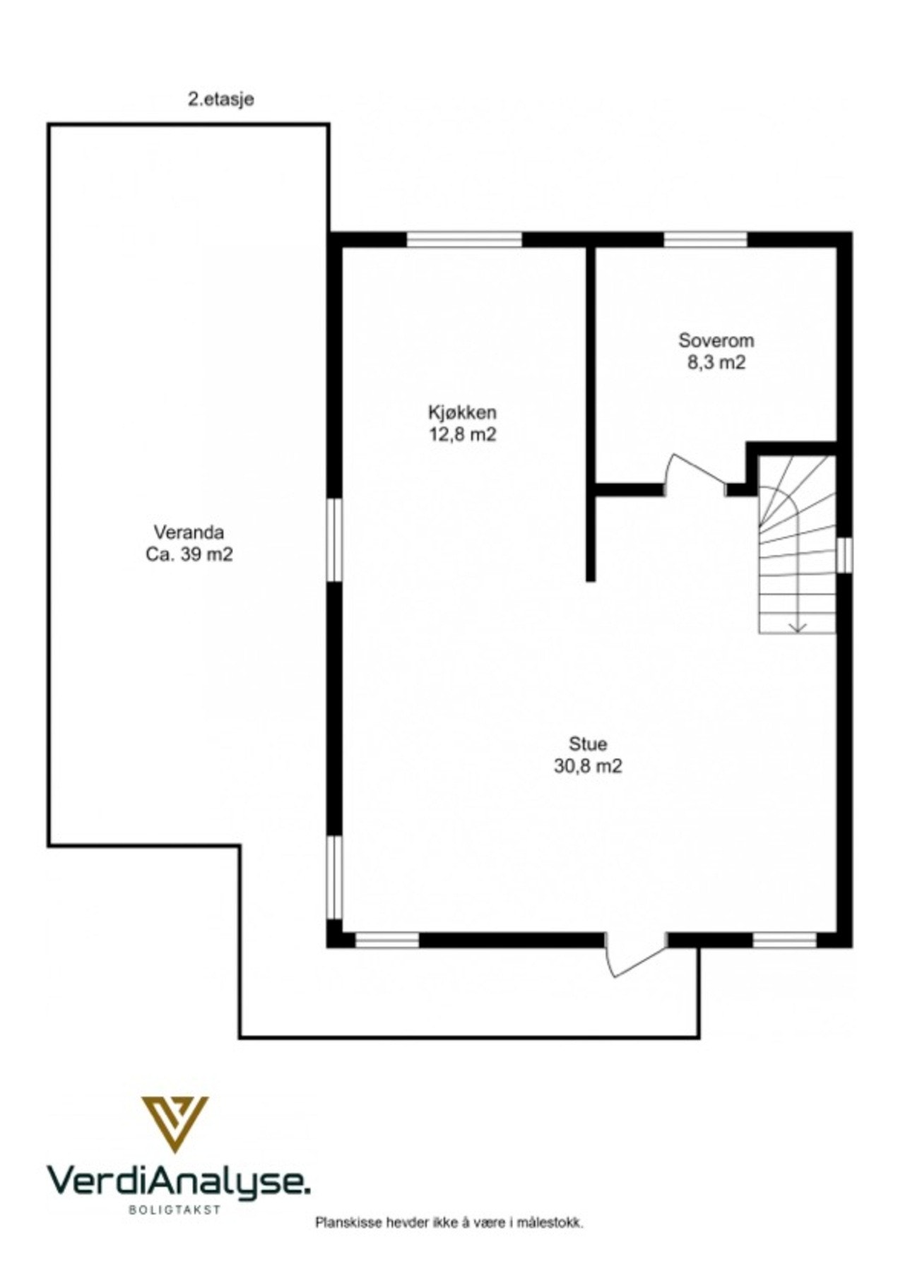
EiendomsMegler 1 ved Albin Leo Bakkemo har gleden av å presentere en velholdt vertikaldelt tomannsbolig fra 2010 med 3 soverom. Boligen ligger svært fint til i et etablert og barnevennlig boligområde på Bjørkmoen. Tomten er pent opparbeidet og byr på solforhold gjennom dagen. Beliggenheten er attraktiv med kort avstand til Oppdal sentrum, hvor man har tilgang til et bredt utvalg av servicetilbud og fasiliteter.
Kvaliteter verdt å nevne:
- Carport og utvendig bod
- Usjenert og romslig veranda på ca. 39 kvm
- Åpen stue- og kjøkkenløsning med mye dagslys
- 3 soverom
- Praktisk vaskerom
Velkommen til hyggelig visning!
EiendomsMegler 1 ved Albin Leo Bakkemo har gleden av å presentere en velholdt vertikaldelt tomannsbolig fra 2010 med 3 soverom. Boligen ligger svært fint til i et etablert og barnevennlig boligområde på Bjørkmoen. Tomten er pent opparbeidet og byr på solforhold gjennom dagen. Beliggenheten er attraktiv med kort avstand til Oppdal sentrum, hvor man har tilgang til et bredt utvalg av servicetilbud og fasiliteter.
Kvaliteter verdt å nevne:
- Carport og utvendig bod
- Usjenert og romslig veranda på ca. 39 kvm
- Åpen stue- og kjøkkenløsning med mye dagslys
- 3 soverom
- Praktisk vaskerom
Velkommen til hyggelig visning!
NB: Knappen for å vise hele beskrivelsen har kun en visuell effekt.
NB: Knappen for å vise hele beskrivelsen har kun en visuell effekt.
Salgsoppgaven beskriver vesentlig og lovpålagt informasjon om eiendommen
Se komplett salgsoppgaveNyttige lenker
Nærområdet
EiendomsMegler 1 Oppdal
Vi loser deg trygt gjennom hele boligsalget
Annonseinformasjon
| FINN-kode | 456235392 |
|---|---|
| Sist endret | 19. mars 2026 13:00 |
| Referanse | 42260017 |
Annonsene kan være mangelfulle i forhold til lovpålagt opplysningsplikt. Før bindende avtale inngås oppfordres interessenter til å innhente komplett informasjon fra meglerforetaket, selger eller utleier.






























