Bildegalleri

PrivatMegleren har gleden av å presentere Silkedalen 114! Foto: Tor Helge Thorsen
Vierli/Silkedalen
Sjelden fritidseiendom med nydelig beliggenhet ved Silkedalen | Innholdsrik, gjennomført og unik hytte | Panoramautsikt
Prisantydning11 900 000 kr
- Omkostninger
- 297 500 kr
- Totalpris
- 12 197 500 kr
- Kommunale avg.
- 17 071 kr per år
- Formuesverdi
- 1 098 075 kr
Nøkkelinfo
- Beliggenhet
- På fjellet
- Boligtype
- Hytte
- Eieform
- Selveier
- Internt bruksareal
- 121 m² (BRA-i)
- Bruksareal
- 174 m²
- Eksternt bruksareal
- 53 m² (BRA-e)
- Tomteareal
- 976 m² (eiet)
- Byggeår
- 2006
- Soverom
- 3
- Rom
- 6
- Sengeplasser
- 8
- Energimerking
Fasiliteter
Balkong/Terrasse
Garasje/P-plass
Fiskemulighet
Offentlig vann/kloakk
Peis/Ildsted
Turterreng
Utsikt
Alpinanlegg
Bilvei frem
Innlagt strøm
Innlagt vann
Lademulighet
Visning
torsdag, 02. april
11:00 – 12:00
Velkommen til visning!
Alle våre visninger har påmelding. På denne måten sikrer vi at megler har god oversikt og tid til å imøtekomme alle interessenter på beste måte.
Kontakt også gjerne megler i forkant av visning dersom du har spørsmål eller dersom du ønsker en privat visning.
Husk å lese komplett salgsoppgave før visning. Bestill komplett, utskriftsvennlig salgsoppgave.
VisningspåmeldingOm boligen
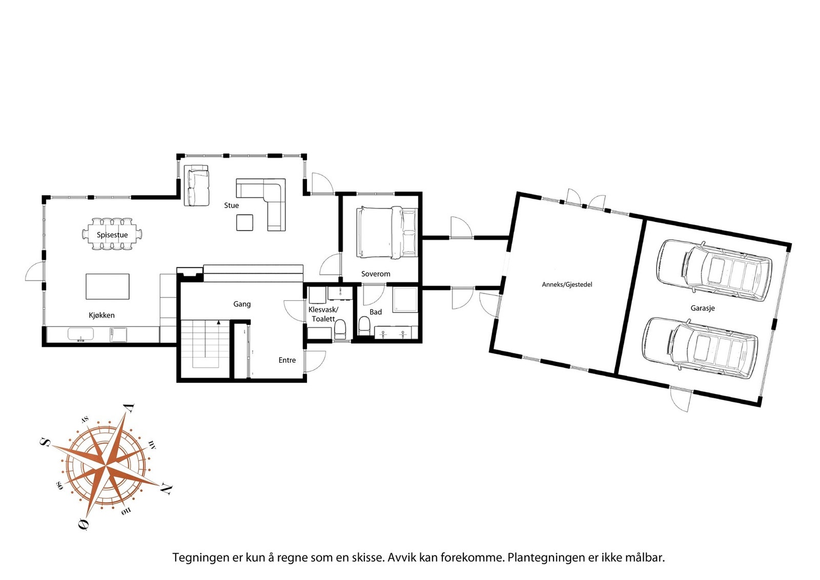
Arkitekttegnet, unik eiendom beliggende i Raulands mest attraktive hytteområde med panoramautsikt over bla. Silkedalen & Hardangervidda. Eiendommen ligger i en blindveg uten gjennomkjøringstrafikk, øverst mot Silkedalen. Svært gode solforhold og rett ved preparerte langrennsløyper. Eiendommen kan blant annet by på: Romslig entré med garderobeskap, stor stue og kjøkken i delvis åpen løsning. Kjøkkeninnredning fra Sigdal, Jøtul peisovn plassert sentralt mellom stue og kjøkken. 2 flislagte baderom, badstue og vaskerom med toalett. 3 gode soverom + hems. Hyggelig og romslig loftstue. I tillegg har hytta et stort uinnredet anneks som kan innredes etter eget ønske. Garasje med plass til 2 biler. Eiendommen har forøvrig svært godt med oppbevaringsplass både i hytte og garasje. Ellers kan man nevne kvaliteter som solskjerming, eikegulv, varmekabler i hele 1.etg., integrerte hvitevarer fra AEG, Gaggenau og Siemens, energistyring fra Sensio, nytt alarm-/brannvarslingssystem, og elbil-lader.
NB: Knappen for å vise hele beskrivelsen har kun en visuell effekt.
NB: Knappen for å vise hele beskrivelsen har kun en visuell effekt.
Salgsoppgaven beskriver vesentlig og lovpålagt informasjon om eiendommen
Se komplett salgsoppgaveNyttige lenker
Nærområdet
PrivatMegleren Telemark
Kun det beste på dine vegne
Annonseinformasjon
| FINN-kode | 456166487 |
|---|---|
| Sist endret | 24. mars 2026 08:16 |
| Referanse | 201260020 |
Annonsene kan være mangelfulle i forhold til lovpålagt opplysningsplikt. Før bindende avtale inngås oppfordres interessenter til å innhente komplett informasjon fra meglerforetaket, selger eller utleier.




























































