Bildegalleri

EiendomsMegler1 v/Mette Krokås Selander presenterer Bratsberggata 50 - Praktisk og pent oppusset enebolig på Bratsberg! Foto: A7 Media.
Bratsberg
Enebolig i populært område | Nytt bad | Carport | Mulighet for tilbygg | Solrikt og barnevennlig
Prisantydning3 750 000 kr
Nøkkelinfo
- Boligtype
- Enebolig
- Eieform
- Eier (Selveier)
- Soverom
- 2
- Internt bruksareal
- 117 m² (BRA-i)
- Bruksareal
- 127 m²
- Eksternt bruksareal
- 10 m² (BRA-e)
- Balkong/Terrasse
- 7 m² (TBA)
- Byggeår
- 1930
- Tomteareal
- 568 m² (eiet)
Fasiliteter
Balkong/Terrasse
Barnevennlig
Garasje/P-plass
Hage
Rolig
Sentralt
Utsikt
Turterreng
Visning
onsdag, 25. mars
18:00 – 19:00
Ønsker du å delta på visning så ber vi om at du melder deg på slik at vi vet at du kommer og slik at vi kan orientere deg om bud. Visninger hvor det ikke er påmeldte på forhånd vil ikke bli avholdt.
VisningspåmeldingOm boligen
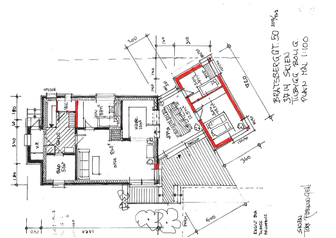
Praktisk og pent oppusset enebolig med attraktiv beliggenhet, i et rolig og godt etablert boligområde på Bratsberg. Området er barnevennlig og sentrumsnært, med kort vei til det meste man har behov for i hverdagen! Romslig og pent opparbeidet tomt, med hyggelige uteplasser, gode solforhold og frittstående carport fra ca. 2023.
Boligen innehar en god planløsning med alt på ett plan, samt kjeller med innredet soverom (ikke godkjent). Innvendige overflater er pusset opp, og boligen er oppgradert med nytt bad i 2026. El-anlegget er oppgradert og det er satt inn noen nye vinduer i 2026. Det er mulighet for å utvide boligen, da kommunen har gitt tillatelse til oppføring av tilbygg på nærmere bestemte vilkår den 05.01.2026.
Boligen innehar en god planløsning med alt på ett plan, samt kjeller med innredet soverom (ikke godkjent). Innvendige overflater er pusset opp, og boligen er oppgradert med nytt bad i 2026. El-anlegget er oppgradert og det er satt inn noen nye vinduer i 2026. Det er mulighet for å utvide boligen, da kommunen har gitt tillatelse til oppføring av tilbygg på nærmere bestemte vilkår den 05.01.2026.
NB: Knappen for å vise hele beskrivelsen har kun en visuell effekt.
NB: Knappen for å vise hele beskrivelsen har kun en visuell effekt.
Salgsoppgaven beskriver vesentlig og lovpålagt informasjon om eiendommen
Se komplett salgsoppgaveNyttige lenker
Nærområdet
EiendomsMegler 1 Porsgrunn
et foretak i SpareBank 1 Sør-Norge konsernet
Annonseinformasjon
| FINN-kode | 456150051 |
|---|---|
| Sist endret | 18. mars 2026 18:55 |
| Referanse | 1412260065 |
Annonsene kan være mangelfulle i forhold til lovpålagt opplysningsplikt. Før bindende avtale inngås oppfordres interessenter til å innhente komplett informasjon fra meglerforetaket, selger eller utleier.






























