Bildegalleri

Velkommen til Vistestølen 21! Foto: Dirdal Foto v/Stian Dirdal.
Randaberg/Viste
Meget stor og pen enebolig m/5 soverom og 2 stuer | Vannbåren gulvvarme og integrert garasje | Barnevennlig.
Prisantydning8 450 000 kr
Nøkkelinfo
- Boligtype
- Enebolig
- Eieform
- Eier (Selveier)
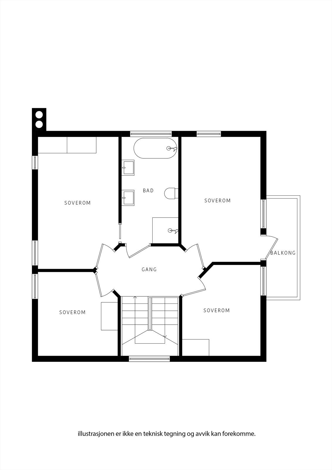
- Soverom
- 5
- Internt bruksareal
- 251 m² (BRA-i)
- Bruksareal
- 275 m²
- Eksternt bruksareal
- 24 m² (BRA-e)
- Balkong/Terrasse
- 92 m² (TBA)
- Byggeår
- 2004
- Energimerking
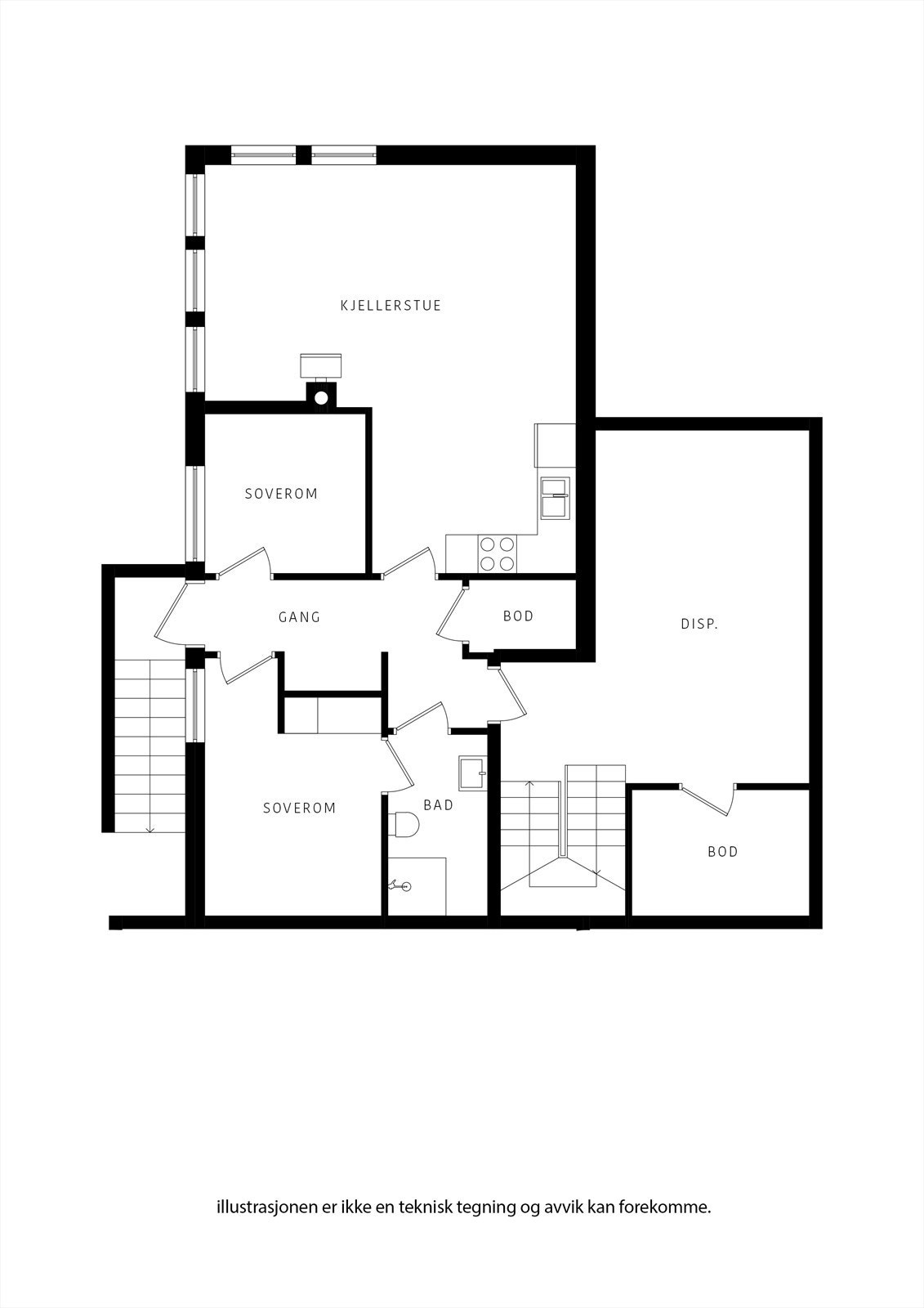
- Rom
- 7
- Tomteareal
- 459 m² (eiet)
Fasiliteter
Balkong/Terrasse
Barnevennlig
Bredbåndstilknytning
Garasje/P-plass
Hage
Offentlig vann/kloakk
Parkett
Peis/Ildsted
Rolig
Sentralt
Turterreng
Lademulighet
Visning
onsdag, 25. mars
16:30 – 17:30
Ønsker du å delta på visningen ber vi deg melde deg på slik at vi vet at du kommer. Da kan vi bistå alle best mulig og gi deg tiden du trenger på visningen. Kontakt gjerne megler før visning hvis du har spørsmål. Visningen avholdes bare dersom det er påmeldte. Hvis det ikke er oppsatt visningstidspunkt eller tidspunkt ikke passer, kontakt megler.
VisningspåmeldingOm boligen
Velkommen til Vistestølen 21! En svært innholdsrik og moderne enebolig med flere terrasser, integrert garasje og familievennlig beliggenhet.
Dette er en selveierbolig fra 2004 hvor du bor med kort vei til barnehager, skoler og butikker. Boligen har en åpen løsning i første etasje med et moderne kjøkken og direkte utgang til en stor terrasse. Komforten sikres med vannbåren gulvvarme med ny pumpe fra 2023, samt en stemningsfull vedovn i stuen. Gårdsrommet er pent opparbeidet med belegningsstein.
Høydepunkter:
Flott nyere, kvalitets kjøkken, og oppusset areal stue og kjøkken til moderne preg.
Utleiemulighet ikke byggegodkjent.
Totalt 92 m² med terrasser og balkong
Integrert garasje med automatisk portåpner
Velkommen til visning!
Dette er en selveierbolig fra 2004 hvor du bor med kort vei til barnehager, skoler og butikker. Boligen har en åpen løsning i første etasje med et moderne kjøkken og direkte utgang til en stor terrasse. Komforten sikres med vannbåren gulvvarme med ny pumpe fra 2023, samt en stemningsfull vedovn i stuen. Gårdsrommet er pent opparbeidet med belegningsstein.
Høydepunkter:
Flott nyere, kvalitets kjøkken, og oppusset areal stue og kjøkken til moderne preg.
Utleiemulighet ikke byggegodkjent.
Totalt 92 m² med terrasser og balkong
Integrert garasje med automatisk portåpner
Velkommen til visning!
NB: Knappen for å vise hele beskrivelsen har kun en visuell effekt.
NB: Knappen for å vise hele beskrivelsen har kun en visuell effekt.
Salgsoppgaven beskriver vesentlig og lovpålagt informasjon om eiendommen
Se komplett salgsoppgaveNyttige lenker
Nærområdet
EiendomsMegler 1 Randaberg
En del av Sparebank 1 Sør-Norge
Annonseinformasjon
| FINN-kode | 456138957 |
|---|---|
| Sist endret | 18. mars 2026 15:10 |
| Referanse | 2208260016 |
Annonsene kan være mangelfulle i forhold til lovpålagt opplysningsplikt. Før bindende avtale inngås oppfordres interessenter til å innhente komplett informasjon fra meglerforetaket, selger eller utleier.




























































