Bildegalleri

Velkommen til Knapphusvegen 4! - Presentert av eiendomsmegler Anders G. Lindø Foto: Vestbris AS
Flott enebolig med garasje og herlig utsiktsbeliggenhet på Knapphus
Prisantydning3 450 000 kr
Nøkkelinfo
- Boligtype
- Enebolig
- Eieform
- Eier (Selveier)
- Soverom
- 4
- Internt bruksareal
- 201 m² (BRA-i)
- Bruksareal
- 240 m²
- Eksternt bruksareal
- 39 m² (BRA-e)
- Balkong/Terrasse
- 50 m² (TBA)
- Byggeår
- 1975
- Energimerking
- Tomteareal
- 1 627 m² (eiet)
Fasiliteter
Balkong/Terrasse
Barnevennlig
Garasje/P-plass
Hage
Offentlig vann/kloakk
Parkett
Peis/Ildsted
Rolig
Utsikt
Turterreng
Visning
torsdag, 26. mars
16:30 – 17:15
Ønsker du å delta på visningen ber vi deg melde deg på slik at vi vet at du kommer. Da kan vi bistå alle best mulig og gi deg tiden du trenger på visningen. Kontakt gjerne megler før visning hvis du har spørsmål. Visningen avholdes bare dersom det er påmeldte. Hvis det ikke er oppsatt visningstidspunkt eller tidspunkt ikke passer, kontakt megler.
VisningspåmeldingOm boligen
Velkommen til Knapphusvegen 4!
Innholdsrik og velholdt enebolig med særdeles kjekk og barnevennlig beliggenhet på Knapphus.
Boligen ligger fint og solrikt til nokså direkte mot sør. Flott utsikt mot Nedre Vats som en neppe går lei av.
Stort tomt i overkant av 1,6 mål og asfaltert gårdsrom med gode parkeringsmuligheter for alle typer kjøretøy. Belegningsstein i parti foran garasje. Forseggjort pergola i tilknytning garasje.
Boligen er innredet over to plan i tillegg til kaldloft/lagringsloft og inneholder:
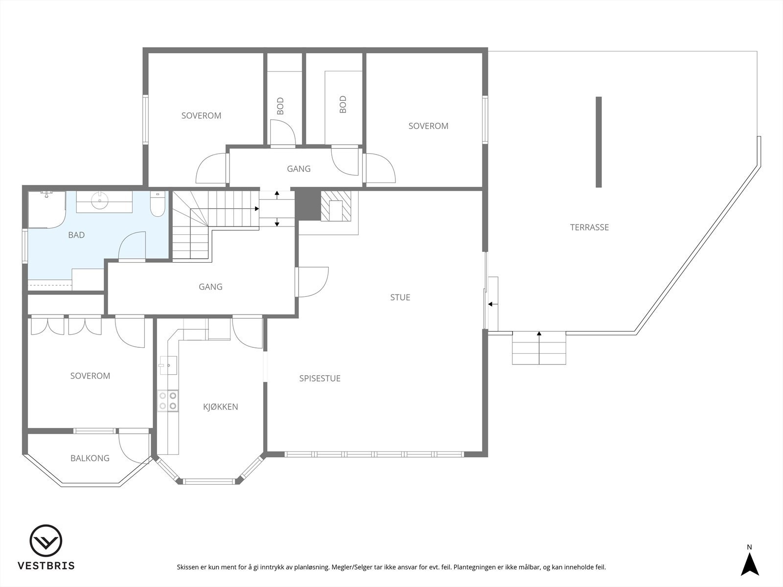
Hovedplan - gang, stue, kjøkken, bad, tre soverom, kjølerom og bod (BRA-i)
Underetasje - vindfang, gang, kjellerstue, kontor, bad, soverom, vaskerom og bod (BRA-i)
Flott bad fra ca. 2014 - totalt fire soverom.
Velkommen til visning - husk påmelding!
Innholdsrik og velholdt enebolig med særdeles kjekk og barnevennlig beliggenhet på Knapphus.
Boligen ligger fint og solrikt til nokså direkte mot sør. Flott utsikt mot Nedre Vats som en neppe går lei av.
Stort tomt i overkant av 1,6 mål og asfaltert gårdsrom med gode parkeringsmuligheter for alle typer kjøretøy. Belegningsstein i parti foran garasje. Forseggjort pergola i tilknytning garasje.
Boligen er innredet over to plan i tillegg til kaldloft/lagringsloft og inneholder:
Hovedplan - gang, stue, kjøkken, bad, tre soverom, kjølerom og bod (BRA-i)
Underetasje - vindfang, gang, kjellerstue, kontor, bad, soverom, vaskerom og bod (BRA-i)
Flott bad fra ca. 2014 - totalt fire soverom.
Velkommen til visning - husk påmelding!
NB: Knappen for å vise hele beskrivelsen har kun en visuell effekt.
NB: Knappen for å vise hele beskrivelsen har kun en visuell effekt.
Salgsoppgaven beskriver vesentlig og lovpålagt informasjon om eiendommen
Se komplett salgsoppgaveNyttige lenker
Nærområdet
Eiendomsmegler 1 avd Tysvær
En del av Sparebank 1 Sør-Norge
Annonseinformasjon
| FINN-kode | 456134184 |
|---|---|
| Sist endret | 18. mars 2026 14:38 |
| Referanse | 2503260007 |
Annonsene kan være mangelfulle i forhold til lovpålagt opplysningsplikt. Før bindende avtale inngås oppfordres interessenter til å innhente komplett informasjon fra meglerforetaket, selger eller utleier.


















































