Bildegalleri

Trivelig rekkehus på ett plan med terrasse og utsyn mot skog!
Prisantydning3 100 000 kr
Nøkkelinfo
- Boligtype
- Rekkehus
- Eieform
- Eier (Selveier)
- Soverom
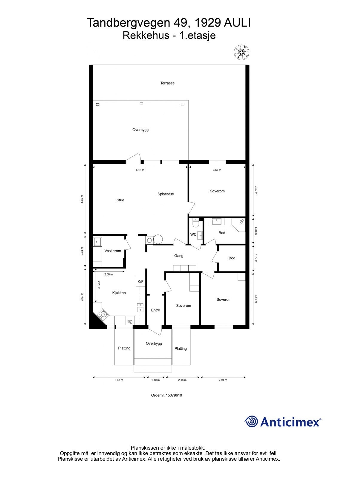
- 3
- Internt bruksareal
- 105 m² (BRA-i)
- Bruksareal
- 131 m²
- Eksternt bruksareal
- 26 m² (BRA-e)
- Balkong/Terrasse
- 62 m² (TBA)
- Etasje
- 1
- Byggeår
- 1973
- Energimerking
- Rom
- 4
- Tomteareal
- 355 m² (eiet)
Fasiliteter
Balkong/Terrasse
Barnevennlig
Bredbåndstilknytning
Garasje/P-plass
Hage
Kabel-TV
Peis/Ildsted
Rolig
Utsikt
Turterreng
Visning
torsdag, 26. mars
17:00 – 18:00
For å delta på visning, ber vi om at du melder deg på. Da sikrer vi at du får nødvendig informasjon og at det er satt av tilstrekkelig med tid. Kontakt megler dersom annet tidspunkt ønskes. Husk å lese salgsoppgaven før visningen, så du stiller forberedt.
Ønsker du kun å bli holdt orientert, kan du fra eiendommens hjemmeside få varsel om solgtpris, eller kontakte megler.
VisningspåmeldingOm boligen
Velkommen til Tandbergvegen 49!
En innbydende og velholdt rekkehusbolig med en praktisk planløsning alt samlet på ett plan. Boligen ligger pent til på Aulifeltet med hyggelig utsyn mot omkringliggende skogarealer, som gir en rolig og naturnær atmosfære.
Eiendommen har en attraktiv beliggenhet med kort avstand til skoler, barnehager, idrettsanlegg, flotte turområder, kollektivtilbud og kjøpesenter.
HØYDEPUNKTER:
- Romslig terrasse med utsyn mot skogarealer
- Tre gode soverom
- Egen garasjeplass med tilhørende bod
- Peis i stuen som skaper en lun og hyggelig atmosfære
- Praktisk planløsning med alt på ett plan
- Velholdt og romslig bolig
En innbydende og velholdt rekkehusbolig med en praktisk planløsning alt samlet på ett plan. Boligen ligger pent til på Aulifeltet med hyggelig utsyn mot omkringliggende skogarealer, som gir en rolig og naturnær atmosfære.
Eiendommen har en attraktiv beliggenhet med kort avstand til skoler, barnehager, idrettsanlegg, flotte turområder, kollektivtilbud og kjøpesenter.
HØYDEPUNKTER:
- Romslig terrasse med utsyn mot skogarealer
- Tre gode soverom
- Egen garasjeplass med tilhørende bod
- Peis i stuen som skaper en lun og hyggelig atmosfære
- Praktisk planløsning med alt på ett plan
- Velholdt og romslig bolig
NB: Knappen for å vise hele beskrivelsen har kun en visuell effekt.
NB: Knappen for å vise hele beskrivelsen har kun en visuell effekt.
Salgsoppgaven beskriver vesentlig og lovpålagt informasjon om eiendommen
Se komplett salgsoppgaveNyttige lenker
Nærområdet
Krogsveen Årnes
Verdien av en god megler.
Annonseinformasjon
| FINN-kode | 456133855 |
|---|---|
| Sist endret | 19. mars 2026 07:39 |
| Referanse | KR24.2615 |
Annonsene kan være mangelfulle i forhold til lovpålagt opplysningsplikt. Før bindende avtale inngås oppfordres interessenter til å innhente komplett informasjon fra meglerforetaket, selger eller utleier.























