Bildegalleri

Velkommen til Julianus holms veg 22, en flott 3-roms selveierleilighet med sentral beliggenhet på Lade.
Lade
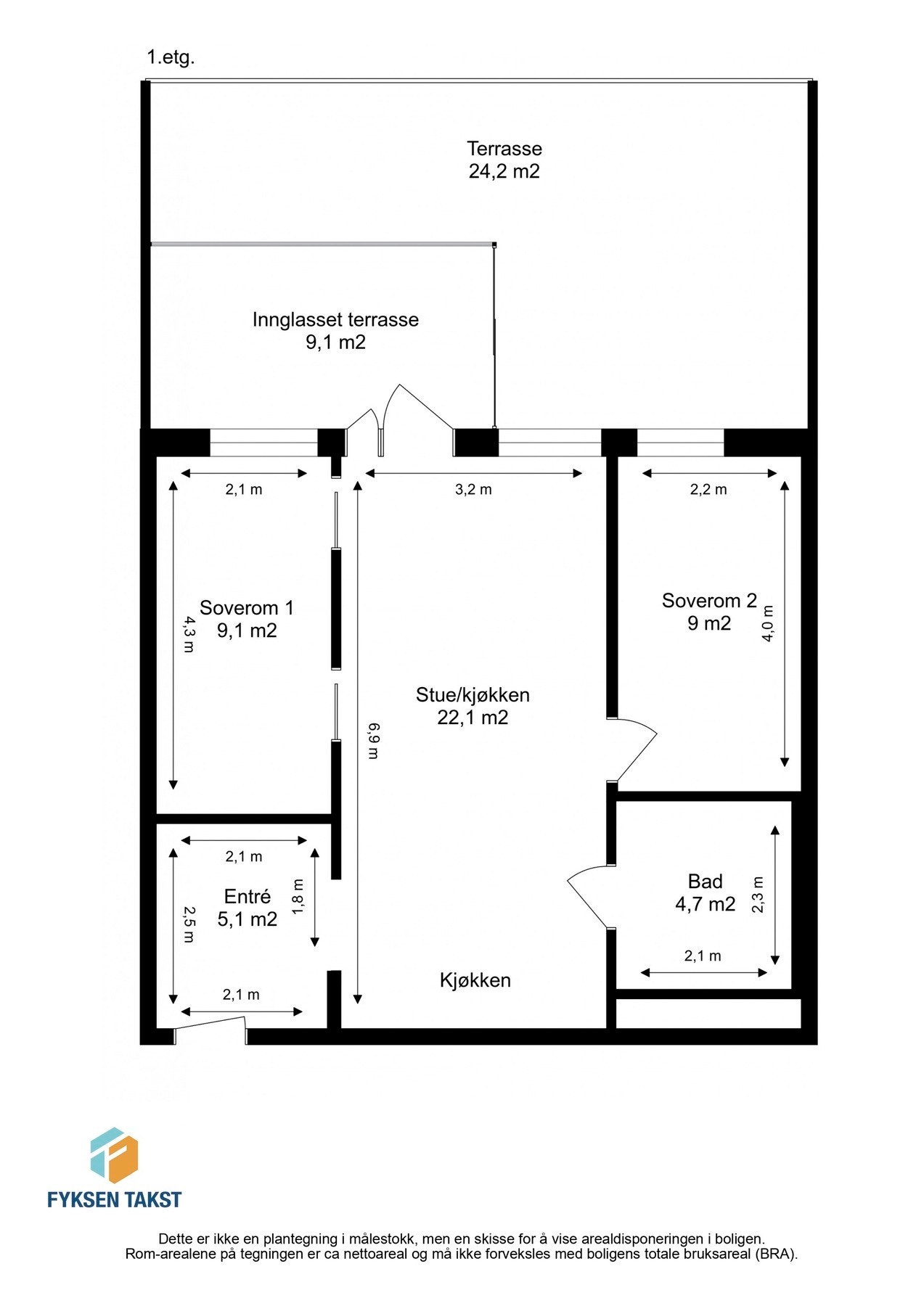
3-roms leilighet fra 2017 med god planløsning og standard- Egen P-plass- Fjernvarme- 33 kvm terrasse- TG0/1 på alt!
Prisantydning3 990 000 kr
Nøkkelinfo
- Boligtype
- Leilighet
- Eieform
- Eier (Selveier)
- Soverom
- 2
- Internt bruksareal
- 54 m² (BRA-i)
- Bruksareal
- 72 m²
- Eksternt bruksareal
- 8 m² (BRA-e)
- Innglasset balkong
- 10 m² (BRA-b)
- Balkong/Terrasse
- 24 m² (TBA)
- Etasje
- 1
- Byggeår
- 2017
- Energimerking
- B - Lysegrønn
- Rom
- 3
- Tomteareal
- 1 580 m² (eiet)
Fasiliteter
Balkong/Terrasse
Garasje/P-plass
Kabel-TV
Heis
Offentlig vann/kloakk
Parkett
Turterreng
Sentralt
Bredbåndstilknytning
Moderne
Rolig
Balansert ventilasjon
Visning
torsdag, 26. mars
15:30 – 16:30
Våre visninger har påmelding. Dette gjør vi for å kunne yte bedre service for våre kunder. Verdifullt for boligkjøper og for oss. Vi anbefaler at salgsoppgaven lastes ned digitalt før visning, og ring oss gjerne på forhånd for spørsmål om boligen. Passer ikke angitt tidspunkt, ta kontakt så finner vi en løsning. Skulle det mot formodning ikke være påmeldte til angitt visningstidspunkt vil ikke visning bli gjennomført.
Om boligen
Velkommen til Julianus Holms veg 22, en pen og praktisk 3-roms leilighet med god standard og sentral beliggenhet.
Boligen sto ferdig i 2017 og har med det en moderne standard med fasiliteter som fjernvarme og balansert ventilasjon. Boligen har også bod og parkering i sameiets kjeller, som kan nåes med heisadkomst. Fra stuen har du utgang til en meget romslig terrasse på hele 33 kvm, hvorav 9,1 er innglasset og kan brukes vinter som sommer.
Her har du muligheten til å sikre deg en moderne og innflytningsklar bolig som har nærhet til alt. Du har så mye som 3 kjøpesentre innen gangavstand, og nærmeste dagligvarebutikk bare et steinkast unna. I tillegg har du bare noen få minutter gange til både Ladestien og Ringve botaniske hage.
Kort oppsummert:
- TG0/1 på alle punkter i takstrapporten.
- Romslig og delvis innglasset terrasse vendt mot vest.
- Moderne fasiliteter som fjernvarme og balansert ventilasjon.
- Parkering i oppvarmet p-kjeller.
- Romslig bod i byggets kjeller.
- Nært alt!
Boligen sto ferdig i 2017 og har med det en moderne standard med fasiliteter som fjernvarme og balansert ventilasjon. Boligen har også bod og parkering i sameiets kjeller, som kan nåes med heisadkomst. Fra stuen har du utgang til en meget romslig terrasse på hele 33 kvm, hvorav 9,1 er innglasset og kan brukes vinter som sommer.
Her har du muligheten til å sikre deg en moderne og innflytningsklar bolig som har nærhet til alt. Du har så mye som 3 kjøpesentre innen gangavstand, og nærmeste dagligvarebutikk bare et steinkast unna. I tillegg har du bare noen få minutter gange til både Ladestien og Ringve botaniske hage.
Kort oppsummert:
- TG0/1 på alle punkter i takstrapporten.
- Romslig og delvis innglasset terrasse vendt mot vest.
- Moderne fasiliteter som fjernvarme og balansert ventilasjon.
- Parkering i oppvarmet p-kjeller.
- Romslig bod i byggets kjeller.
- Nært alt!
NB: Knappen for å vise hele beskrivelsen har kun en visuell effekt.
NB: Knappen for å vise hele beskrivelsen har kun en visuell effekt.
Salgsoppgaven beskriver vesentlig og lovpålagt informasjon om eiendommen
Se komplett salgsoppgaveNyttige lenker
Nærområdet
EiendomsMegler 1 Lade og Lilleby
Vi loser deg trygt gjennom hele boligsalget
Annonseinformasjon
| FINN-kode | 456130978 |
|---|---|
| Sist endret | 19. mars 2026 10:37 |
| Referanse | 36260042 |
Annonsene kan være mangelfulle i forhold til lovpålagt opplysningsplikt. Før bindende avtale inngås oppfordres interessenter til å innhente komplett informasjon fra meglerforetaket, selger eller utleier.







































