Bildegalleri

- Thea Edland ved Nordvik Bolig har gleden av å presentere Marius Skadsems vei 73. Fotograf: Jan Rune Berge -
Smeaheia
Enebolig som grenser til friområde. Barnevennlig og ettertraktet beliggenhet. Solrike uteområder og lettstelt hage.
Prisantydning5 800 000 kr
Nøkkelinfo
- Boligtype
- Enebolig
- Eieform
- Eier (Selveier)
- Soverom
- 2
- Internt bruksareal
- 220 m² (BRA-i)
- Bruksareal
- 233 m²
- Innglasset balkong
- 13 m² (BRA-b)
- Balkong/Terrasse
- 10 m² (TBA)
- Byggeår
- 1979
- Energimerking
- Rom
- 6
- Tomteareal
- 491 m² (eiet)
Fasiliteter
Alarm
Balkong/Terrasse
Barnevennlig
Bredbåndstilknytning
Garasje/P-plass
Hage
Kjæledyr tillatt
Ingen gjenboere
Kabel-TV
Offentlig vann/kloakk
Parkett
Peis/Ildsted
Rolig
Sentralt
Lademulighet
Om boligen
Boligen går over tre plan og har en romslig planløsning med mange innredningsmuligheter. Stuen er av god størrelse med flere soner for sittegrupper og spisebord. Kjøkkenet ligger tilbaketrukket og er oppusset i ca. 2005. Solrike uteområder med deilig vinterhage og lettstelt hage. Eiendommen ligger innerst på feltet og grenser til friområde, som betyr lite trafikk. Det er også fine turstier til både barnehager, skoler og fritidsaktiviteter i nærområdet, som finnes innen få minutters gangavstand.
- Stort gårdsrom med elbillader
- Solrike uteområder med terrasse og vinterhage fra 2020
- Lettstelt hage
- Opprinnelig tre soverom i 1. etg
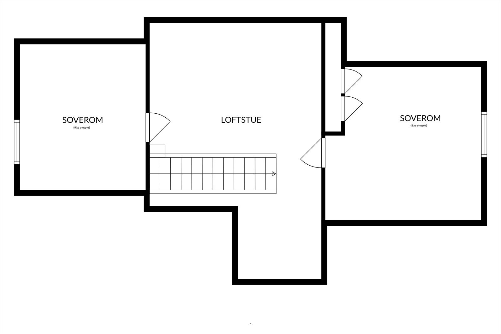
- To soverom på loft (ikke byggemeldt)
- Meget barnevennlig og ettertraktet beliggenhet
- Enkel adkomst til E39 m/ forbindelse til Forus, Stavanger og Sandnes
- Stort gårdsrom med elbillader
- Solrike uteområder med terrasse og vinterhage fra 2020
- Lettstelt hage
- Opprinnelig tre soverom i 1. etg
- To soverom på loft (ikke byggemeldt)
- Meget barnevennlig og ettertraktet beliggenhet
- Enkel adkomst til E39 m/ forbindelse til Forus, Stavanger og Sandnes
NB: Knappen for å vise hele beskrivelsen har kun en visuell effekt.
NB: Knappen for å vise hele beskrivelsen har kun en visuell effekt.
Salgsoppgaven beskriver vesentlig og lovpålagt informasjon om eiendommen
Se komplett salgsoppgaveNyttige lenker
Nærområdet
Nordvik Stavanger
Vi vet hva det er verdt
Annonseinformasjon
| FINN-kode | 456126651 |
|---|---|
| Sist endret | 18. mars 2026 18:09 |
| Referanse | 43-0011/26 |
Annonsene kan være mangelfulle i forhold til lovpålagt opplysningsplikt. Før bindende avtale inngås oppfordres interessenter til å innhente komplett informasjon fra meglerforetaket, selger eller utleier.


















































