Bildegalleri

Velkommen til Pilestredet park 20, presentert av Susanna Hjelset ved Nordvik Bygdøy Allè. Foto: Bente Elvebredd
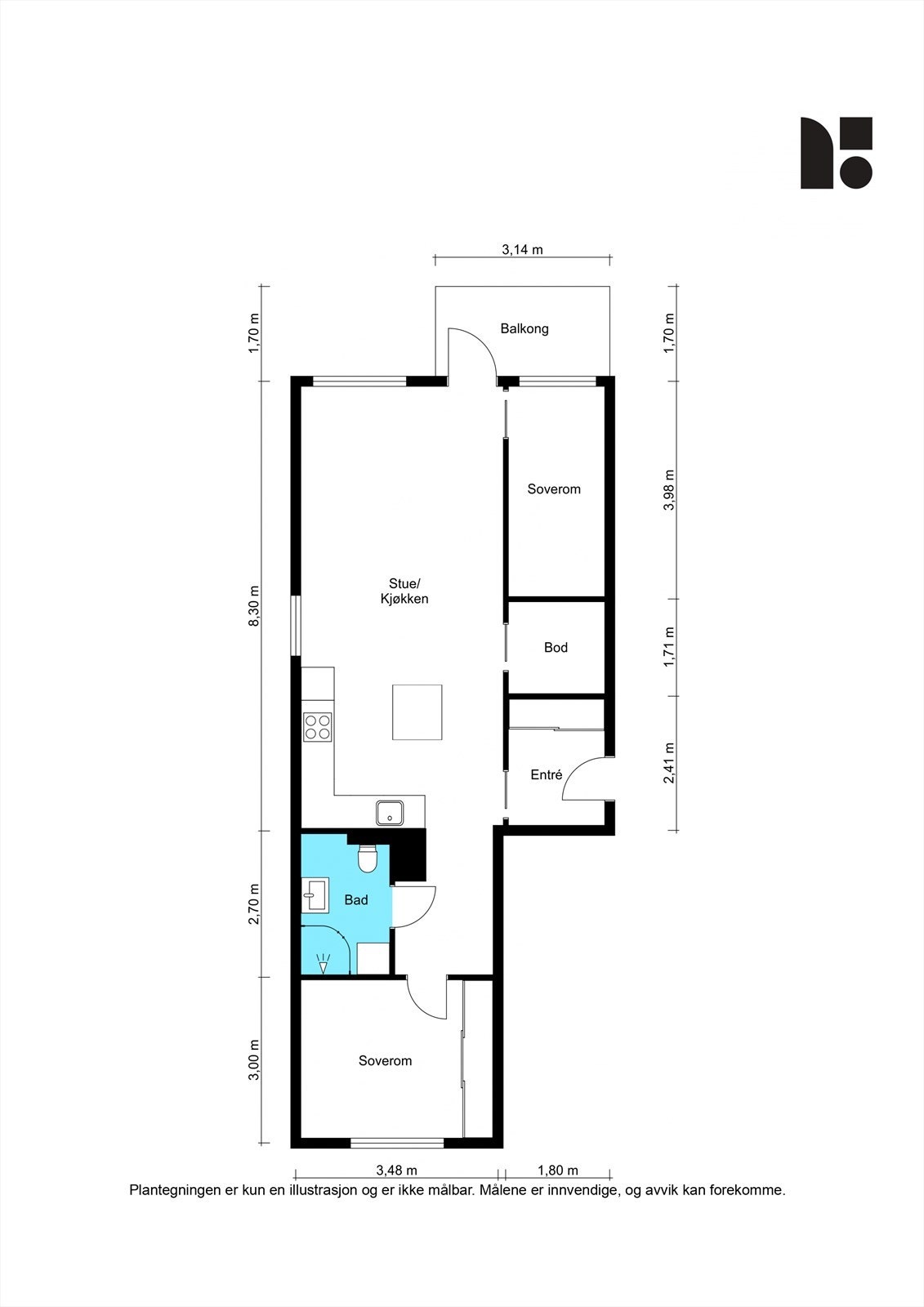
Lys og gjennomgående 3-roms hjørneleilighet med balkong, heis og garasjeplass m/lader-A konto fjernvarme inkl.-Sentralt
Prisantydning7 290 000 kr
Nøkkelinfo
- Boligtype
- Leilighet
- Eieform
- Eier (Selveier)
- Soverom
- 2
- Internt bruksareal
- 65 m² (BRA-i)
- Bruksareal
- 69 m²
- Eksternt bruksareal
- 4 m² (BRA-e)
- Balkong/Terrasse
- 5 m² (TBA)
- Etasje
- 2
- Byggeår
- 2006
- Energimerking
- Rom
- 3
- Tomteareal
- 1 132 m² (eiet)
Fasiliteter
Balkong/Terrasse
Barnevennlig
Bredbåndstilknytning
Garasje/P-plass
Heis
Kjæledyr tillatt
Offentlig vann/kloakk
Parkett
Rolig
Sentralt
Vaktmester-/vektertjeneste
Turterreng
Lademulighet
Om boligen
Velkommen til en lys og gjennomgående hjørneleilighet med heisadkomst, beliggende i et attraktivt og rolig område i Pilestredet Park. Her bor du sentralt med kort vei til butikker, hyggelige handlegater, parker og gode kollektivmuligheter, samtidig som leiligheten har store vindusflater som slipper inn rikelig med naturlig lys.
Åpen stue/kjøkkenløsning som skaper et sosialt og romslig oppholdsrom
Veggflater i lyse farger som gir en behagelig atmosfære
To gode soverom med plass til seng og oppbevaring
Solrik overbygget balkong vendt mot rolig bakgård
Flislagt baderom med opplegg for vaskemaskin
A konto fjernvarme inkludert i felleskostnadene
Garasjeplass med lader i felles garasjeanlegg
Gode oppbevaringsmuligheter
Stor og praktisk bod i kjeller
Noe behov for oppgradering
Åpen stue/kjøkkenløsning som skaper et sosialt og romslig oppholdsrom
Veggflater i lyse farger som gir en behagelig atmosfære
To gode soverom med plass til seng og oppbevaring
Solrik overbygget balkong vendt mot rolig bakgård
Flislagt baderom med opplegg for vaskemaskin
A konto fjernvarme inkludert i felleskostnadene
Garasjeplass med lader i felles garasjeanlegg
Gode oppbevaringsmuligheter
Stor og praktisk bod i kjeller
Noe behov for oppgradering
NB: Knappen for å vise hele beskrivelsen har kun en visuell effekt.
NB: Knappen for å vise hele beskrivelsen har kun en visuell effekt.
Salgsoppgaven beskriver vesentlig og lovpålagt informasjon om eiendommen
Se komplett salgsoppgaveNyttige lenker
Nærområdet
Nordvik Bygdøy Allé
Annonseinformasjon
| FINN-kode | 456120029 |
|---|---|
| Sist endret | 19. mars 2026 08:01 |
| Referanse | 13-0052/26 |
Annonsene kan være mangelfulle i forhold til lovpålagt opplysningsplikt. Før bindende avtale inngås oppfordres interessenter til å innhente komplett informasjon fra meglerforetaket, selger eller utleier.






























