Bildegalleri

Av hensyn til nåværende leietaker er det benyttet eksempelbilder i annonsen. Bildene viser tilsvarende bolig med identisk planløsning og standard, og gir et korrekt inntrykk av rom inndeling og bruksmuligheter.
Moderne 2-roms selveierleilighet i 3 etasje med heis, balkong, garasje m/elbillader. Nærhet til marka. 25 min unna Oslo.
Nøkkelinfo
- Boligtype
- Leilighet
- Eieform
- Eier (Selveier)
- Soverom
- 1
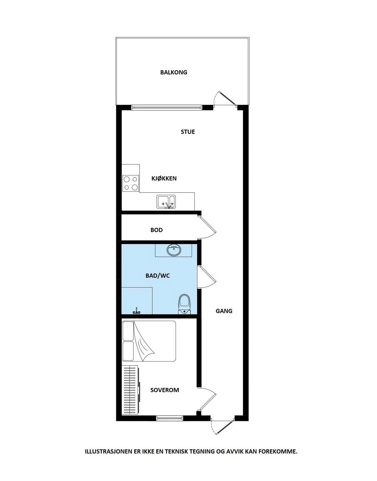
- Internt bruksareal
- 43 m² (BRA-i)
- Bruksareal
- 57 m²
- Eksternt bruksareal
- 5 m² (BRA-e)
- Innglasset balkong
- 9 m² (BRA-b)
- Etasje
- 3
- Byggeår
- 2018
- Tomteareal
- 3 410 m² (eiet)
Fasiliteter
Om boligen
Velkommen til Laboratorieveien 42 - en moderne 2-roms i 3 etasje beliggende på populære Kruttverket i Nittedal. Oslo S ligger kun ca 25 min unna. Nærhet til buss og tog.
Tilstandsrapport alt TG1!
Er du på jakt etter din første bolig eller ønsker å investere i et utleieobjekt er dette en perfekt leilighet. Leiligheten var ny i 2017 og holder med andre ord en god standard som gjør at du kan flytte rett inn. Moderne fargevalg, nytt kjøkken og et pent bad. Innebod og sportsbod. Tilhørende garasjeplass med elbillader og heis opp til hvert plan. Trådløs tilgang til oppgangsdør og garasjeport via app.
Kruttverket er kjent for sitt unike bomiljø med umiddelbar nærhet til marka, flotte tur- og skiløyper året rundt og et trygt, rolig nærmiljø. Nittedal kombinerer natur og bynær beliggenhet, med gode kollektivforbindelser, servicetilbud og kort reisevei til Oslo.
Visning: Ta kontakt for privatvisning dersom dato ikke skulle passe.
Høydepunkter:
Heis
Tilgang til hoveddør og garasjeport via app Unloc
Garasjeplass m/elbillader og gjesteparkering
Rolig og barnevennlig område
Kabel-TV
Offentlig vann og avløp
Varme inkl. i felleskostnadene
Fjernvarme med radiator i alle oppholdsrom, samt gulvvarme på bad
Balansert ventilasjonsanlegg med varmegjenvinning
Lave bokostnader
Offentlig kommunikasjon i umiddelbar nærhet
Bod i leiligheten på ca. 2 kvm
Kjellerbod på ca. 5 kvm
Annet
Av hensyn til nåværende leietaker er det benyttet eksempelbilder i annonsen. Bildene viser tilsvarende bolig med identisk planløsning og standard, og gir et korrekt inntrykk av rom inndeling og bruksmuligheter.
Det tas forbehold om eventuelle avvik/formelle feil i annonsen, herunder alminnelig bruksslitasje og lignende. Interessenter oppfordres derfor til å delta på visning for en fullstending vurdering av boligen.
Omkostninger
10 900 kr (HELP boligkjøperforsikring (valgfritt))
79 750 kr (Dokumentavgift)
545 kr (Tinglysing av pantedokument)
545 kr (Tinglysing av skjøte)
---
91 740 kr (Omkostninger totalt)
---
3 281 740 kr (Totalpris inkl. omkostninger)
NB: Regnestykket forutsetter at det kun tinglyses én låneobligasjon og at eiendommen selges til prisantydning.
Det tas forbehold om endringer i offentlige og private gebyrer.
Selger er selv ansvarlig for følgende gebyr:
6 725 kr (Eierskiftegebyr)
545 kr (Panterett med urådighet)
Salgsoppgaven beskriver vesentlig og lovpålagt informasjon om eiendommen
Se komplett salgsoppgaveNyttige lenker
Nærområdet
Annonsene kan være mangelfulle i forhold til lovpålagt opplysningsplikt. Før bindende avtale inngås oppfordres interessenter til å innhente komplett informasjon fra meglerforetaket, selger eller utleier.























