Bildegalleri

Eiendomsmegler Norge ved Henrik Lossius ønsker deg velkommen til Østre Strandgate 23!
Solgt
Kvadraturen
Fin og arealeffektiv 2-roms selveierleilighet med god takhøyde i klassisk bygård-P-plass i bakgård!
Prisantydning3 490 000 kr
Nøkkelinfo
- Boligtype
- Leilighet
- Eieform
- Eier (Selveier)
- Soverom
- 1
- Internt bruksareal
- 51 m² (BRA-i)
- Bruksareal
- 60 m²
- Eksternt bruksareal
- 9 m² (BRA-e)
- Etasje
- 1
- Byggeår
- 1894
- Energimerking
- Tomteareal
- 289 m² (eiet)
Fasiliteter
Garasje/P-plass
Rolig
Sentralt
Turterreng
Om boligen
Eiendomsmegler Norge ved Henrik Lossius ønsker deg velkommen til Østre Strandgate 23!
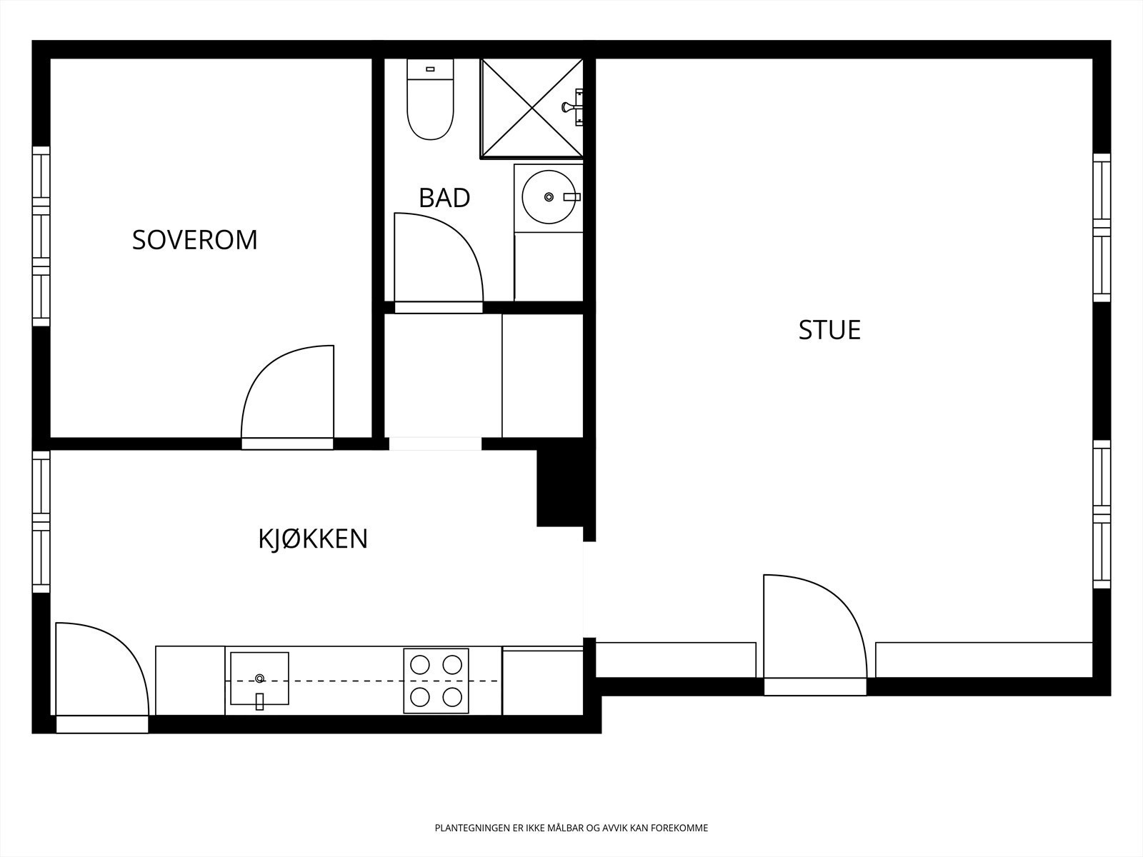
Dette er en fin og arealeffektiv 2-roms selveierleilighet sentralt i sentrum. Leiligheten ligger i byggets 1.etg. i en flott og klassisk bygård.
Du kommer inn i en luftig og romslig stue. Praktiske oppbevaringsløsninger ved inngansdør. Lys og romslig stue med deilig takhøyde som gir en god romfølelse. God plass til sofagruppe og spisebord. Videre inngang til pent kjøkken med integrerte hvitevarer. Soverom vendt mot bakgård. God plass til dobbeltseng. Bad med fliser på gulv. Inneholder dusjkabinett, servant, wc og opplegg for vaskemaskin.
Tilhørende p-plass i bakgård på felles tomt, samt 2 boder i kjeller.
Er du på utkikk etter en leilighet i sentrum du kan flytte rett inn i?
Velkommen til visning!
Dette er en fin og arealeffektiv 2-roms selveierleilighet sentralt i sentrum. Leiligheten ligger i byggets 1.etg. i en flott og klassisk bygård.
Du kommer inn i en luftig og romslig stue. Praktiske oppbevaringsløsninger ved inngansdør. Lys og romslig stue med deilig takhøyde som gir en god romfølelse. God plass til sofagruppe og spisebord. Videre inngang til pent kjøkken med integrerte hvitevarer. Soverom vendt mot bakgård. God plass til dobbeltseng. Bad med fliser på gulv. Inneholder dusjkabinett, servant, wc og opplegg for vaskemaskin.
Tilhørende p-plass i bakgård på felles tomt, samt 2 boder i kjeller.
Er du på utkikk etter en leilighet i sentrum du kan flytte rett inn i?
Velkommen til visning!
NB: Knappen for å vise hele beskrivelsen har kun en visuell effekt.
NB: Knappen for å vise hele beskrivelsen har kun en visuell effekt.
Salgsoppgaven beskriver vesentlig og lovpålagt informasjon om eiendommen
Se komplett salgsoppgaveNyttige lenker
Nærområdet
Eiendomsmegler Norge Kristiansand
Best der du bor
Annonseinformasjon
| FINN-kode | 456115767 |
|---|---|
| Sist endret | 19. mars 2026 07:44 |
| Referanse | 50260117 |
Annonsene kan være mangelfulle i forhold til lovpålagt opplysningsplikt. Før bindende avtale inngås oppfordres interessenter til å innhente komplett informasjon fra meglerforetaket, selger eller utleier.


























