Bildegalleri

Folkestadhøgda 22 presenteres av PrivatMegleren Moss ved Pernille Sollie Hoff
Folkestad, Våler
Lys og trivelig enebolig i barnevennlig nabolag. Gode solforhold fra formiddag til kveld.
Prisantydning4 000 000 kr
Nøkkelinfo
- Boligtype
- Enebolig
- Eieform
- Eier (Selveier)
- Soverom
- 3
- Internt bruksareal
- 100 m² (BRA-i)
- Bruksareal
- 150 m²
- Eksternt bruksareal
- 31 m² (BRA-e)
- Innglasset balkong
- 19 m² (BRA-b)
- Balkong/Terrasse
- 59 m² (TBA)
- Byggeår
- 1989
- Energimerking
- D - Gul
- Tomteareal
- 573 m² (eiet)
Fasiliteter
Barnevennlig
Balkong/Terrasse
Garasje/P-plass
Offentlig vann/kloakk
Peis/Ildsted
Turterreng
Rolig
Visning
søndag, 05. april
14:30 – 15:30
Velkommen til visning!
Alle våre visninger har påmelding. På denne måten sikrer vi at megler har god oversikt og tid til å imøtekomme alle interessenter på beste måte. Dette er veldig verdifullt for boligkjøpere og for oss. Det er enkelt å melde seg på, og du kan like enkelt melde deg av. Kontakt også gjerne megler i forkant av visning dersom du har spørsmål.
Om boligen
PrivatMegleren Moss, ved Pernille Sollie Hoff, har gleden av å ønske velkommen til Folkestadhøgda 22! En familievennlig enebolig over to plan med en god, innholdsrik planløsning. Boligen har en normalt god standard og er jevnlig oppgradert med blant annet nytt kjøkken i 2019 og oppgradert bad i 2020. Her får du et rolig nabolag med kort vei til kollektivt og dagligvare. Boligen kan tilby optimale solforhold fra formiddag til kveld med flere uteplasser.
Høydepunkter:
* Solrike uteplasser
* 3 gode soverom
* Gode oppbevaringsmuligheter
* Varmepumpe fra 2024
* Solrik hage med flere uteplasser
* Enebolig opprinnelig oppført i 1989
* God og innholdsrik planløsning over 2 plan
Inneholder:
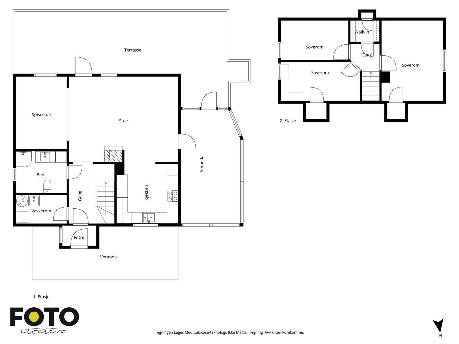
1. etasje: Entré/vindfang, hall m/trapp, vaskerom, bad, kjøkken og stue med utgang til terrasse på 59 m².
Innebygget/innglasset balkong på 19 m².
2. etasje: Trapperom, bod, 3 soverom.
Garasje på 31 m².
Velkommen til visning!
Høydepunkter:
* Solrike uteplasser
* 3 gode soverom
* Gode oppbevaringsmuligheter
* Varmepumpe fra 2024
* Solrik hage med flere uteplasser
* Enebolig opprinnelig oppført i 1989
* God og innholdsrik planløsning over 2 plan
Inneholder:
1. etasje: Entré/vindfang, hall m/trapp, vaskerom, bad, kjøkken og stue med utgang til terrasse på 59 m².
Innebygget/innglasset balkong på 19 m².
2. etasje: Trapperom, bod, 3 soverom.
Garasje på 31 m².
Velkommen til visning!
NB: Knappen for å vise hele beskrivelsen har kun en visuell effekt.
NB: Knappen for å vise hele beskrivelsen har kun en visuell effekt.
Salgsoppgaven beskriver vesentlig og lovpålagt informasjon om eiendommen
Se komplett salgsoppgaveNyttige lenker
Nærområdet

PrivatMegleren Moss
Kun det beste på dine vegne
Annonseinformasjon
| FINN-kode | 456112223 |
|---|---|
| Sist endret | 18. mars 2026 12:15 |
| Referanse | 116260017 |
Annonsene kan være mangelfulle i forhold til lovpålagt opplysningsplikt. Før bindende avtale inngås oppfordres interessenter til å innhente komplett informasjon fra meglerforetaket, selger eller utleier.























