Bildegalleri

Aktiv Eiendomsmegling v/Anders Borgsø har gleden av å presentere Ola Fives veg 5 D.
TRANABAKKAN
Trivelig 1/2 part av 2-mannsbolig. 3 soverom I Carport I Sjøutsikt I Sentrumsnært I Gode romløsninger.
Prisantydning3 490 000 kr
Nøkkelinfo
- Boligtype
- Tomannsbolig
- Eieform
- Eier (Selveier)
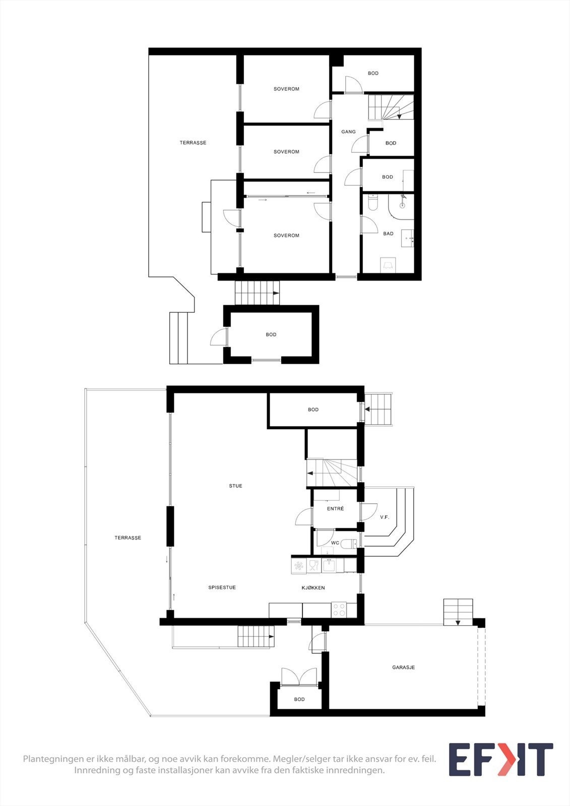
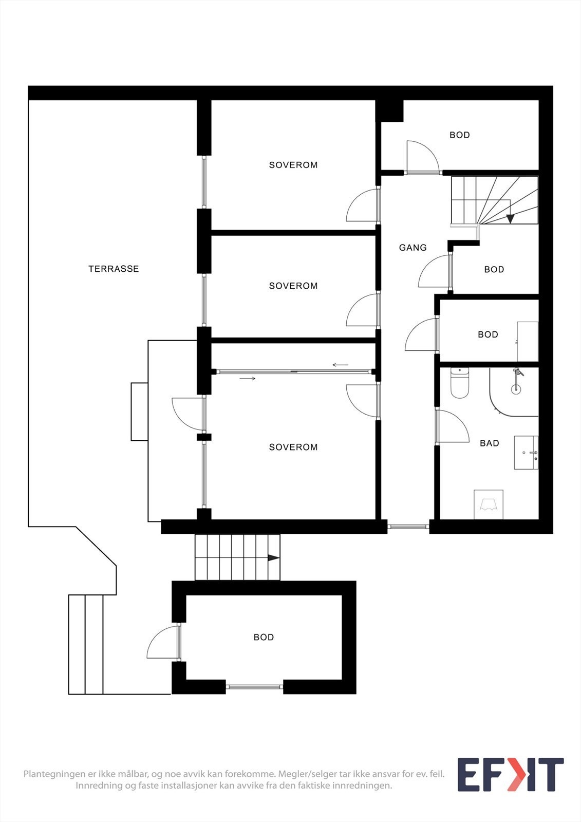
- Soverom
- 3
- Internt bruksareal
- 114 m² (BRA-i)
- Bruksareal
- 128 m²
- Eksternt bruksareal
- 14 m² (BRA-e)
- Balkong/Terrasse
- 51 m² (TBA)
- Etasje
- 2
- Byggeår
- 1976
- Energimerking
- Tomteareal
- 451 m² (eiet)
Fasiliteter
Aircondition
Balkong/Terrasse
Barnevennlig
Bredbåndstilknytning
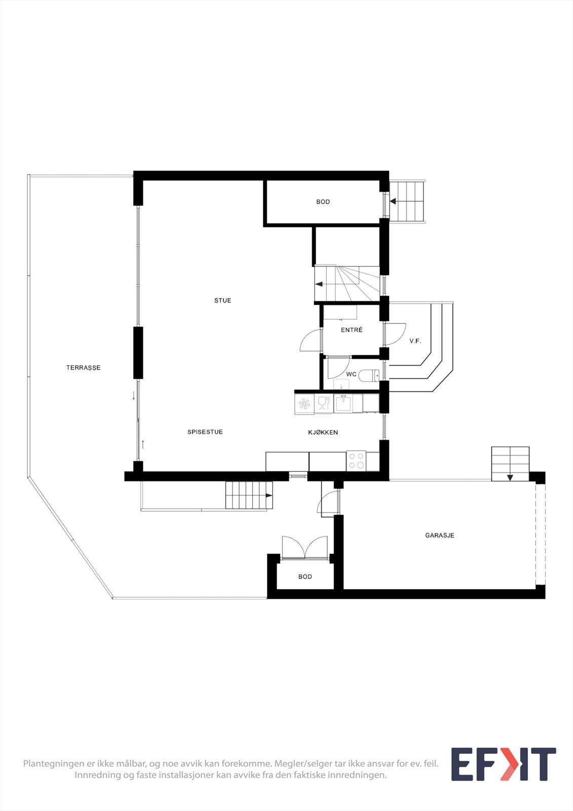
Garasje/P-plass
Hage
Offentlig vann/kloakk
Peis/Ildsted
Rolig
Sentralt
Utsikt
Turterreng
Om boligen
Aktiv Eiendomsmegling AS v/Anders Borgsø har gleden av å presentere Ola Fives veg 5 B.
En fin eiendom med sentrumsnær beliggenhet.
Godt opparbeidet tomt med blant annet 3 biloppstillingsplasser. Egen hage beplantet med plen og busker.
Boligen fremstår som godt vedlikeholdt.
Verdt på merke seg:
En fin eiendom med sentrumsnær beliggenhet.
Godt opparbeidet tomt med blant annet 3 biloppstillingsplasser. Egen hage beplantet med plen og busker.
Boligen fremstår som godt vedlikeholdt.
Verdt på merke seg:
- 3 soverom.
- Carport.
- Flott fjordutsikt.
- Gode solforhold med sen kveldssol.
- Kort veg ut tur/friområder.
- Nært barnehage og barneskole.
Velkommen på visning, husk påmelding:)
NB: Knappen for å vise hele beskrivelsen har kun en visuell effekt.
NB: Knappen for å vise hele beskrivelsen har kun en visuell effekt.
Salgsoppgaven beskriver vesentlig og lovpålagt informasjon om eiendommen
Se komplett salgsoppgaveNærområdet
Aktiv Steinkjer
Annonseinformasjon
| FINN-kode | 456102602 |
|---|---|
| Sist endret | 18. mars 2026 12:37 |
| Referanse | 1708260055 |
Annonsene kan være mangelfulle i forhold til lovpålagt opplysningsplikt. Før bindende avtale inngås oppfordres interessenter til å innhente komplett informasjon fra meglerforetaket, selger eller utleier.





















